DIGITAL CONSTRUCTION FACTORY
Focus on digital fabrication: students in the Bachelor of Architecture redesign the future of their campus

Course of studies
Architektur (B.A.)Project description
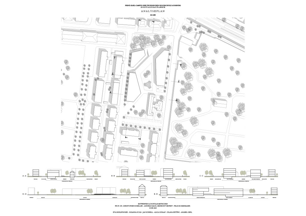
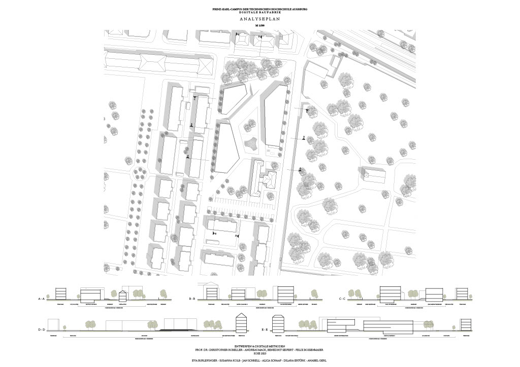
Im vergangenen Sommersemester haben Studierende der Technischen Hochschule Augsburg faszinierende Konzepte zur Weiterentwicklung ihres Campus entwickelt und ebenfalls Visionen für den zukünftigen Prinz-Karl-Campus entworfen. Eine Gruppe hat zusätzlich Teilen des Straßenbahndepots neues Leben als Ort der Lehre und für Innovation eingehaucht.
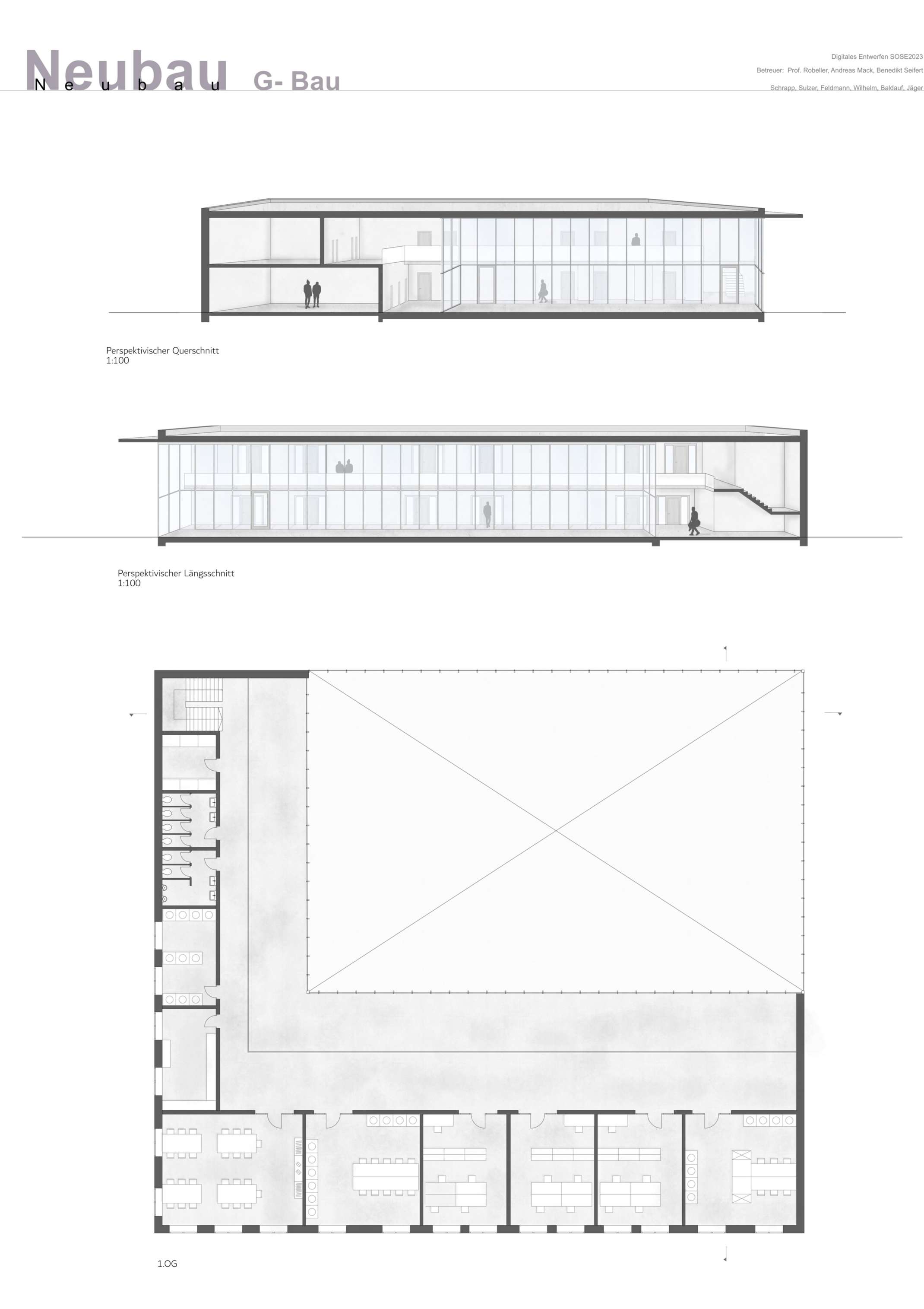
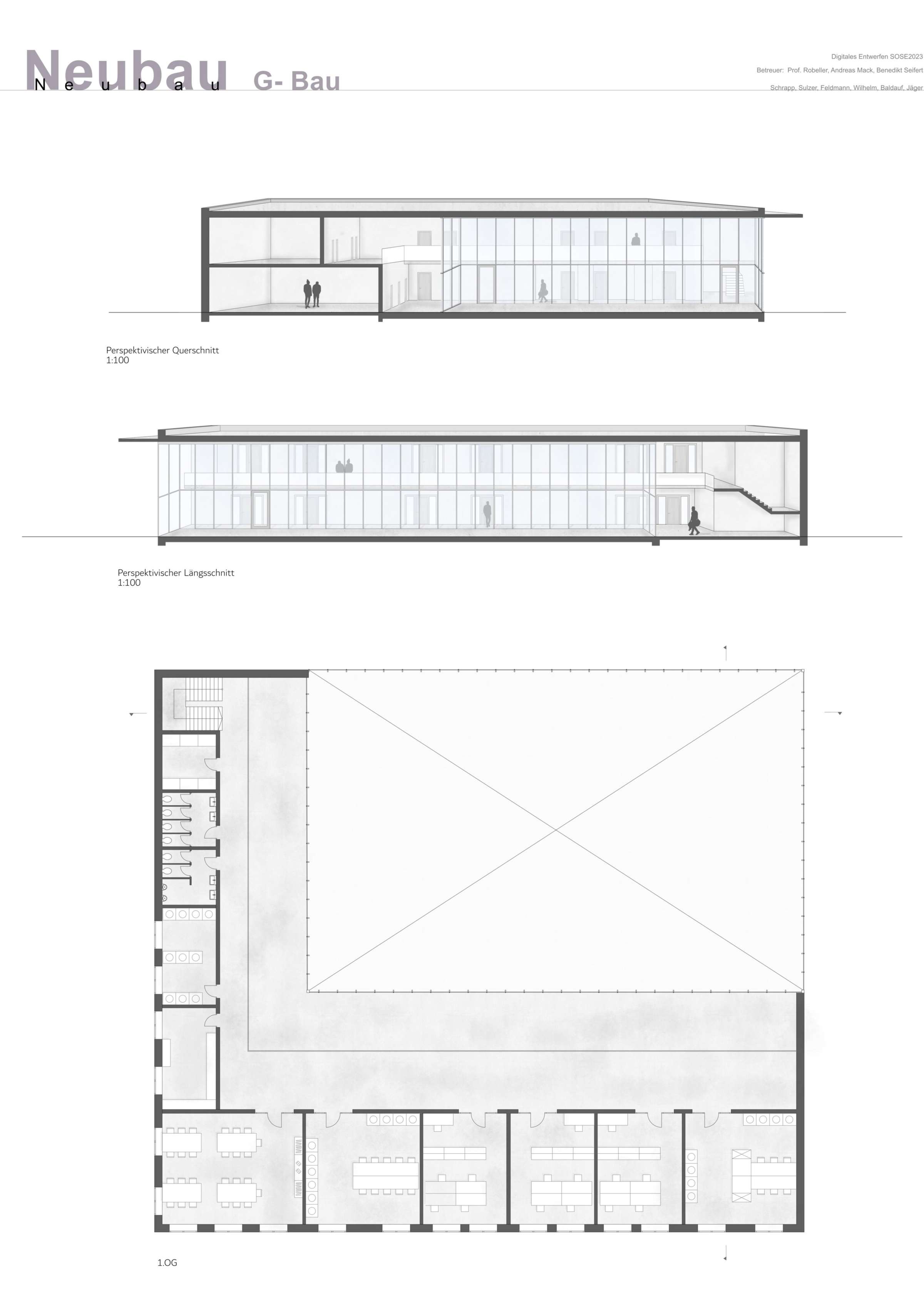
Im Anschluss an die Konzepterstellung widmeten sich die Teams jeweils einem Gebäude, das als wegweisende digitale Baufabrik dienen und spannende Experimente ermöglichen soll. Die Baufabrik fungiert in erster Linie als Labor, aber auch als Showroom und Austauschort für verschiedene Fachrichtungen, wobei der Fokus auf der digitalen Fabrikation und dem Holzbau liegt.
Um das Projekt zu starten und die Kreativität anzuregen, erhielten die Studierenden einen Einblick in aktuelle Forschungsfragen und Projekte von Prof. Dr. Ing. Rempel und Felix Bossenmaier.
Anschließend wurde das gesamte Modul durch Inputvorträge und Übungen zu essenziellen Programmen wie Rhino, Grasshopper und zum Thema Visualisierungen mit Blender begleitet. Diese Workshops vermittelten den Studierenden die notwendigen Fähigkeiten, um digitale Entwurfs- und Konstruktionsprozesse zu verstehen und kreativ umzusetzen.
Die Verbindung von computergestützter Planung und digitaler Fabrikation ermöglicht es, Bauabläufe zu optimieren, Ressourcen effizienter zu nutzen und architektonische Innovationen zu realisieren. Besonderes Augenmerk liegt dabei auf der Nutzung von nachwachsendem Rohstoff Holz, der ökologische Vorteile bietet und höchsten Ansprüchen an Nachhaltigkeit genügt.
Zur Unterstützung bei der Konzepterarbeitung fand ebenfalls ein Vortrag zum Thema Städtebau statt. Dieser half den Studierenden dabei, einen modernen, belebten Campus mit hoher Aufenthaltsqualität zu gestalten und den fakultätsübergreifenden Austausch zu fördern.
Das erlernte Wissen konnten die Studierenden direkt in ihre Entwurfsprozesse einsetzen und vertiefen. Jede Gruppe sollte ebenfalls ein Forschungsprojekt recherchieren und in ihren Entwurf integrieren.
Der Höhepunkt des Semesters war die Präsentation der Ergebnisse in den Fluren des C-Baus. Hier stellten die Gruppen ihre spannenden Entwürfe in Form von Grundrissen, Schnitten und Ansichten vor, aber zeigten auch Visualisierungen, Modelle und sogar eine Animation für eine mögliche Weiterentwicklung des Campus und eine mögliche innovative neue digitale Baufabrik.
Dank gilt Prof. Dr.-Ing. Sergej Rempel, Felix Bossenmaier und dem Staatlichen Bauamt Augsburg für die großartige Unterstützung des Projekts.

































































































