Shared Spaces Arbeitswelten

Projektbeschreibung
Bachelorarbeit Stefan Schröder, WS 2016-17
Betreuung: Prof. Dr. Joachim Müller, Prof. Dr. Wolfgang Nowak, Prof. Michael Schmidt
Aus der Aufgabenstellung:
"... CO-X steht für ein Miteinander (Co) unterschiedlichster Art (-X), für eine neue Typologie von Nutzungsmischung, die das Programm des Entwurfs prägt mit dem Ziel, Synergien sichtbar und erlebbar zu machen. Bereiche eher handwerklicher/ technischer Produktion (Offene Werkstätten "Blue Collar") und Büroarbeitsplätze im Sinn einer Co-Working-Organisation ("White Collar") bilden den Kern, sie werden ergänzt durch einen allgemeinen Bereich und Angebote des Stadt-Farmings.
CO-X Augsburg soll neben einer überzeugenden architektonische und energetische Definition Nutzern als auch Gästen eine besondere Erlebnis-Qualität "des Gemeinsamen" bieten. Hierzu ist eine besonders hohe Qualität der Erschließungsbereiche unumgänglich. Ebenso zentral ist die Wirkung in den Stadtraum hinein: Wie kann sich die Idee des synergetischen Arbeitens und Miteinanders nach außen präsentieren?"

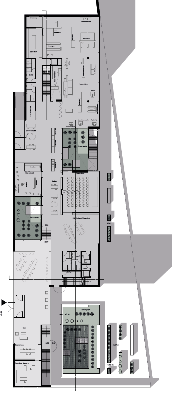
Erläuterung des Entwurfs (Stefan Schröder):
Der Ort: Zwischen Natur und Stadt
Das Grundstück stellt durch seine Lage ein markantes Portal zur Innenstadt dar. Im Westen wird es durch die viel befahrene Haunstetter Straße begrenzt. Im Norden verläuft die Bahnlinie Augsburg-München mit der Haltestelle „Haunstetter Straße“ sowie die Erschließung zum Neubaugebiet „Silbermann-Park“. Im Süden liegt das Gelände der Hutfabrik Lembert an der Frischstraße. Nach Osten öffnet sich das Grundstück in einen Grünbereich am Lochbach, der von Bäumen gesäumt ist.
Der Entwurf fügt sich in die gegebene Topografie ein. Der größte Baukörper ist weitgehend in das Gelände eingegraben und bildet mit seinem Gründach einen Übergang zwischen Natur und Gebäude. Zur stark befahrenen Straße im Westen wird dieser Hauptkörper durch eine Schallschutzwand ergänzt. Dadurch dringen die Schallemissionen der Straße kaum in das Gefüge ein.



Co-X: Synergien nutzen
Durch diesen Baukörper findet auch die Haupterschließung des Gebäudes statt. An den Eingangsbereich mit Foyer und Café grenzen im hinteren Bereich die "Blue-Collar"-Werkstätten an. Die Bereiche für handwerkliches Arbeiten verstehen sich als Aktionsraum, als "Offenen Werkstätten" und richten sich mit neusten Produktionstechnologien an eine Vielzahl von Nutzern unterschiedlichsten Alters und Hintergrunds. Über Sichtachsen zu den Besucherpunkten werden diese Werkstätten erlebbar. Die Arbeitsbereiche öffnen sich mit einer großzügigen Verglasung Richtung Osten zu Bach und Bäumen. So kann Licht in das Gebäude eindringen, ohne Schallimissionen zu verursachen. Zusätzlich werden die Werkstätten über große Atrien belichtet.
Eine markante Präsenz im Stadtraum stellt der "White-Collar-Würfel" dar. Dieser schwebt optisch über dem Gebäudekomplex und hebt sich auch durch seine Fassade vom flachen, eingegrabenen Bereich ab. In diesem befinden sich die Co-Working-Spaces. Ein offener Arbeitsbereich mit großzügiger Deckenhöhe lädt zu kommunikativem Arbeiten ein. Im Obergeschoss dieses Würfels ist auf einer Galerie ein großer Besprechungsraum angeordnet, der sowohl Blickbeziehungen in den Büroraum, als auch in den Süden über das gesamte Gebäude zulässt. Die Verschattungsanalyse zeigt: Durch die Anordnung dieses markanten Würfels als Hochpunkt im Norden verschattet er den restlichen Komplex nicht, sodass solare Gewinne optimal genutzt werden können. Durchgehende Lufträume unterstützen in Verbindung mit den Fassadenöffnungen die Möglichkeiten einer natürlichen Belüftung.
Der kleinere aufgesetzte Würfel im Südosten beherbergt das Restaurant. Es wird sowohl vom Erdgeschoss aus dem Blue-Collar-Bereich erschlossen, als auch über das Gründach. Über Glasflächen und Sitzmöglichkeiten im Außenbereich öffnet es sich zum Bach. Der Blick wird gezielt an dieser Wasserachse entlang geleitet.


Stadtfarm als grünes Band
Die Außenbereiche sind gestaltet als Erlebnisbereich und Fortsetzung der innenräumlichen CO-Working-Idee: "Außenwerkstätten" mit kleineren Anbauflächen von Obst/ Gemüse dienen als innerstädtische "Farm" z.B. als Anlaufpunkt für Kindergärten, die hier anpflanzen und ernten können. Die Stadtfarm als pädagogischer Erlebnisbereich für Kinder und Jugendliche zieht sich als ein Zusammenspiel vieler Themengärten durch das gesamte Gebäude. Im Norden sind große Obstbäume angeordnet, die sich in die bestehenden Bäume um das Grundstück einfügen. Die Gärten werden nach Süden auf dem unverschatteten Gründach fortgesetzt. Durch die Atrien dringen sie in das Gebäude ein und schaffen grüne Inseln in der Arbeitsumgebung, deren klimatische Wirkung in das Lüftungskonzept des Gebäudes integriert wird.

Materialkonzept
Das Materialkonzept spiegelt die Nutzungen des Gebäudes wieder. Der eingegrabene Kubus mit den Werkstätten hat eine Sandwich-Fassade aus rauem Sichtbeton mit hohem Recycling-Anteil. Dieser wird mit einer groben Holz-Bretterschalung verkleidet. Dadurch entsteht von der Straße aus der Eindruck eines in das Grundstück eingegrabenen Felsens. Diese robuste, raue Optik trägt die grobe Arbeit in den Werkstätten im Inneren nach außen und stellt energetisch eine hohe wirksame Wärmespeicherfähigkeit mit geringen Schwankungen der behaglichen Raumtemperaturen sicher. Die beiden aufgesetzten Würfel verdeutlichen den Kontrast zwischen Stadt und Natur: Der hohe White-Collar-Würfel stellt mit seiner Metallgitter-Fassade die Härte und Klarheit der Stadt dar. Die differenzierte dreidimensionale Ausprägung verhindert im Sinne eines sommerlichen Wärmschutzes die direkte Einstrahlung der hochstehenden Sommer-Sonne und lässt die Wärmegewinne der flach einstrahlenden Wintersonne durch. Der Holz-Kubus mit dem Restaurant ist den Bäumen und der Natur zugeordnet.

Insgesamt entsteht an prägnantem Ort ein Stadtportal, das durch sein architektonisches Konzept die Kontraste von Stadt und Natur und die Kontraste zwischen den beherbergten Nutzungen darstellt, diese jedoch durch den offenen, durch das Gebäude fließenden Erschließungsweg kommunikativ verbindet.

Abgabeleistungen:
- Architektonische Definition als Gebäudeentwurf M 1:100 mit städtebaulicher Einbindung M 1:500
- Materialkonzept mit Fokus auf nachhaltigen Materialeinsatz
- Detaildarstellungen der relevanten Fassadenbereiche M 1:10
- Tageslichtkonzept und Nachweis sommerlicher Wärmeschutz
- Energiekonzept mit Bevorzugung passiver Systeme und rechnerischen Nachweisen
- Technikkonzept



Ansprechpartner | |
Telefon: | +49 821 5586-2114 |
Ansprechpartner | |
Telefon: | +49 821 5586-3612 |
Ansprechpartner | |
Telefon: | +49 821 5586-3115 |
