Seitenpfad:

CO-X Stadthaus: Eine Offene Werkstatt am neuen Augsburger Bahnhofsplatz West

 
Energieeffizientes Planen und Bauen – E2D

Projektbeschreibung

Bachelorarbeit Levin Kümmerle, WS 2019-20
Betreuung: Prof. Dr. Joachim Müller, Prof. Susanne Runkel
Studiengang: Energieeffizientes Planen und Bauen – E2D

Aus der Aufgabenstellung:

Welchen Beitrag kann der neue Bahnhofsvorplatz West für die Stadtgesellschaft leisten? Unter dem Motto „Make – Learn – Share“ soll an zentralem Ort in Augsburg ein Stadtbaustein entstehen, der Eigenarbeit als wichtige Facetter einer (Stadt-) Kultur versteht, Kooperationen und Partizipation unterstützt und mit den  Themen des Ressourcenverbrauchs, Kreislaufdenkens und Upcycling kombiniert. Konkret steht der Titel „CO-X Augsburg“ einerseits für ein Miteinander (CO) unterschiedlichster Art (-X), für eine neue Typologie von Nutzungsmischung, die das Programm des Entwurfs prägt mit dem Ziel, Synergien sichtbar und erlebbar zu machen. CO-X steht andererseits für das Ziel, ein Bauprojekt ressourceneffizient zu planen und Kohlenstoffdioxidemissionen (CO2) in den Konstruktionen sowie der Nutzungsphase in zu minimieren.

Zum Programm: Bereiche eher handwerklicher/ technischer Werkstätten (als offene Werkstatt) und Büroarbeitsplätze (im Sinn einer Co-Working-Organisation) bilden den Kern, sie werden ergänzt durch einen allgemeinen Bereich für Begegnung und Veranstaltung, Verkauf und Wohnen auf Zeit. "CO-X Augsburg" soll sowohl den Nutzern als auch Gästen eine besondere Erlebnis-Qualität "des Gemeinsamen" bieten.

Zum Ort: Mit dem Bau einer den Bahnhof unterquerenden Straßenbahn mit Haltestelle und Anbindung an den überregionalen Zugverkehr entsteht auch auf der Westseite ein attraktiver Vorplatz mit idealer Verkehrsanbindung. Auf Grundlage der aktuellen Planungsbasis der Stadt Augsburg ist das neue Gebäude als markante Eckbebauung des Bahnhofsplatzes zur Rosenaustraße platziert und markiert die besondere Nutzung einer offenen Werkstatt als wertvolles Element der Stadtkultur.“

 

Erläuterung des Entwurfs (Levin Kümmerle):

Der Ort

Offene Werkstätten sind Orte, an denen Begegnung, Gemeinschaft und Zusammenarbeit stattfindet. Sie stehen Profis wie Ungeübten gleichermaßen zur Verfügung. Hier wird ein Jeder ermuntert,  sich einzubringen und schöpferisch tätig zu werden.

Im Zuge der Umgestaltung der westlichen Seite des Hauptbahhofs entsteht das COX Stadthaus –  mitten im denkmalgeschützten Thelottviertel. Aus zwei Körpern bestehend ist es den Passanten von allen Seiten zugewand. Der monolithische Körper im Westen des Platzes fügt sich mit seiner Lochfassade in den historischen Bestand im Westen ein und entwickelt sich dem Vorplatz zugewand in eine transluzenten Körper auf der bestehenden Bohrpfahlwand tronend.

Städtebauliche Einbindung am Gelenkpunkt des Bahnhofsvorplatzes West zur Rosenaustraße und dem Thelottviertel, großem Baukörper am Bahnhofsvorplatz und kleinem Baukörper auf dem oberen Geländeniveau
Städtebauliche Einbindung am Gelenkpunkt des Bahnhofsvorplatzes West zur Rosenaustraße und dem Thelottviertel, großem Baukörper am Bahnhofsvorplatz und kleinem Baukörper auf dem oberen Geländeniveau
Modell: Blick von Südost (oberes Niveau der bestehenden Bohrpfahlwand)
Modell: Blick von Südost (oberes Niveau der bestehenden Bohrpfahlwand)
Ansicht West von der Rosenaustraße mit Blick Richtung Bahnunterführung und Schnitte durch das Gebäude
Ansicht West von der Rosenaustraße mit Blick Richtung Bahnunterführung und Schnitte durch das Gebäude
Grundriss OG (Niveau der ehemaligen Bohrpfahlwand)
Grundriss OG (Niveau der ehemaligen Bohrpfahlwand)
Grundriss EG (Bahnhofsvorplatz West)
Grundriss EG (Bahnhofsvorplatz West)

Innenraumkonzeption

EG (Foyer/ Holzwerkstatt): Die Haupterschließung des Gebäudes erfolgt durch den monolithisch erscheinenden hellen Körper. Betritt man ihn, befindet man sich auch schon direkt an der zentralen Anlaufstelle – dem Infopunkt, der sich gleichzeitig als Werkzeugbibliothek und Mietfachladen versteht. Größere Werkzeuge oder Material können selbstverständlich auch dort bezogen werden, diese befinden sich allerdings im Kurzzeitlager mit angeschlossener Anlieferung im hinteren Teil des Gebäudes. Die Anordnung der Holzwerkstatt ist durch Arbeitstische mit Rollen flexibel, nach dem Motto: „Jeder nimmt sich den Platz den er gerade benötigt“. Die Kommunikation der Körper erfolgt unter der Freitreppe des Außenraums über eine barrierefreie Aufzugsanlage.

Im Zwischengeschoss EG+ befinden sich leichte Holzarbeiten und die Verwaltung der Werkstätten.

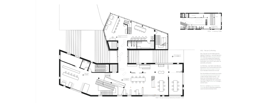
OG2 (Fab Lab/ Co-Working/ Textil, Druck & Keramik): Das „Fab Lab“ ist eine Werkstatt für digitale Produktion – deshalb liegt dort der Fokus auf einer Computerarbeitszeile mit einem gegenüberliegenden Arbeitsbereich. Ein Raum für flexible Nutzungen wie z.B. für Lasercutter ist ebenfalls vorhanden. Co-Working – das Teilen eines Büroarbeitsplatzes im Großraumbürostil - wird mit leichten Abtrennungen in Zonen durch flexiblen Elementen erreicht. Der Keramikbereich besteht aus einem zentralen gemeinsamen Arbeitstisch und flexiblen Töpferstühlen, mit denen der Arbeitsplatz durch den schnellen Zugang über den Lastenaufzug sogar in den Außenraum verlagert werden kann.

Im Zwischengeschoss OG2+ werden private Arbeitsbereiche für das Co-Working angeboten, sowie Gemeinschaftsbereiche.

Blick in den Innenraum (Forum und Metallwerkstatt im OG), Durchblicke, versetzte Geschossebenen
Blick in den Innenraum (Forum und Metallwerkstatt im OG), Durchblicke, versetzte Geschossebenen

Energiekonzept und Passive Maßnahmen

Prinzipschnitt durch das Gebäude
Prinzipschnitt durch das Gebäude

Fassade

Fassade des großen Baukörpers
Fassade des großen Baukörpers
Fassade des oberen Baukörpers
Fassade des oberen Baukörpers
Fassadenschnitt des großen Baukörpers mit Detailansicht
Fassadenschnitt des großen Baukörpers mit Detailansicht

Ökobilanzierung und Materialkonzept

Ökobilanzierung über die Lebensphasen des Gebäudes mit Betrachtung der Treiber und der Speicher hinsichtlich des Global Warming Potentials GWP
Ökobilanzierung über die Lebensphasen des Gebäudes mit Betrachtung der Treiber und der Speicher hinsichtlich des Global Warming Potentials GWP
Materialkonzept
Materialkonzept

Holz: Der Einsatz von Holz oder Holzwerkstoffen wird versucht zu maximieren und sich seiner Eigenschaft als Kohlenstoffspeicher zu Nutze zu machen. Deshalb bestehen Wände, Treppen, eingestellte Geschosse, Träger, Stützen, Innenbekleidungen und Fenster aus dem Werkstoff Holz. Darüber hinaus werden auch sämtliche Dämmstoffe (außer erdberührte) aus Holzfaser verwendet. Es wird aufgrund von Schadstofffreiheit und Monomaterialität versucht, den Bindemittelanteil gering zu halten.

Lehm und Kalksandstein: Um Luftschall zu verringern und Masse den Decken hinzuzufügen, werden die Fußböden aus 80mm dickem Stampflehm ausgebildet. Zusätzlich schützt dieser mit seiner hohen Wärmekapazität vor einer sommerlichen Überhitzung des Gebäudes in leichter Außenbauweise. Das gleiche gilt ebenfalls für die eingesetzten tragenden Innenwände aus Kalksandstein.

Erdberührte Bauteile: Um das tragende Holz konstruktiv zu schützen, wird die Gründung und die Wand im Sockelbereich aus wasserdichtem Stahlbeton ausgeführt. Da Dämmungen unter der Erde geschlossenporig und anorganisch sein sollten, wird hier Schaumglas verbaut - im Perimeterbereich als Plattenwerkstoff, um ein Absacken zu verhindern, und unter der Bodenplatte als Schüttung.

Modell mit Blick von Norden (Bahnhofsvorplatz West)
Modell mit Blick von Norden (Bahnhofsvorplatz West)
 

Abgabeleistungen

  • Lageplan (M 1: 500), Grundrisse, Ansichten, Schnitte (M 1: 100)
  • Materialkonzept incl. Detaildarstellungen M 1:10 der Fassade mit Darstellung von Sonnen- und Blendschutz.
    Ein besonderer Fokus liegt auf einem nachhaltigen Materialeinsatz incl. der Demontage- und Recycling-Fähigkeit
  • Energie- und Ökobilanzierung:
    _ Konzeptphase: Drei strategische Varianten mit qualitativer Beschreibung der Konzeption, Konstruktion und Technik sowie Kenndaten (U-Werte, Ökodaten, erneuerbare Energien …)
    _ Entwurfsphase Energiebilanzierung: mit Auswertung End- und Primärenergiebedarf Ist und Referenz, Einsatz erneuerbare Energien sowie passive Maßnahmen
    _ Entwurfsphase Ökobilanzierung (eLCA): mit Randbedingungen der Zertifizierung DGNB und mit folgender Auswertung (Zahlenwerte und grafisch): 
    - GWP Global Warming Potential (in kg CO2äquivalent pro m2NGF) Gesamt sowie differenziert nach Konstruktion und Nutzung
    - GWP Global Warming Potential (in kg CO2äquivalent pro m2NGF) der Konstruktion: Differenziert nach AW, DE+TR, DA, BP, FE, IW und TGA und differenziert nach den jeweiligen Modulen A bis D
  • Standort iund soziale Nachhaltigkeitskriterien:
    Individuelle Bewertung des Standortes gem. SITE 1.1, 1.3 und 1.4, Nachweis des sommerlichen Wärmeschutzes, Nachweis der Tageslichtversorgung, Barrierearmer Zugang und Nutzungsmöglichkeiten.
  • Modelle M 1:500 / 1:100

Zur Vorbereitung auf die Bachelorarbeit waren E2D-Studierende in Augsburg und München unterwegs auf den Spuren einer neuen Werkstatt-Kultur, hier der Bericht: "Make - Learn - Share".

 
 

Verwandte Projekte

Modellfoto NO
Energieeffizientes Planen und Bauen – E2D

CO-X Augsburg: Eine Offene Werkstatt am neuen Augsburger Bahnhofsplatz West

Welchen Beitrag kann der neue Bahnhofsvorplatz West für die Stadtgesellschaft leisten? Unter dem Motto „Make – Learn – Share“ entsteht am neuen Augsburger Bahnhofsvorplatz West ein Stadtbaustein , der Eigenarbeit als wichtige Facetter einer (Stadt-) Kultur versteht, Kooperationen und Partizipation unterstützt und mit den Themen des Ressourcenverbrauchs und Kreislaufdenkens kombiniert.

Blick vom Bahnhofsvorplatz
Energieeffizientes Planen und Bauen – E2D

Quer: Eine Offene Werkstatt am neuen Augsburger Bahnhofsplatz West

Welchen Beitrag kann der neue Bahnhofsvorplatz West für die Stadtgesellschaft leisten? Unter dem Motto „Make – Learn – Share“ entsteht am neuen Augsburger Bahnhofsvorplatz West ein Stadtbaustein , der Eigenarbeit als wichtige Facetter einer (Stadt-) Kultur versteht, Kooperationen und Partizipation unterstützt und mit den Themen des Ressourcenverbrauchs und Kreislaufdenkens kombiniert.