Entwurfslehre in Zeiten von Corona: Ein Erfahrungsbericht
Erfolgreiche digitale Lehrformate im ersten Studienjahr "Energieeffizientes Planen und Bauen - E2D"

Studiengang
Energieeffizientes Planen und Bauen – E2D (B.Eng.)Projektbeschreibung
Mit dem Beginn des Sommersemesters im März hat der Studiengang „Energieeffizientes Planen und Bauen – E2D“ die Lehre nahezu komplett auf digitale Lehrformate umgestellt, um auf die Corona Pandemie und die damit verbundenen gesundheitlichen Maßnahmen zu reagieren. Genutzt wird dabei ein Spektrum unterschiedlicher Methoden, die von Webinar-Seminaren, Online-Skripten, Übungsaufgaben mit Upload und Feedback, der Online-Lehrplattform Moodle, Lehrvideos, angeleitetem Selbststudium und anderen Formen bis hin zu Video-Konferenzen zur Betreuung der Projektentwürfe reichen.
Seminaristischen Unterricht - das kann man sich als Webinar-Live-Veranstaltung vermutlich gut vorstellen. Aber wie sieht ein Entwurfsprojekt in Zeiten von Corona aus, eine intensive gemeinsame Arbeit auf dem Weg zu einer Lösung, die ja auch wesentlich von der persönlichen Begegnung, dem Austausch, dem Gespräch lebt?
Gerne zeigen wir exemplarisch die Ergebnisse der Zwischenabgabe im ersten Studienjahr, im Entwurfsmodul „Baukultur 1“. In wöchentlichem Rhythmus haben die etwa 80 Studierenden ihren jeweils aktuellen Bearbeitungsstand auf die digitale Lernplattform hochgeladen, wo dieser im Vorfeld von den Betreuern gesichtet wurde. Hier wurden auch Ankündigungen, zentrale Dokumente und Aufgabenstellungen ausgetauscht. Im Rahmen der Online-Entwurfsbetreuung „trafen“ sich dann kleine Studentengruppen in Video-Konferenzen, um gemeinsam mit den Betreuern die formulierten Entwurfshaltungen und eigenen Ergebnisse zu diskutieren, zu konkretisieren und weiterzuentwickeln. Hier wurde dann digital in den Plänen weiter skizziert, Arbeitsmodelle und weitere Wege der Bearbeitung besprochen. Die Modellbau-Unterstützung erfolgte durch eigene Lehrvideos und Tipps im Rahmen der Video-Konferenz. Und statt ihre Projekte schließlich wie gewohnt in den Fluren des Fakultätsgebäudes als große Planzeichnungen und Modelle in einer Ausstellung zu zeigen, erstellten die Studierenden Videos als Projekt-Präsentationen. In der abschließenden Online-Runde mit dem gesamten Semester wurden dann einige Arbeiten einschließlich des Feedbacks der Betreuer zusätzlich live vorgestellt.
"Natürlich freuen wir uns darauf, wieder mit den Studierenden zusammen zu sein, der direkte Kontakt fehlt uns allen - auch für die Entwicklung von Entwurfs-Persönlichkeiten", so Prof. Dr. Joachim Müller. "Unter den gegebenen Umständen sind wir jedoch hoch zufrieden mit dem, was wir gemeinsam durch die digitalen Formate erreichen können. Und stolz auf unsere tollen Studierenden, die die Situation mit großem Einsatz und Engagement meistern." Das zweite Entwurfsprojekt in diesem Modul ist inzwischen angelaufen.

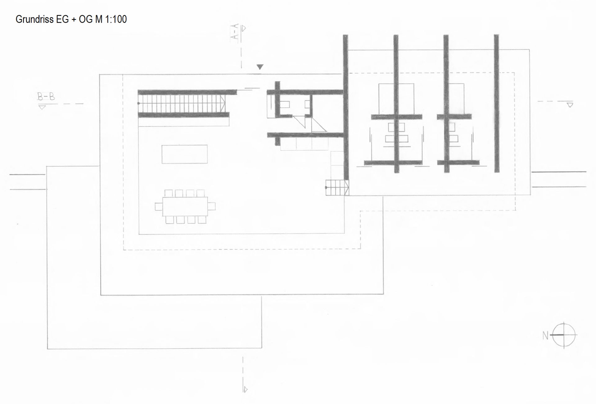
Oben: Entwurfsprojekt „ThinkTankHambach“ im ersten Studienjahr E2D, erste Zwischenabgabe zur Semestermitte (Felix Thust)
Aus der Aufgabenstellung:
Braunkohle-Tagebau frisst die Landschaft auf. Ganze Dörfer, ganze Wälder, Felder und Orte der Erinnerung verschwinden, die sich tief in das Gedächtnis eingeschrieben hatten. Zurück bleibt eine künstliche Wüste, deren Maßstäblichkeit unsere Vorstellung häufig übersteigt. Diese Zerstörung, diese Besonderheit löst gleichzeitig eine Faszination aus, da sie Gewohnheiten außer Kraft setzt. Das vorgesehene Grundstück befindet auf einem schmalen Streifen zwischen dem Hambacher Forst und der Abbruchkante des „Tagebaus Hambach“. Eine extreme Lage. Auch eine Chance? Ein Potenzial für Kreativität?
Eine Stiftung wünscht sich den Neubau eines dauerhaften Gebäudes, das jeweils für einen Zeitraum von einer Woche als "ThinkTank" genutzt werden kann - als "Denkfabrik", in der interdisziplinär in kleinem Kreis gesellschaftlich relevante Probleme diskutiert, Konzepte oder Strategien entwickelt und Lösungen ausgearbeitet werden. Die Idee des Bauherrn ist es, dass hierzu ein Rückzug aus den gewohnten Umgebungen in Form eines extremen Ortes hilfreich ist, lieb gewonnene Denkmuster zu verlassen und neue Ideen zu generieren.
Das Gebäude dient 3 Personen und Gästen als Aufenthalt und zur "Denk-Arbeit" im kleinen Kreis. Als Kompositionsthema ist das Thema „Steckspiel“ vorgegeben, die Auseinandersetzung mit der Fläche als Element des architektonischen Raums.
Abgabeleistungen: Darstellung des Gebäudes in Grundrissen, Ansichten und 2 Schnitten (M 1: 100) als Hand- oder CAD-Zeichnungen, Fotos des Präsentationsmodells (Modell M 1: 100), Kurzpräsentation des Entwurfs als Video.
Betreuung: Prof. Dr. Joachim Müller, Prof. Michael Schmidt, M. Eng. Timo Plachta, BA Julian Grassl, Martin Beckers (Modellbau)

Oben: Entwurfsprojekt „ThinkTankHambach“ im ersten Studienjahr E2D, erste Zwischenabgabe zur Semestermitte (Roman Schuster). Unten: Weitere Projekte der Studierenden.



































































Ansprechpartner | |
Telefon: | +49 821 5586-2114 |
Ansprechpartner | |
Telefon: | +49 821 5586-3115 |










