
Seitenpfad:
Hybridgebäude "Boxity" - Roman Schuster
Ressourcen-, klima- und kreislaufgerechte Nachverdichtung in Augsburg
Energieeffizientes Planen und Bauen – E2D

Projektbeschreibung
Bachelorarbeit WS 2022-23 von Roman Schuster
Integraler Entwurf mit Schwerpunkt Nachhaltigkeitsbewertung, kreislauf- und klimagerechtem Materialeinsatz und hybride Nutzungen
Betreuung: Prof. Dr. Joachim Müller, Prof. Susanne Runkel
Studiengang: Energieeffizientes Planen und Bauen – E2D
Aus der Aufgabenstellung:
„Augsburg wächst. Wie viele städtische Großräume verzeichnet auch Augsburg steigende Einwohnerzahlen und steht vor der Frage, wie gleichzeitig der weiteren Zersiedelung in der Peripherie mit entsprechendem Bodenverbrauch entgegengewirkt werden kann. Eine zentrale Option hierbei ist die urbane Nachverdichtung.
Das Gelände der Hutfabrik Lembert ist für eine solche Entwicklung zur Aufwertung des gewachsenen städtischen Gefüges geeignet und wurde prototypisch untersucht. Es wird im Westen durch die Haunstetter Straße begrenzt, im Südosten durch die Inverness Allee und im Norden durch die Frischstraße. Als traditionsreicher Standort umfasst das Gelände heute neben der immer noch tätigen Hut-Manufaktur eine stark heterogene Nutzung. Auf dem an die Haunstetter Straße angrenzenden Teil des Geländes könnte exemplarisch ein neu zu errichtender Nutzungshybrid als wichtiger Stadtbaustein entstehen und zu einem Katalysator für die weitere Entwicklung eines vielfältigen und lebendigen Areals werden.
Das Programm umfasst einen Nachversoregungs-Markt für nachhaltig produzierte Lebensmittel, Werkstätten zur Registrierung, Dokumentation und Bearbeitung von Bauteilen im Sinne der Circular Economy, einen flexibel nutzbaren Veranstaltungsraum für Vorträge und Begegnung, ein Café/ Restaurant als weiterer Ort des Austauschs sowie eine heterogene Mischung verschiedener Wohnformen mit vielfältigen Wohnungsgrößen. Hier soll ein Angebot entstehen für ein breites Spektrum an Nutzer:innen (generationenübergreifend, soziale Mischung) mit hohe Flexibilität. Die privaten Wohnflächen werden dabei minimiert zugunsten gemeinschaftlicher Räume, die Wohnungen sind modular und mit hohem Vorfertigungsgrad konzipiert."
Die Ökobilanzierung mit Ermittlung des Global Warming Potentials, eine kreislaufgerechte Konstruktion mit nachhaltigem Materialeinsatz sowie die Konzeption einer minimierten Gebäudetechnik mit bauphysikalischer Quantifizierung und Optimierung sind integraler Teil des Entwurfsprojekts.
Erläuterung des Entwurfs (Roman Schuster)
BOXITY
Der Gebäudenamen Boxity setzt sich aus den Worten Box und City zusammen. Denn das Gebäude besteht aus mehreren Boxen, wie bei der Baukörperentstehung zu sehen ist. Zudem ist das Gebäude wie eine kleine Stadt, da man alles in einem Gebäude hat,das man zum Leben benötigt, von arbeit über Freizeit bis hin zum Essen.
Bei diesem Gebäude wurde vor allem auf drei Strategien geachtet. Zum einen sollen die Bewohner einen Behaglichen Wohnraum haben. Das ermöglicht die Materialwahl mit viel Bezug zu Grünflächen und Außenraum. Auch soll das Gebäude größtenteils aus nachhaltigen Ressourcen bestehen um eine gute Ökobilanz zu schaffen. Des weiteren erreicht man eine gute Ökobilanz nur, wenn man wenig Energie verbraucht oder diese aus erneuerbaren Rohstoffen ist. Daher wird viel auf passive Stysteme gesetzt und die Wärme aus der Wärmepumpe gezogen, die dank der großen PV-Fläche mit selbst erzeugtem Strom läuft.
Neudefinition des Quartiers: Einbindung in den Kontext
Der nördliche Teil des Areals wird zu einem öffentlichen Eingangsplatz für das Areal. Das historische Gebäude hier wird belassen wie es ist. Dort sollen weiterhin Hüte verkauft und ein Hutmacher Museum integriert werden, um an die Geschichte des Standorts zu erinnern. Weitere Bestandsgebäude werden erhalten und umgenutzt, etwa mit Verkaufsladen und Sonderformen des Wohnens.
Der Neubau BOXITY schirm das Areal zu Haunstetter Straße hin ab. Im Osten entsteht so zentral ein halböffentlicher Platz, der zum Eingang des Cafes, des Fahrradstellplatzes und der Erschließung der oberen Geschosse führt. Im Sommer kann der Platz als Terasse für das Cafe genutzt werden. Die Achse spannt bis über das Wasser und bietet mit viel Grünflächen hohe Aufenthaltsqualität als neues Herz des Quartiers.
Südlich hieran grenzt ein Bestandsgebäude, dass im zwei Konstruktionsachsen verkürzt wird. Die Zwischendecke wird entfernt, damit dort eine Indoorhalle mit Soccerplatz und Klettewand Platz findet. Jenseits des Wassers befindet sich ein Neubau mit weiteren Wohnnutzungen.


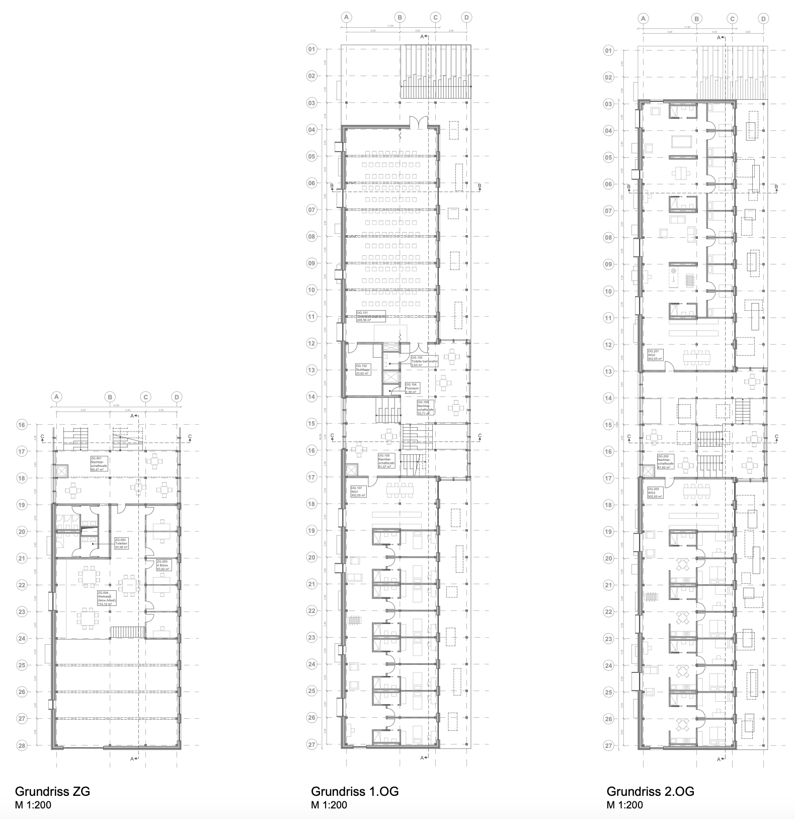
Die einzelnen Nutzungsbereiche
Das zentral gelegene Cafe ist das Herzstück des Gebäudes. Es erstreckt sich auf vier verschiedenen versetzten Ebenen dient gleichzeitig als Erschließung des Gebäudes. Von hier isnd alle weiteren Funktionen direkt erreichbar. Die Wände des Cafes sind verglast, sodass man einen sehr guten Blick ins Grüne hat, sowohl in Richtung Westen zur Straßenbahnstation, als auch nach Osten zum Park mit Wasser. Im Sommer gibt es zudem die Möglichkeit, die großen Flügel der Fassade zur Terrasse zu öffnen, sodass das Cafe nahtlos ins Freie übergeht.
Ebenfalls im Erdgeschoss befindet sich die Nahversorgung mit dem Haupteingang vom öffentlichen Platz aus. Von dem Laden gelangt man in die offene Küche, von der man einen Durchgang zum Cafe hat. Außerdem befindet sich bei der Küche eine lage Theke für Bäckerei und Cafe, sowie eine Kasse, dass die Bewohner das Gebäude nicht verlassen müssen, um etwas einzukaufen. Die Küche hat auch einen Essensaufzug, der zum Veranstaltungsraum führt, damit dort große Veranstaltungen einfach mit Essen beliefert werden können.
Der Veranstaltungsraum liegt im Obergeschoss und ist sowohl von innen als auch von außen über die große Sitztreppe des öffentlichen Platzes zugänglich. Er hat eine lichte Raumhöhe von 4,2m und wird von Fachwerkträgern überspannt. Im innenraum befinden sich schwere Akustikvorhänge, die den Raum flexibel für verschiedene Nutzungen abtrennen. Teilt man den Raum in vier Abteile hat jeder zudem ein Ausgang ohne ein anderes Abteil betreten zu müssen.
Im südlichen Teil des Cafes befindet sich der Fahrradstellplatz. Von dort hat man einen direkten Zugang zum Cafe sowie zur Werkstatt. Im Eingangsbereich der Werkstatt ist eine Toilette sowie eine Dusche und Spinde für die Arbeiter:innen gelegen. Im Erdgeschoss findet die größere Arbeit statt mit einer Raumhöhe von 5,7m. Im Zwischengeschoss dagegen ist Platz für die feine Arbeit und Büros.
In den oberen Etagen sind drei Groß-WGs gelegen mit je 8 Mieteinheiten. Der Grundriss ist wählbar und kann vom Rohbau aus flexibel angepasst werden. Zur Auswahll stehen vier Varianten, die sich von Privat- und Gemeinschaftsflächenverhältnis unterscheiden. Alle basieren jedoch darauf wenig Privatflächen zu haben und im gegenzug dazu eine Gemeinschaftsküche mit Essbereich. Alle Einheiten haben auch einen eigenen Außenraumzugang zum ruhigen Innenhof mit viel Grünflächen.



Berichts- und Berechnungsteil
In einem umfangreichen Berichtsheft wurde als Anlage die Themen Bauteilkatalog, Analgentechnik, Tragwerkskonzept, Energiebilanzierung, Ökobilanzierung, sommerlicher Wärmeschutz nach BNK, Tageslichtquotient nach BNK, Barrierefreiheit nach BNK und eine umfangreiche Bewertung des Standortes mithilfe der DGNB Zertifizierungssteckbriefe SITE 1.1, 1.2 und 1.3 nachgewiesen (Mikrostandort, Verkehrsanbindung, Nähe zu nutzungsrelevanten Objekten und Einrichtungen). Diese Inhalte des integralen Entwerfens bilden einen zentralen Teil der Arbeit und wurden iterativ im Entwurf berücksichtigt.
Abgabeleistungen
- Lageplan (M 1: 500), Grundrisse, Ansichten, Schnitte (M 1: 100/ 1:200)
- Materialkonzept incl. Detaildarstellungen M 1:10 der Fassade. Ein besonderer Fokus liegt auf einem nachhaltigen Materialeinsatz incl. der Demontage- und Recycling-Fähigkeit
- Energie- und Ökobilanzierung:
_ Konzeptphase: Drei strategische Varianten mit qualitativer Beschreibung der Konzeption, Konstruktion und Technik sowie Kenndaten (U-Werte, Ökodaten, erneuerbare Energien …)
_ Entwurfsphase Energiebilanzierung: mit Auswertung End- und Primärenergiebedarf Ist und Referenz, Einsatz erneuerbare Energien sowie passive Maßnahmen
_ Entwurfsphase Ökobilanzierung (eLCA): mit Randbedingungen der Zertifizierung DGNB und mit folgender Auswertung (Zahlenwerte und grafisch):
- GWP Global Warming Potential (in kg CO2äquivalent pro m2NGF) Gesamt sowie differenziert nach Konstruktion und Nutzung
- GWP Global Warming Potential (in kg CO2äquivalent pro m2NGF) der Konstruktion: Differenziert nach AW, DE+TR, DA, BP, FE, IW und TGA und differenziert nach den jeweiligen Modulen A bis D - Standort iund soziale Nachhaltigkeitskriterien:
Individuelle Bewertung des Standortes gem. SITE 1.1, 1.3 und 1.4, Nachweis des sommerlichen Wärmeschutzes, Nachweis der Tageslichtversorgung, barrierearmer Zugang und Nutzungsmöglichkeiten. - Modelle M 1:500 / 1:100
Die Abgabeleistungen insbes. der Energie- und Ökobilanzierung sind in einem gesonderten umfangreichen Berichtsheft nachgewiesen.
Ansprechpartner | |
Telefon: | +49 821 5586-2114 |
Ansprechpartnerin | |
Telefon: | +49 821 5586-3177 |















