Katharina Saule: ZeroCO2 - Seniorenwohnanlage Königsbrunn
Nachhaltiges Bauen mit BIM im Bestand

Projektbeschreibung
Bachelorarbeit WS 2021-22, Katharina Saule
Integraler Entwurf mit Schwerpunkt Bauen im Bestand, BIM
Betreuung: Prof. Dr. Martin Bauer, Prof. Dr. Dirk Jacob
Studiengang: Energieeffizientes Planen und Bauen – E2D
Die Klimaschutzziele sind eine Herausforderung und erfordern ein konsequentes Handeln. In dieser Arbeit wird der Beitrag des Bauens im Bestand zur Lösung untersucht werden. Der Fokus liegt dabei auf dem Ziel der Klimaneutralität.
Aus der Aufgabenstellung:
Im Rahmen allgemeiner politischer Vorgaben formuliert Bischof Meier auch für die Diözese Augsburg das Klimaschutzziel, bis 2045 Netto-Treibhausgasneutralität zu erreichen. Bislang wird hierfür in der Regel auf das Mittel der Kompensation zurückgegriffen und Photovoltaik-Anlagen z.B. auf Freilandflächen herangezogen.
Derzeit erarbeitet die Diözese dafür ein Klimakonzept. Bei der Bestandsbewirtschaftung stehen aktuell und künftig Maßnahmen an, die über das Jahr 2045 hinausweisen. Damit steht die Diözese vor dem generellen Problem aller Immobilienbetreibenden: Wie kann der Klimaschutz wirkungsvoll umgesetzt werden? Es stellt sich die Frage nach der strategischen Ausrichtung und die Frage nach den richtigen Konzepten für Bestandssanierungen. Anhand einer Wohnanlage in Königsbrunn werden in dieser Arbeit wichtige Fragen im Lebenszyklus der Immobilie realitätsnah geklärt.
Die ausgewählte Wohnanlage liegt in der Stadt Königsbrunn. Sie wird für betreutes Wohnen genutzt. Auch in Zukunft soll diese Nutzung beibehalten werden. Bei der Ausarbeitung soll untersucht werden, wie eine Sanierung bzw. Modernisierung so ausgeführt wird, dass das Gebäude mit der Sanierung klimaneutral betrieben werden kann.
Der Planungsansatz ist dabei notwendigerweise integral: Neben der Entwurfsplanung sowie der baukonstruktiven und bauphysikalischen Bearbeitung werden Elemente des Building Information Modelling BIM, eine umfassende Bestandsaufnahme und -bewertung, eine BIM-basierte Ökobilanzierung aller Elemente und ingenieurstechnische Leistungen bezüglich Lüftung, Wärme-/Kälte-/Licht- und Stromversorgung, Energie berücksichtigt und in einem umfassenden Berichtsteil dargestellt.
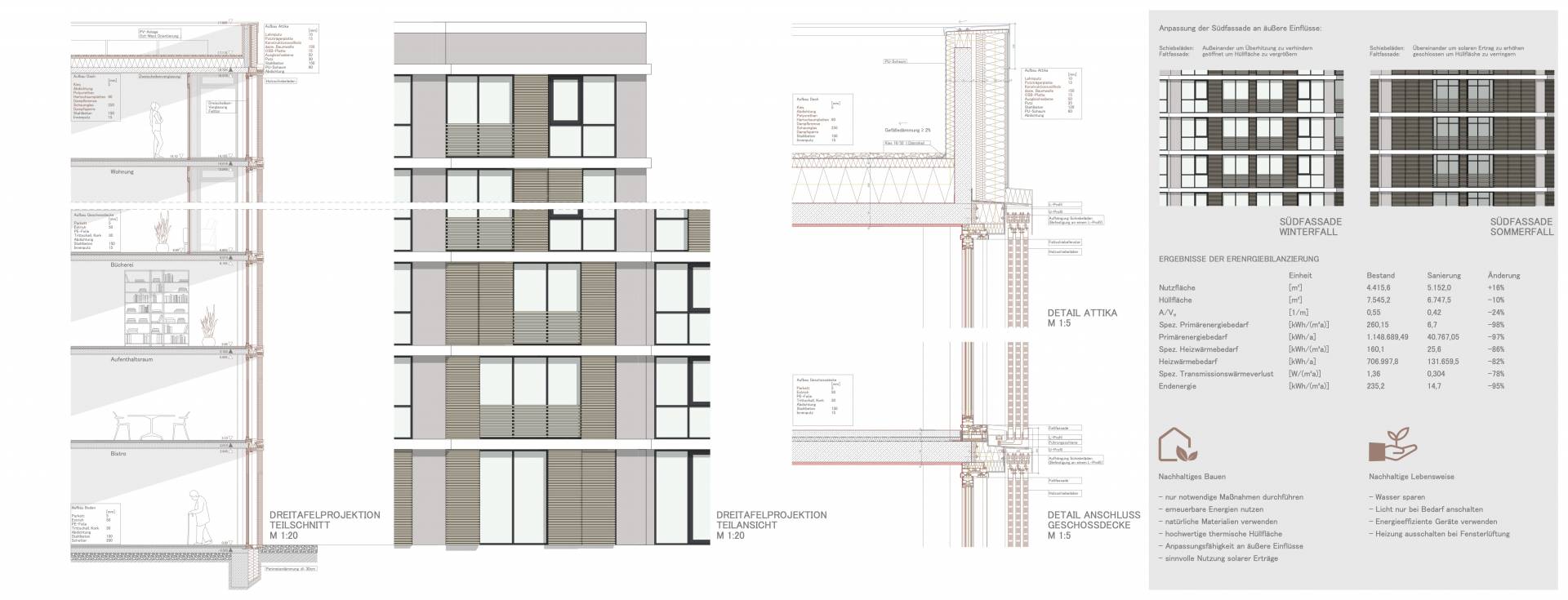
Building Information Modeling BIM der Bauteile
Die gezeigten Darstellungen werden ergänzt durch einen detaillierten Berichtsteil mit den weiteren Abgabeleistungen.
Abgabeleistungen:
- Entwurfsplanung:
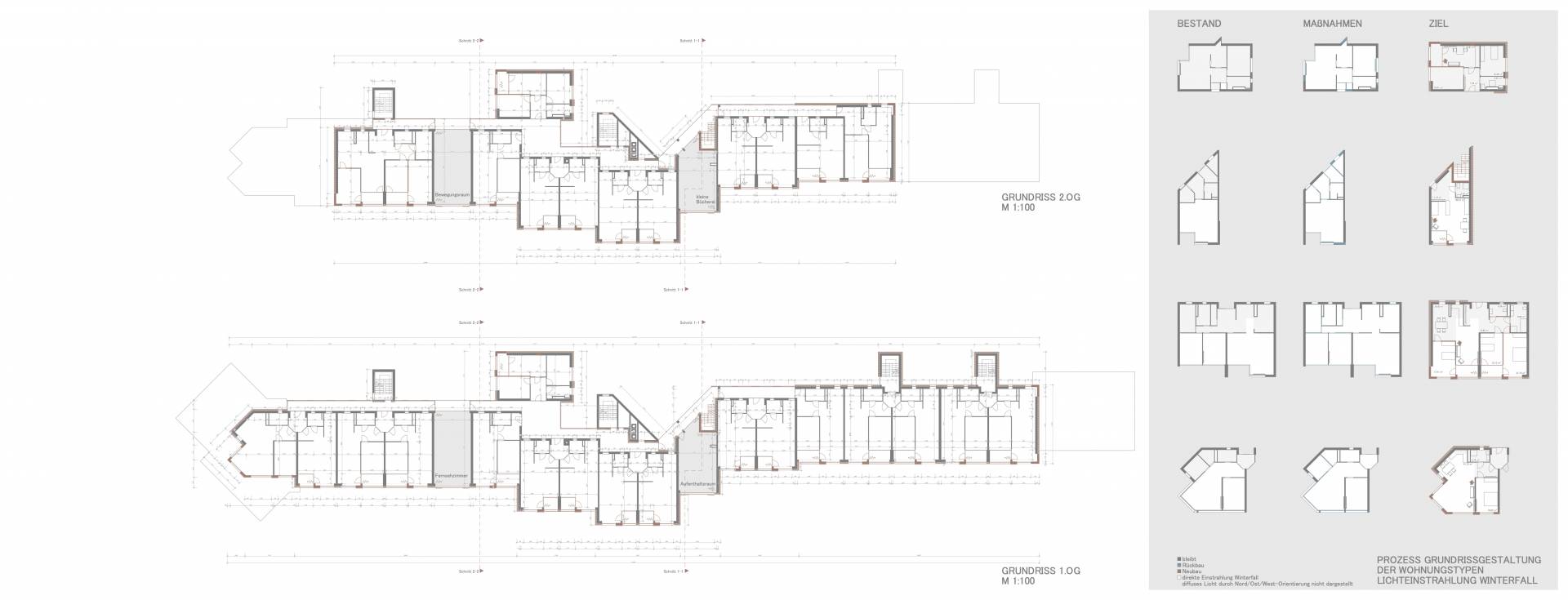
- Grundrisse aller Geschosse, EG mit Erschließung und Außenanlagen, M 1: 100,
- Ansichten, Schnitte, M 1: 100
- Lageplan M 1: 500
- Übergeordnete Konzepterläuterungen von Tageslicht, Nachhaltigkeit und TGA- Konzepten als Piktogramme (auf den Plänen) - Räumliche Darstellungen: Mindestens eine Innenraumperspektive (Computeranimationen oder Handzeichnungen/ Collagen sind zulässig)
- Präsentation der Abgabe als BIM Anwendungsfall
- Baukonstruktive / bauphysikalische Bearbeitung:
- Darstellung der Anforderungen an die Gebäudehülle
- Nachweis der konstruktiven Gestaltung (bis Einbindung Erdreich). M 1:20 anhand einer Teilansicht, eines Teilgrundriss und eines Schnittes des baukonstruktiven Entwurfes
- Zugehöriges Konstruktionsdetail Fassade/ Decke / Boden M 1:5
- Zugehörige Wärmebrückenberechnung. Nachweis Wärmebrückenfreiheit - Building Information Modeling:
- Building Information Model im LOD 300 Software nach Wahl
- Datenexport mit der IFC 2x3 Schnittstelle mit IFCGuid
- Datenextrakte für ausgewählte BIM - Fachanwendungen - Bestandsaufnahme und –bewertung mit
- Bewertung der Konstruktionselemente bezüglich EOL
- Potenzialschätzung Energie, Strom, Wasser
- Potenzialschätzung bezüglich Plusenergiestandard - Ökobilanz
BIM – Anwendungsfall: Basis vereinfachtes Verfahren nach BNB:
- Bilanzierung für alle Bauelemente Bestand am Ende Lebenszyklus (C1-C4)
- Bilanzierung aller neu hinzukommenden Bauelemente für Lebenszyklus (Herstellungsphase, Nutzungsphase bis Ende Lebenszyklus) - Lüftung:
- Darstellung Lüftungskonzept / -planung (opt. freie Lüftung) auf Grundlage einer Auslegung
- Darstellung einer Anlage für Teilbereiche des Gebäudes, deren Platzbedarf, die gestal- terische Einbindung und die Regelung für verschiedenen Nutzungsbereiche auf der Grundlage einer Auslegung - Wärme-, Kälte, Licht und Stromversorgung:
- Ggf. Auswahl Erzeuger (Vorplanungsniveau, Schätzung Leistungen u. Größen)
- Ggf. Auswahl Speicher (Vorplanungsniveau, Schätzung Leistungen u. Größen)
- Ggf. Auswahl Übergabesystem (Vorplanungsniveau, Schätzung Leistungen u. Größen)
- Ggf. Regelungskonzept (Besonderheiten) - Energie und Bauphysik:
- Nachweis GEG und Energiebilanz (freie Wahl Bilanzierungssoftware)
- Nachweis Wärmebrücken (siehe oben)
- Nachweise Feuchteschutz Bauteile
- Nachweise Tageslicht
- Nachweise Sommerlicher Wärmeschutz
- Grobdarstellung Schall-/Brandschutz
- CO2–Grobanalyse Lebenszyklus - Ausarbeitung einer Präsentation in Berichtsform:
- Präsentationsmappe als Tischvorlage für eine abschließende Projektbesprechung bei einem Bauherrn
- Bewertung der vorgeschlagenen Maßnahmen hinsichtlich Plusenergiestandard und Umweltwirkung(Lebenszyklusanalyse)
- Fazit der gesamten Ausarbeitungen zur Bewertung der Maßnahmen aus den Ingenieuruntersuchungen
- Broschüre mit den Berechnungen als Bauherrenpräsentation inkl. notwendigem Informationsmaterial - Persönliche Kurzvorstellung des Projekts als freier Vortrag
Ansprechpartner | |
Telefon: | +49 821 5586-3112 |
Fax: | +49 821 5586-3110 |
Ansprechpartner | |
Telefon: | +49 821 5586-3611 |







