KulturWerkstatt Günzburg
Leuchtturmprojekt auf dem Strehle-Areal im Rahmen der Landesgartenschau 2029

Projektbeschreibung
Modul "Integrales Entwurfsprojekt 2" im Sommersemester 2025
Betreuung: Prof. Dr. Joachim Müller (Integraler Entwurf, Modulleitung), Prof. Martin Endhardt Dipl. Ing. (FH) Freier Architekt (Integraler Entwurf), Prof. Dr. Timo Schmidt (Integraler Entwurf), M.Eng. Florian Rack (Gebäudetechnik, Nachhaltigkeitsbewertung), M. Eng. Michael Sedlmeier (Bauphysik)
Studiengang: Energieeffizientes Planen und Bauen – E2D
Aus der Aufgabenstellung:
Im Jahr 2029 richtet die Stadt Günzburg die Landesgartenschau aus. Mittendrin: Das Gelände der Nahrungsmittelfabrik Strehle. Seit Jahren liegt das Industriegelände brach, nun rücken die besonderen Potenziale des Ortes durch die besondere Lage, die Bestandsgebäude und die Option einer öffentlichen Nutzung in den Fokus:
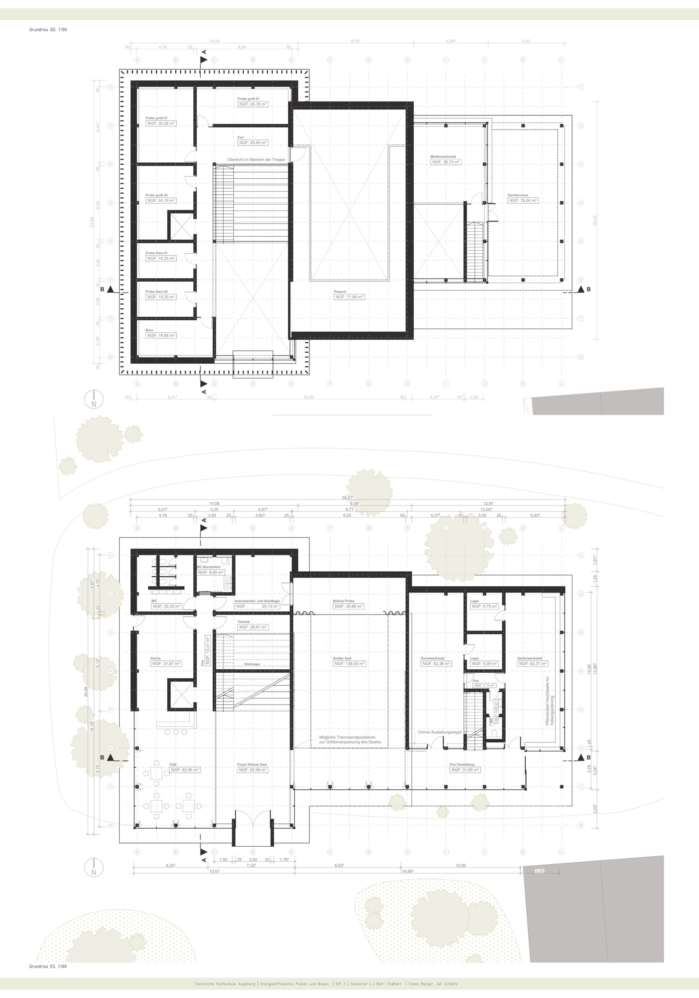
Mit dem Projekt „KulturWerkstatt“ entwarfen die Studierenden ein Zentrum für Kultur und kulturelle Bildung, das über das direkte Umfeld hinaus Ausstrahlung auf ganz Günzburg haben könnte. Es bietet mit den Themenbausteinen Musik, Kunst und Natur ein integratives Angebot für alle Altersgruppen und sozialen Herkünfte. Kinder, Teenager und Erwachsene bis hin zu Senioren kommen zusammen, der Ort wird zum Katalysator des gemeinschaftlichen Erlebens und ergänzt die bestehenden Angebote der Stadt.
Zentrales Ziel ist ein zukunftsweisendes und klimafreundliches Gebäude. Als Leistungen sind neben dem Gebäudeentwurf daher ein förderfähiges EG40 Niveau (KfW: klimafreundlicher Neubau KfN) einschließlich der QNG-Anforderungen zur Ökobilanz, des Wärmeschutzes, der solaren Wärmegewinne, der CO2eq-Emissionen aus der Nutzung sowie der Konstruktion sowie der Einsatz erneuerbarer Energien und nachwachsender Materialien planungsbegleitend zu berechnen und zu optimieren.
Austausch der Studierenden mit Bürgermeister, Vertreter:innen der Landesgartenschau, Kulturamt und Stadtwerken









Vor Ort auf dem Strehle-Areal: Für die Besichtigung begrüßte Oberbürgermeister Gerhard Jauernig die Studierenden und betonte die gelungene Verknüpfung des studentischen Projekts mit realen Themen und Fragestellungen. Nadja Eger als Vertretung für Karin Scheuermann, Geschäftsführerin der Landesgartenschau, und Jürgen Gleixner (Kulturamtsleiter Günzburg) begleiteten bei der Besichtigung des Geländes sowie der Bestandsgebäude und stellten sich den Fragen der Studierenden. Bedeutung und Funktionsweise der modernen Energiezentrale für Fernwärme an der Dillinger Straße erläuterte Lothar Böck als Leiter der Stadtwerke Günzburg.
Für den Herbst ist eine Präsentation der Projekte in Günzburg vorgesehen - ein Impuls für den Ort, eine Win-win-Situation für die Stadt Günzburg und die Studierenden.
Ansprechpartner | |
Telefon: | +49 821 5586-2114 |
Ansprechpartner | |
Telefon: | +49 821 5586-3127 |
Fax: | +49 821 5586-3110 |
Ansprechpartner | |
Telefon: | +49 821 5586-3170 |
Ansprechpartner | |
Telefon: | +49 821 5586-4061 |































