Mitten in Schwaben - Bauen im ländlichen Raum

Studiengang
Architektur (B.A.)Projektbeschreibung
Was ist regionales Bauen? Welche Strategien und Nutzungen für das Bauen im ländlichen Raum gibt es? Welche Formen der Innenentwicklung und welche zukünftigen Chancen und Potentiale des ländlichen Raums bestehen?
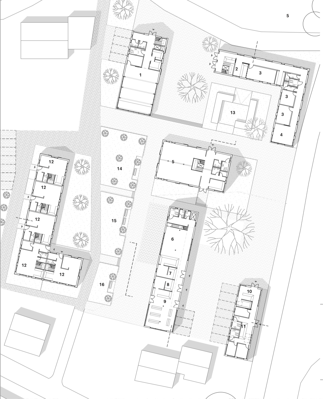
Im Sondergebiet: Regionales Bauen „Mitten in Schwaben“ im Wintersemester 2020/21 sind ausgehend von einer Standortanalyse eines ausgewählten regionalen Raumes die Potenziale und Defizite hinsichtlich einer nachhaltigen langfristigen Strategie für ein Dorf nördlich von Augsburg entwickelt worden.
Ziel war es, anhand eines konkreten architektonischen Entwurfs im Bestand dem Dorf und der Dorfgemeinschaft Perspektiven für die nachhaltige Entwicklung des ländlichen Raums zu bieten. Als Alternative zur weiteren Ausweisung von Bauland geht es um einen sensiblen Umgang mit dem Kontext, eine zeitgemässe, regionale Baukultur, eine gezielte Nachverdichtung, Umnutzung und/ oder Erweiterung.
Welche Typologien und Nutzungsmischungen sinnvoll sind und wie durch eine sensible Ästhetik und Materialisierung gute Architektur identitätsstiftend „Heimat“ bieten kann, war das Thema dieses Faches unter der Leitung von Prof. Katinka Temme und dem Architekten Daniel Reisch.




