Architektonische und energetische Neudefinition eines Augsburger Kulturdenkmals

Projektbeschreibung
Bachelorarbeit Anita Dirmeier, WS 2012-13
Betreuung: Prof. Dr. Joachim Müller, Prof. Michael Schmidt
Aus der Aufgabenstellung:
"... Im Rahmen der Bachelor-Arbeiten soll untersucht werden, in welcher Weise das derzeit ungenutzte Gebäude der „Nachtstallungen“ auf dem Gelände des Augsburger Schlacht- und Viehhofs in eine heutige Nutzung überführt sowie architektonisch und energetisch neu definiert werden kann.
Vorgesehen ist hierbei, unterschiedene Nutzungen zu integrieren, die separat voneinander funktionieren, jedoch Synergieeffekte erzeugen. So soll ein neuer Veranstaltungsbereich mit großem Saal der Ergänzung der gegenüberliegenden Kälberhalle und auswärtigen Veranstaltungen dienen. Eine Materialagentur nutzt das Zusammenspiel von Bestand und neuen baulichen Ergänzungen, um das Thema der Materialität in der Architektur am konkreten Beispiel sowie in Ausstellungen, Beratungen und Workshop-Bereichen erproben zu können. Eine Werbeagentur und drei Appartements ergänzen den Nutzungsmix.
Hierzu muss das Gebäude aus- und umgebaut werden. Eingriffe in den Bestand sind unverzichtbar alleine schon, um bei der großen Gebäudetiefe von 20 m gute Tageslichtverhältnisse im Inneren zu schaffen. Es ergibt sich ein faszinierendes Spiel von Alt und Neu. Wieviel Eingriff ist notwendig? Wieviel Veränderung verträglich? Welches Gesicht bekommt die heutige Ergänzung und - nicht zuletzt: Wie kann das energetische Konzept integraler Bestandteil dieser Erneuerung werden?"

Erläuterung des Entwurfs (Anita Darmeier):
Analyse des Bestands: Augsburger Industriekultur
Die noch heute erhaltenen Gebäude des Schlacht- und Viehhofs zwischen Proviantbach und Berliner Allee gehören zu den großen und beeindruckenden Zeugnissen der Industriekultur Augsburgs. Geplant von Stadtbaurat Fritz Steinhäußer und dem Architekten Gotthelf Stein wurden sie im Jahr 19000 in Betrieb genommen, nachdem die bisherigen Gebäude in der Innenstadt - darunter die von Elias Holl errichtete Stadtmetzg - keine ausreichenden Erweiterungsflächen boten. Zu ihrer Zeit galten die neuen Anlagen als die modernsten im deutschen Reich und nahmen mit ihren drei Teilen der Allgemeingebäude, der Gebäude der Stallungen (Viehhof) und der Schlachthallen (Schlachthof) mit Nebengebäuden eine Fläche von mehr als 60.000 m2 ein.
Nach zahlreichen Umbauten, Kriegsschäden und der Verkleinerung des Schlachtbetriebs sind von den ursprünglich 37 Gebäuden nur noch wenige erhalten, darunter die imposante "Kälberhalle", seit 2011 saniert mit Brauereibetrieb und Gastronomie. Entlang der Johannes-Haag-Straße dienten die "Nachtstallungen" als Quartier für das Großvieh. Im Krieg wurden weite Teile des ursprünglichen Satteldachs über dem als Futterboden genutzten OG sowie die oberen Außenwände weitgehend zerstört. In der späteren Zwischennutzung wurden zudem die Fassaden durch die Vergrößerungen der Öffnungen überformt.
Trotz dieser Veränderungen ist der ursprüngliche Charakter des Gebäudes mit seinen reich gegliederten Klinkerfassade und den imposanten Abmessungen von fast 60 m Länge und 20 m Breite noch erkennbar.

Entwurfsansatz: Differenzierte Ergänzung des Bestands
Ausgehend von einer Bewertung des Bestands hinsichtlich Probleme und Chancen wird eine differenzierte Erweiterung als architektonische und energetische Neudefinition vorgeschlagen - ein Update "Nachtstallungen 2.0".
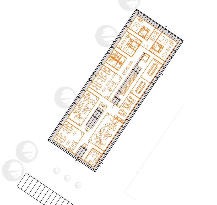
Nutzungsbezogen wird ein Veranstaltungsbereich mit Saal und Besprechungsräumen, eine Materialagentur mit Ausstelllung, Beratung, Verwaltung und Werkstattbereich, Büroflächen einer Werbeagentur sowie mehrere Appartments für Wohnen auf Zeit integriert.
Baulich drückt sich dies aus in einer Ergänzung der Tragstruktur und Wänden im Erdgeschoss, Öffnen einzelner Bereiche der Kappendecke zur Lichtführung und vertikalen Verbindung, der teilweisen Ertüchtigung der Zwischendecke, dem Neuaufbau der Obergeschoss-Wände und des Dachtragwerks (räumliches Fachwerk) sowie einer Ergänzung des Bestands durch eine mehrschichtigen Gebäudehülle.


Wesentliches Element der Neudefinition ist das Einrücken der thermischen Gebäudehülle gegenüber den Bestandswänden, die auf diese Weise in ihrer außen- wie innenseitigen Erscheinung und Konstruktion erhalten werden können. Durch den entstehenden zweigeschossigen Lichtraum ist trotz der enormen Gebäudetiefe eine natürliche Tageslichtführung auch im Erdgeschoss möglich, die ergänzt wird durch mehrere vertikale Lichthöfe im Gebäudeinneren. Durch die mehrschichtige Ausführung der neuen Fassade im Obergeschoss mit inneren Verglasung, thermischer Pufferzone und äußeren Fassade aus wetterfestem Stahl (Corten) ist eine differenzierte Anpassung der Gebäudehülle an unterschiedliche Bedingungen des Außenklimas möglich. Die Abbildung zeigt exemplarisch untersuchte Varianten der Öffnung der inneren und äußeren Fassade bei Wintertag / Winternacht / Sommertag / Sommernacht etc.



Die Wärmeversorgung erfolgt über den vorhandenen Fernwärmeanschluss (fp =0,32), die Wärmeübertragung über eine Fußbodenheizung. Die natürliche Belüftung des Gebäudes wird ergänzt durch eine Zu- und Abluftanlage mit Wärmerückgewinnung 85, Ab- und Zuluftleitungen werden im Pufferraum geführt. Büro-, Wohnungs- und Veranstaltungsflächen werden zentral mit Mischlüftung versorgt. Photovoltaik-Module auf den Dachflächen decken den Eigenbedarf des Gebäudes. Vor sommerlicher Überhitzung schützt u.a. die Doppelfassade. Eine gute (Nacht-) Lüftung und sommerliche Nachtauskühlung kann durch die Öffnung des Atriums und der Fenster erreicht werden. Die deckenintegrierten Latentwärmespeicher-Strukturen aus PCM erhöhen die Speicherkapazität und gewünschte thermische Trägheit des Gebäudes können durch die Nachtlüftung entladen werden, um am nächsten Tag wieder einsatzfähig zu sein. Mit einem spezifischen Transmissionswärmeverlust von Ht´= 0.47 W/m2K wird eine Abwägung zwischen Bestandserhalt und maßvollen Neuerungen getroffen und ein Effizienzhaus-70-Standard deutlich unterschritten.
Anita Darmeier
Abgabeleistungen:
- Analyse Bestand mit Identifikation und Bewertung Probleme und Chancen
- Architektonische Neudefinition als Gebäudeentwurf M 1:100 im städtebaulichen Zusammenhang M 1:500
- Konkretisierung eines Vorschlages zur Neunutzung
- Materialkonzept mit Fokus auf nachhaltigen Materialeinsatz im Kontext des Bestandes
- Detaildarstellungen der relevanten Fassadenbereiche M 1:10
- Tageslichtkonzept aller Bereiche und sommerlicher Wärmeschutz
- Energiekonzept mit Bevorzugung passiver Systeme und rechnerischen Nachweisen
- Technikkonzept





Ansprechpartner | |
Telefon: | +49 821 5586-2114 |
Ansprechpartner | |
Telefon: | +49 821 5586-3115 |
