
Naturmuseum mit Planetarium und Sternwarte - Janik Rehm
Erweiterung der Umwelt-Bildungs-Meile am Botanischen Garten: Eine Chance für Augsburg

Projektbeschreibung
Bachelorarbeit Janik Rehm, WS 2021-22
Integraler Entwurf mit Schwerpunkt nachhaltiger Materialeinsatz, Lebenszyklus, Typologie
Betreuung: Prof. Dr. Joachim Müller, Prof. Susanne Runkel
Studiengang: Energieeffizientes Planen und Bauen – E2D
Aus der Aufgabenstellung:
„Umweltbildung gewinnt vor dem Hintergrund der übergeordneten Perspektive eines Wandels zu mehr Nachhaltigkeit und Klimagerechtigkeit zunehmend an Bedeutung. Die Ziele nachhaltiger Entwicklung, etwa gemäß der von der UN verabschiedeten Agenda 2030, erfordern somit u.a., „dass alle Lernenden die notwendigen Kenntnisse und Qualifikationen zur Förderung nachhaltiger Entwicklung erwerben, unter anderem durch Bildung für nachhaltige Entwicklung und nachhaltige Lebensweisen (…)“.
Das Naturmuseum Augsburg kann hierzu einen wichtigen Beitrag leisten. Als ältestes Museum der Stadt hat es eine bewegte Geschichte hinter sich. Seit 1991 befindet sich die Sammlung und ein Planetarium als Teil des Einkaufzentraums „Augusta Arcaden“ in guter innerstädtischer Lage, hat derzeit aber kein ihrer Bedeutung angemessenes Gebäude oder Kontext, welche weitere Möglichkeiten der Umweltbildung eröffnen könnte. Ein große Chance für Augsburg bietet sich mit den Erweiterungsflächen des Botanischen Gartens Augsburg, wo derzeit mit dem „Umweltbildungszentrum Augsburg“ ein erster wichtiger Baustein einer „Umweltbildungsmeile“ entsteht.
Aufgabe ist daher der Entwurf eines Neubaus für das Augsburger Naturmuseum mit Planetarium und einer Sternwarte. Das Programm umfasst zusätzlich einen Veranstaltungsbereich „Forum“, ein Cafe/ Restaurant und pädagogische Bereiche mit Werkstattcharakter. Ein Übernachtungsbereich mit 30 Schlafplätzen bietet Raum z.B. für Schulklassen oder Erwachsenengruppen. Die Synergie aus dem Hybrid unterschiedlicher Nutzungen und dem besonderen Ort soll voll entfaltet werden. Hierzu ist eine besonders hohe Qualität der Innenbereiche, der Blickbeziehungen sowie der Kommunikationsflächen unumgänglich. Ebenso zentral ist auch die Wirkung nach außen, bei der das Gebäude selbst eine exemplarische Vorbildfunktion für zukunftsfähiges Bauen einnimmt.“
Erläuterung des Entwurfs:
Die Themen der Nachhaltigkeit und Klimagerechtigkeit gewinnen in der Gesellschaft zunehmend an Bedeutung, wodurch Bedarf an geeigneten Lehr- und Bildungsstätten resultiert, die sich diesen Themen widmen. Hierzu kann das Umwelt-Museum-Augsburg einen wichtigen Beitrag leisten. In Verbindung mit dem bereits bestehenden Umweltbildungszentrum entwickelt sich im Südosten der Stadt Augsburg eine Umweltbildungsmeile, die als Lehr-, Bildungs- und Erlebnisort die Stadt bereichern.

Der Ort: Gebäude im Kontext
Das Umweltmuseum entsteht auf den Erweiterungsflächen östlich des botanischen Gartens und bildet unter Einbeziehung des angrenzenden Umweltbildungszentrums, des botanischen Gartens und großflächigen Grünflächen, wie den Siebentischwald und die Spickelwiese, die zentrale Anlaufstelle für nachhaltige Entwicklung der Stadt Augsburg. Die Umweltbildungsmeile gilt als Vorzeigeprojekt im Sinne der Nutzungskriterien, die den ökologischen, ökonomischen und sozialen Prinzipien unterliegen und die Gebäude des UBZ und des UMA im Sinne des ökologischen und energieeffizienten Bauens.
Das Umweltmuseum bietet Tagesbesuchern sowie Übernachtungsgäste, Schulklassen und Gruppen die Möglichkeit sich mit wichtigen Umweltthemen zu befassen und näher kennenzulernen.
Das Gebäude ist auf dem Grundstück so verortet, dass sich ein großer öffentlicher Platz zwischen dem Umweltbildungszentrum und dem Neubau des Umweltmuseums ausbildet. Durch die Gebäudeform, Verortung des Gebäudes und Außenraumgestaltung entsteht ein stimmiges Gesamtensemble. Die Freiflächen sind gespickt mit „grünen Inseln“, die zum Verweilen einladen und mit den orthogonalen Baukörpern des Umweltbildungszentrums und Umweltmuseums brechen. Dadurch entsteht eine freie Wegeführung, die auf den zentralen Vorplatz der Umweltbildungsmeile mündet.
Das Gebäude: Innenraum
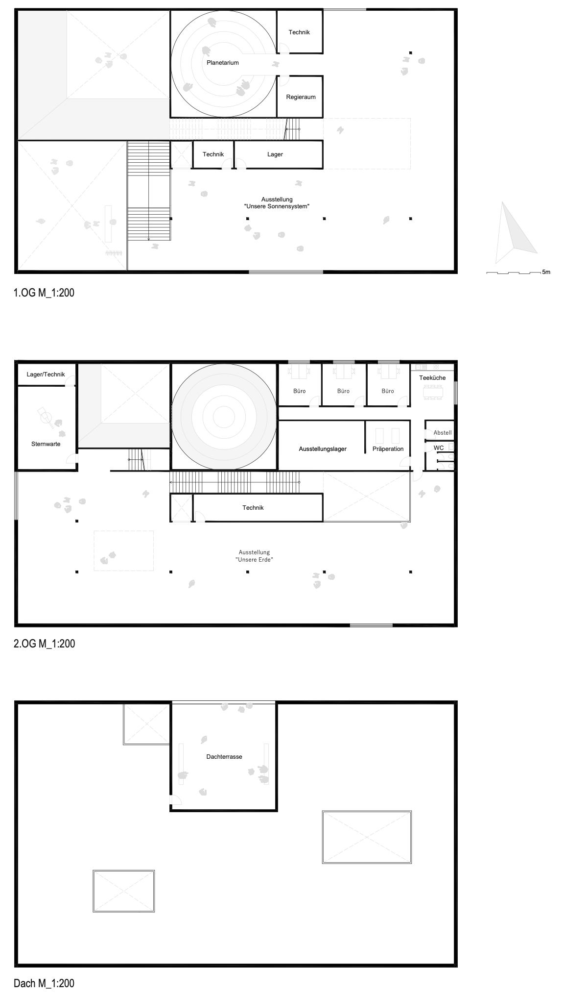
Der 3-geschossige Bau des Umweltbildungszentrum beinhaltet Ausstellungsflächen, Lern-, Begegnungs- und Erlebnisorte sowie Übernachtungsmöglichkeiten. Der Haupteingang befindet sich im Osten des Gebäudes und wird über den Vorplatz der Umweltbildungsmeile erschlossen. Dieser führt in das große Foyer in dem die Besucher ankommen und sich informieren. Zusammen mit dem Forum bietet das Foyer Raum für eine wechselnde Sonderausstellung aus den Themen Natur, Kunst und Kultur. Der Bereich des Forums, der von einem trichterförmigen Luftraum inszeniert wird und dadurch spannende raumatmosphärische Eindrücke entstehen lässt, schafft neben der Sonderausstellung einen Ort für Begegnung, Vorträge und flexible Nutzungen. Dieser Raum bildet zusammen mit dem angrenzenden Cafe und der Bibliothek die zentrale Begegnungsfläche des Umweltmuseums. Neben diesen öffentlichen Museumsflächen beinhaltet das UMA im Erdgeschoss Übernachtungsmöglichkeiten, wodurch Schulklassen, Gruppen und Einzelpersonen sich intensiver mit den Themen der Nachhaltigkeit befassen und durch einen ausgedehnten Aufenthalt die Umweltbildungsmeile erkunden können. Das Erkunden und Entdecken der Themen der Nachhaltigkeit, Klimagerechtigkeit und der Natur wird in den Naturwerkstätten ermöglicht, wo die Besucher in Workshops oder selbständiges Lernen sich diesen Themen nähern. Der Ausstellungsbereich setzt sich im 1. Obergeschoss fort. Hier erwartet die Besucher die großzügige Dauerausstellung „Unser Sonnensystem“, die sich mit der Entstehungsgeschichte der Erde und des Universums auseinandersetzt. Highlight dieser Themenausstellung stellt das Planetarium und die Sternwarte dar. „Unsere Erde“ eine weitere Dauerausstellung befindet sich im 2. Obergeschoss und betrachtet die vielfältige Flora und Fauna unseres Planeten. Der Ausstellungsrundgang kann durch einen Besuch der Dachterrasse, die Ausblicke auf die Umweltbildungsmeile, den Naturerlebnispfad, das Feuchtbiotop und ausgedehnte Grünflächen ermöglicht, abgeschlossen werden.

Die formale Ausgestaltung des Umweltmuseums entwickelt sich aus dem Umweltbildungszentrum und der Nutzung heraus und liefert den Besuchern einen abstrakten Eindruck des im Gebäude behandelten Themas. Durch die ablesbare Formensprache des Gebäudes sowie die Ausgestaltung der Fassade durch Materialität und Struktur und die Einbettung und Integration in den gegebenen Außenraum entsteht ein Museumskomplex mit Wiedererkennungsmerkmal. Der Baukörper gliedert sich in zwei Bereiche, einem transparenten aufgelösten Erdgeschoss, dass im ständigen Austausch mit dem Außenraum steht und einem geschlossenen, introvertierten Bereich des 2. und 3. Obergeschosses, der den Fokus der Besucher auf die Ausstellung richtet. Der untere aufgelöste Teil des Umweltmuseums, der mit seinen außenliegenden Stützenanordnungen den Bezug zum Umweltbildungszentrum herstellt, und der geschlossene Bereich mit einer verästelten Holzfassade stellen die Abstraktion einer Baumgruppe dar.
Das Umweltmuseum Augsburg bietet neben einem Museumsbesuch mit hohem Erlebnis- und Informationswert der behandelten Themen, auch ein Raum- und Architekturerlebnis. Dieses architektonische Erlebnis des Gebäudes entsteht durch das Integrieren von Lufträumen, die als raumbildendes Element Synergien und Bezüge zwischen den Geschossen herstellen und so das Interesse das Museum weiter zu entdecken weckt. Die dadurch entstehenden raumatmosphärischen Qualitäten werden durch einen bewussten Einsatz hochwertiger und ökologischer Oberflächenmaterialien verstärkt.
Abgabeleistungen
- Lageplan (M 1: 500), Grundrisse, Ansichten, Schnitte (M 1: 100/ 1:200)
- Materialkonzept incl. Detaildarstellungen M 1:10 der Fassade. Ein besonderer Fokus liegt auf einem nachhaltigen Materialeinsatz incl. der Demontage- und Recycling-Fähigkeit
- Energie- und Ökobilanzierung:
_ Konzeptphase: Drei strategische Varianten mit qualitativer Beschreibung der Konzeption, Konstruktion und Technik sowie Kenndaten (U-Werte, Ökodaten, erneuerbare Energien …)
_ Entwurfsphase Energiebilanzierung: mit Auswertung End- und Primärenergiebedarf Ist und Referenz, Einsatz erneuerbare Energien sowie passive Maßnahmen
_ Entwurfsphase Ökobilanzierung (eLCA): mit Randbedingungen der Zertifizierung DGNB und mit folgender Auswertung (Zahlenwerte und grafisch):
- GWP Global Warming Potential (in kg CO2äquivalent pro m2NGF) Gesamt sowie differenziert nach Konstruktion und Nutzung
- GWP Global Warming Potential (in kg CO2äquivalent pro m2NGF) der Konstruktion: Differenziert nach AW, DE+TR, DA, BP, FE, IW und TGA und differenziert nach den jeweiligen Modulen A bis D - Standort iund soziale Nachhaltigkeitskriterien:
Individuelle Bewertung des Standortes gem. SITE 1.1, 1.3 und 1.4, Nachweis des sommerlichen Wärmeschutzes, Nachweis der Tageslichtversorgung, barrierearmer Zugang und Nutzungsmöglichkeiten. - Modelle M 1:500 / 1:100
Die Abgabeleistungen insbes. der Energie- und Ökobilanzierung sind in einem gesonderten umfangreichen Berichtsheft nachgewiesen.
Ansprechpartner | |
Telefon: | +49 821 5586-2114 |
Ansprechpartnerin | |
Telefon: | +49 821 5586-3177 |

















