Selbstversorgersiedlung „Upside“
Wohnen in einem sich landwirtschaftlich selbst versorgenden Stadtquartier am Siebentischwald in Augsburg

Projektbeschreibung
Bachelorarbeit Michelle Weck, WS 2018-19
Betreuung: Prof. Georg Sahner, Prof. Dr. Christian Bauriedel,
mit DI Andrea Heistinger (Selbstversorgerin) Schiltern Österreich, MA Thea Hirle (Bauphysik), BR Dr. Josef Rott Oberste Baubehörde München.
Studiengang: Energieeffizientes Planen und Bauen - E2D
Erläuterung des Entwurfs
Selbstversorgersiedlung
Nachhaltiger Städtebau soll menschliche Bedürfnisse in Einklang mit den vorhandenen Ressourcen bringen. Globalisierung und Industrialisierung haben eine Entfremdung von Menschen, Natur und Nahrung gebracht. Heutzutage wünschen sich wieder mehr Menschen Wissen über die Lebensmittelherstellung und Produktion. Zudem sind die Wohnungen besonders begehrt, die grüne Inseln in direkter Umgebung besitzen. Warum nicht Selbstversorgung und nachhaltige Gebäude am selben Ort planen?!
Die zentralen Themen der Selbstversorgersiedlung „Upside“ sind:
- Wohnen mit und in der Natur (Reduzierung versiegelter Flächen)
> Aufgeständertes Gebäude - Selbstversorgung/Landwirtschaft als Bestandteil des Wohnens
> Gemeinschaftsräume mit Anbauflächen - Straßen- und Wegeausbau: „grüne“ Fortbewegung
> Autofreie Siedlung, Car Sharing, breite Fahrrad- und Gehwege - Soziales Miteinander + Verknüpfung von Wohnen/Arbeiten
> Abgesenkte öffentliche Plätze - Bezahlbares Wohnen und flexible Wohnungsgrundrisse
> Verschieden große Haustypen, flexible Wohnungsgrundrisse - Reduzierter/nachhaltiger Ressourcen- und Wasserverbrauch
> Stampflehm, regionales Holz, Schilf- und Holzfaserdämmung, Recyclingdusche und Wasserauffangbecken - Erneuerbare Energien in Planung miteinbeziehen
> PV-Anlage, Strom und Energiegewinnung duch Biogasanlage aus Abfällen der Selbstversorgung
Städtebau
Das Quartier grenzt an den Augsburger Siebentischwald und liegt zwischen B300-Inverness Allee/ Prof. Steinbachstraße. Auf dem Planungsgebiet befindet sich derzeit eine Schrebergartenanlage. Das Konzept soll Wohnen mit Selbstversorgung verbinden und nicht wie im derzeitigen Bestand voneinander trennen. Die Grünverbindungen spielen in dieser Arbeit eine ausschlaggebende Rolle, ebenso wie das Thema der Selbstversorgung.
„Durchfließen“
Zentrales Thema des Städtebaus ist zum einen der Grüngürtel des Siebentischwaldes, der ungehindert in die Stadt hineinfließt. Zudem soll dieses „Durchfließen“ auch in der landwirtschaftlichen Fläche und im Gebäudeentwurf eine zentrale Rolle einnehmen. Auch im Wegekonzept wird dieses Thema aufgegriffen.
„Unberührter Boden“
Das Fundament für eine Selbstversorgersiedlung stellt der zu bewirtschaftende Boden dar. Die Erde soll fruchtbar und leicht zu kultivieren sein. Ziel ist es, einen möglichst großen Ernteertrag zu erlangen, das heißt: maximale Flächennutzung für den Anbau. Der Boden des Gebiets wird ausschließlich für den Feldbau genutzt. Er bleibt von den Wohngebäuden unberührt. In den aufgeständerten Obergeschossen wird Platz für das Wohnen geschaffen. Im gut erschlossenen Erdgeschoss befindet sich das Gewächshaus, welches Erträge in den Wintermonaten ermöglicht. Zusätzlich wird die Anbaufläche durch Gewächshäuser in der Mitte des Gebäudes, Dachbegrünung für Bienen, Streuobstwiesen und kultivierte vertikale Wände erweitert.
Eine erwachsene Person verzehrt im Jahr durchschnittlich 95 kg verarbeitetes und frisches Gemüse. Auf einer Fläche von 1 m² kann im Durchschnitt von 3 kg Ertrag ausgegangen werden. So sollten mindestens 100 m² Anbaufläche pro Person für eine vegetarische Selbstversorgung angesetzt werden. (A. Heistinger)
Gewächshaus – „Indoor Farming“:
Im gesamten Erdgeschoss des Gebäudes und im Gemeinschaftsraum zwischen zwei bestehenden Wohnungen pro Etage befindet sich der Indoor-Farming Bereich. Hier können die Bewohner sich sowohl im Sommer als auch Winter mit ausgewählten Gemüsesorten selbst versorgen.
Wand - „Vertical Farming“:
Unterstützend für die horizontale Ausrichtung im Städtebau wird die begrünte Wand nach Süden ausgerichtet. Moos und Pilze befinden sich auf der Nordseite. Das Moos ist für die O2 Produktion und Luftfilterung vorhanden. Im Gebäude besteht die Wand aus Stampflehm, das in Pflanzensubstrat über geht. So kann auch hier angebaut werden. Seitlich läuft diese „grüne“ Gebäudewand mit Kletterpflanzen (Hopfen etc.) aus und wird dadurch lichtdurchlässiger. Die Südseite der Wand ist sowohl im Gebäude als auch im Freien für Vertical Farming geeignet.
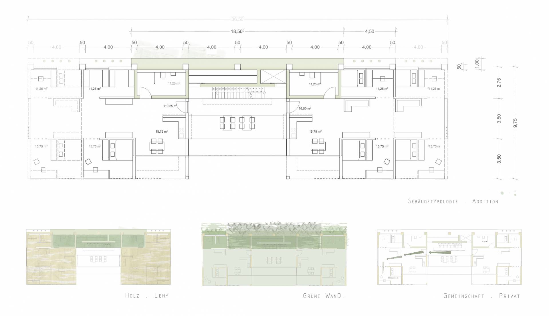
Gebäudeentwurf
Die Mehrfamilienhäuser der Selbstversorgersiedlung sind aus Holz gefertigt. Diese werden durch eine Lehmwand und ein Gewächshaus vervollständigt. Regionale Holzvorkommen ermöglichen ein nachhaltiges Gebäude. Die Vorteile der Materialeigenschaften werden passend eingesetzt: Das Holz sorgt für gute Raumakustik, Feuchteregulierung in den Innenräumen und unterstützt den Wohlfühlfaktor in den Wohnräumen. Die Stampflehmwände speichern die Kälte und ermöglichen so beste Verhältnisse für Lagerräume, ebenso ist diese Fähigkeit der Feuchteregulierung vorteilhaft für die Bäder der vier Parteien.
Der Grundriss wurde auf Grundlage eines modular koordinierten Systems entwickelt, so kann dieser durch ein weiteres Modul erweitert werden: Aus einer Drei-Zimmer-Wohnung entsteht eine Fünf-Zimmer-Wohnung. Auch ein Zusammenschluss von zwei übereinander liegenden Wohnungen ist nicht ausgeschlossen, ein großzügiger Flur lässt flexible Umbaumaßnahmen zu. So kann auch eine Art Doppelhaushälfte in dem Gebäude entstehen.
Besonders wohnenswert werden die „Upside“-Gebäude durch die Anordnung der Gemeinschafts- und Privaträume. Man gelangt von dem mittigen Gewächshaus, das für alle Parteien des Hauses zugänglich ist, durch eine Haustür in die privaten Gemeinschaftsräume: Wohnküche und Wohnzimmer. Durch sinnvoll eingesetzte Wände entstehen die immer privater werdenden Räume: der Vorraum mit Schreibtisch/Ankleide und die Schlafnische. Durch die Aufständerung des Gebäudes sind alle Wohnräume von äußerer Einsicht geschützt und ermöglichen den Bewohnern durch die vollflächige Verglasung die unbeschreibliche Aussicht auf das zu Füßen liegende Grün.
Energiekonzept
Alle Gebäude der Siedlung besitzen einen Niedrigenergiehaus-Standard (KFW 40). Der „energetische Dreisprung“ ist ein wichtiger Teil des Gebäudeentwurfs. Nur die nötigste Fläche wurde fürs Wohnen eingeplant. Eine nachhaltige Wärmedämmung schützt das Gebäude vor dem sommerlichen und winterlichen Wärmeaustausch. So besitzen die „Upside“-Gebäude einen sehr geringen Energie- und Wärmeverbrauch. Dieser wird von dezentralen Photovoltaik- und Solaranlagen mit Pufferspeichern, Wärmepumpen im Erdreich und einer zentralen Biogasanlage gedeckt, die mit Abfällen der Selbstversorgung betrieben wird.
Kühlkonzept
Stampflehm - Eine Stampflehmwand ist zusätzlich im Wohnraum und im Gewächshaus integriert. Diese dient als Wärme- bzw. Kältespeicher und hält die Raumtemperatur im Gebäude konstant. Durch Fensterlüftung wird ausreichend frische Luft in die Wohngebäude gebracht und durch mögliche Nachtlüftung kann dies optimiert werden.
Gewächshaus - Das Gewächshaus kann im Sommer vollständig durchlüftet werden, so wird eine Überhitzung im Sommer vermieden.
Heizkonzept
In der Heizperiode lässt sich das Gebäude passiv beheizen. Als Wärmequellen dienen dabei die internen Wärmegewinne der Nutzer in der Nacht, sowie die solare Einstrahlung am Tag durch das Gewächshaus.
Für maximale solare Einträge ist der Wintergarten südlich orientiert und kann auch über eine kleine Dachfläche solare Wärme gewinnen. Nach der Aufheizung im Gewächshaus wird die frische Luft in den Wohnraum eingeführt. Die Wärme wird dann in der Lehm-Wand eingespeichert.
Das Gewächshaus wird im Winter der Wohnfläche hinzugefügt. Der Wintergarten kann sich somit bei Sonneneinstrahlung aufheizen. Diese Wärme kann durch die Fenster in den Wohnbereichen, die sich zu dem Wintergarten orientieren genutzt werden. So ist eine Fensterlüftung mit erwärmter Luft möglich.
Ansprechpartner | |
Telefon: | +49 821 5586-3174 |










