Ein Leuchtturmprojekt der Hochschule Augsburg in der Stadt

Projektbeschreibung
Bachelorarbeit Paul Brückner, WS 2017-18
Betreuung: Prof. Dr. Joachim Müller, Prof. Michael Schmidt
Auszeichnung: Anerkennung WBG-Preis 2018
Aus der Aufgabenstellung:
"... Der Hochschule Augsburg bietet sich auf einem Grundstück in exponierter Lage am Bahnhof Haunstetter Straße die Chance, ein deutliches Schaufenster, einen "Leuchtturm" zu entwickeln, der die Arbeit der HSA in die Stadt hinein sichtbar macht, und dies gleichzeitig mit einer programmatischen Öffnung der Hochschule in die Gesellschaft hinein verbindet. Ein offenes Haus, das von Innen nach Außen Innovationskraft ausstrahlt, Bürger, Schüler, Fachleute und andere Besucher anzieht und ihnen eine Begegnung in einer Lernlandschaft ermöglicht.
Das Programm beinhaltet u.a. einen Veranstaltungssaal und Seminarräume, Ausstellungsflächen, eine InnovationsWerkstatt als Lehr- und Forschungsfläche für digitale Produktionsprozesse, Büros für Start-Ups, eine Cafeteria sowie Flächen für informelles Begegnen und freies Arbeiten."
Erläuterung des Entwurfs (Paul Brückner):
Suffizienz, Effizienz und Konsistenz als zentrale Entwurfsthemen
Bauen auf der grünen Wiese scheint nicht zielführend, um den Problemen in Gegenwart und Zukunft zu begegnen. Um weiteres Ausufern der Städte in ländliche Gebiete und der damit einhergehenden Zerstörung natürlicher Habitate entgegen zu wirken, ist die Nachverdichtung der Städte bei maximaler Ausnutzung der Potenziale und Qualitäten ein entscheidender Ansatz. Der Planer muss dabei nicht nur ökonomisch, sondern auch ökologisch und soziokulturell höchsten Ansprüchen Rechnung tragen: Raum muss als wertvollstes Gut der Gegenwart begriffen werden. Der ökologischste Bau ist immer der Nichtgebaute. Somit ist die Frage nach der Suffizienz die erste, gefolgt von den Fragen, wie die eingesetzten Mittel effizient verwendet und der Eingriff durch nachhaltige Wertschöpfung kompensiert werden kann. Höchste Nutzerzufriedenheit ist dabei genauso wichtig wie beispielsweise der Primärenergiebedarf des Gebäudes.

Potenziale des Ortes
Das gegebene Grundstück liegt in der Verlängerung des Hochschulgeländes an dem Verkehrsknotenpunkt „Bahnhof Haunstetter Straße“, wo Bahn, Tram und Kraftverkehr aufeinander treffen. Im Süden grenzt die etwa sieben Meter hohe Bahnüberführung, im Norden ein Mehrfamilienhaus an das Grundstück. Nach Osten ist die Blickbeziehung zur Bibliothek der Hochschule wesentlich.
Im ersten Schritt wurde das Grundstück auf Potenziale hinsichtlich natürlicher Belichtung und Belüftung sowie solarer Wärmegewinne untersucht. Auch das Lärm- und Schadstoffaufkommen aus Bahn und Straßenverkehr wurde berücksichtigt. Aufgrund der öffentlichen Nutzung und des gewünschten Leuchtturmcharakters waren auch Besucherströme, Erreichbarkeit und Außenwirkung entwurfsführend: Es sollte ein breites Interesse geweckt und durch einladende Gesten ein bildungsübergreifender Austausch gefördert werden.
Aus diesen Ansätzen heraus entstand eine Grundgeometrie, welche sowohl die Achse zur nördlichen Wohnbebauung, als auch jene nach Osten zur Hochschule aufnimmt und so symbolisch für den Schnittpunkt zwischen Bildungsstätte und Bürger steht.

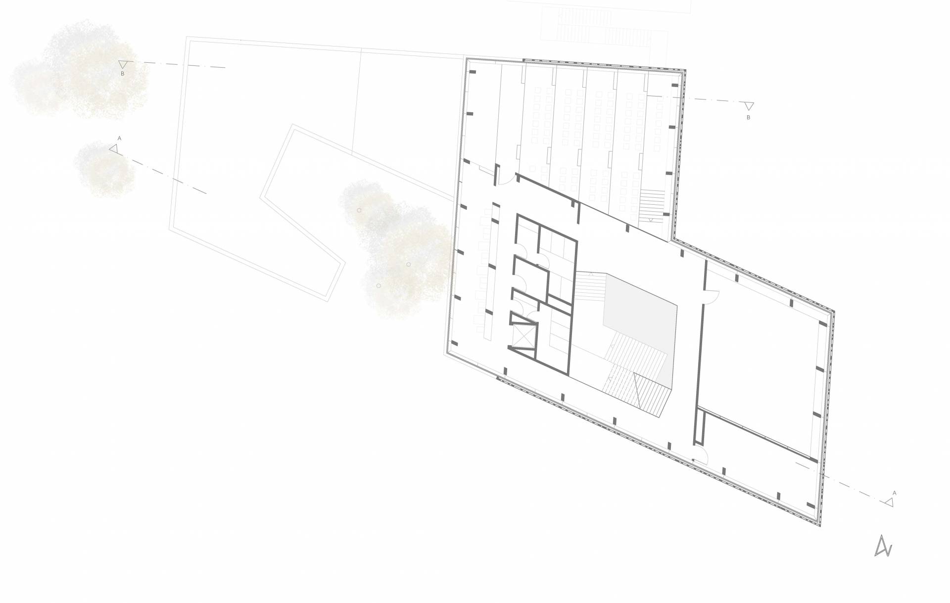
Atrium als räumliches und klimatisches Herz
Die innere Gebäudeorganisation wurde in Hinblick auf größtmöglichen Nutzerkomfort, Tageslichtnutzung und sinnvoller technischer Versorgung entwickelt. Das Herz des Gebäudes stellt ein Atrium im Kern dar. Zum einen kann so die natürliche Belichtung bis tief ins Innere des Baukörpers gewährleistet werden, zum anderen entsteht hier eine Zone der Erschließung, Begegnung und des Austauschs. Darüber hinaus leistet das Atrium einen wichtigen Beitrag zur natürlichen Belüftung im Sommer und in den Übergangszeiten. Durch die Höhe des Luftraumes kann der thermische Auftrieb zum natürlichen Luftwechsel herangezogen werden. Die Vortemperierung der Zuluft in einem Erdkanal und die Platzierung der Ansaugung im begrünten Hofbereich, verbessern den Nutzerkomfort und die Energiebilanz nochmals. So wird die Frischluftzufuhr ohne das Öffnen der Fenster und ohne Dauerbetrieb des Lüftungsgerätes ermöglicht, Lärm- und Schadstoffbelastung im Gebäudeinneren können stark reduziert werden.

Um das Atrium sind die Räume ost/west orientiert, um wesentliche Blickbezüge zur Umgebung herzustellen. Es wurde großen Wert auf multifunktionale Räume gelegt. Neben den zahlreichen offenen Bereichen für selbstständiges oder gruppenweises Arbeiten soll der Vortragssaal mit seinen attraktiven Ausblicken auch tagsüber als Arbeits- und Aufenthaltsbereich genutzt werden. Die Seminarräume mit ihren verschiebbaren Wänden können neben dem Hochschulbetrieb auch als Ausstellungsfläche oder für abendliche Yogaworkshops und dergleichen genutzt werden. Die Innovationswerkstatt ist als praktische Lehr- und Forschungsfläche u.a. für digitale Produktionsprozesse straßenseitig gut einsehbar. Dies trifft auch auf die Ausstellungsfläche zu. In Kombination mit einem kleinen Café im Erdgeschoss soll sich hier jeder Interessierte willkommen fühlen.

Innovationkraft als Ausdruck: Multifunktionale Moos-Fassaden
Grünflächen in der Stadt können natürlich kein Ökosystem in freier Natur ersetzen, dennoch tragen zusammenhängende Bereiche zur Biodiversität auch innerhalb des urbanen Raums bei. Der mit Birken bepflanzte und begrünte hintere Hof schafft, insbesondere für die im Erdgeschoss angeordneten StartUp- Büros, attraktive Blickbezüge und adiabate Kühlung im Sommer. Auch in den oberen Geschossen bietet der Ausblick auf diesen Garten in Kombination mit den extensiv begrünten Dachflächen des Bürobereichs eine entspannte Atmosphäre zum Lernen und Arbeiten.

Einen weiteren Baustein des grünen Konzepts stellt die multifunktionale und innovative Moosfassade dar. Sie windet sich als grünes Band um den Baukörper und verbindet den begrünten hinteren Hof mit dem dachintegrierten Gewächshaus. Die rundum begrünte Tragstruktur aus 3D gedrucktem und gesintertem Blähton ist mit Öffnungen verschiedener Größen versehen, die in einer Abwägung der teils widerstrebender Anforderungen hinsichtlich natürlicher Belichtung, Ausblick und eingehenden solaren Wärmegewinne auf der einen Seite sowie Sonnenschutz und Maximierung der Moos-Oberfläche andererseits parametrisch optimiert wurde. Dies stellt zum Stand der Technik eine Innovation dar, die von außen wie innen erlebbar wird und den Ausdruck sowie die Innovationskraft der Hochschule nach außen präsentiert. Die pflegetechnisch anspruchslosen Moose haben die Eigenschaft, Schall aus Kraft- und Bahnverkehr zu absorbieren und Schadstoffe zu binden. Auch Solarstrahlung wird absorbiert und verhindert eine starke Aufheizung der Fassade. Die Geometrie der Struktur reduziert im Sommer den solaren Eintrag, lässt aber bei flachstehender Sonne in der kalten Jahreszeit einen Großteilt der Sonnenenergie ins Gebäude. So trägt die Fassade auch einen Teil zur Verschattung bei. Der weitere Fassadenaufbau besteht aus sortenrein trennbaren Einzelkomponenten sowie einem Tragwerk aus Buchenholz.

Urban Gardening als Höhepunkt
Die wertvolle Dachfläche des Gebäudes sollte nicht ungenutzt bleiben. Das Gewächshaus als oberer Gebäudeabschluss ermöglicht Studenten und Interessierten, im kleinen Stil „urban gardening“ zu betreiben. Der gläserne Aufbau hat einen klimatisch puffernden Nebeneffekt und reduziert die Wärmetransmission über die oberste Geschossdecke. Die im Glas integrierten transparenten innovativen Gräzelzellen produzieren einen Teil des im Gebäude benötigten Stroms, lassen aber gleichzeitig den Lichtanteil passieren, der für das Pflanzenwachstum benötigt wird.
Paul Brückner
Abgabeleistungen:
- Architektonische Definition als Gebäudeentwurf M 1:100 mit städtebaulicher Einbindung M 1:500
- Materialkonzept mit Fokus auf nachhaltigen Materialeinsatz
- Detaildarstellungen der relevanten Fassadenbereiche M 1:10
- Tageslichtkonzept und Nachweis sommerlicher Wärmeschutz
- Energiekonzept mit Bevorzugung passiver Systeme und rechnerischen Nachweisen
- Technikkonzept



Ansprechpartner | |
Telefon: | +49 821 5586-2114 |
Ansprechpartner | |
Telefon: | +49 821 5586-3115 |
