Seitenpfad:

Raphael Schwanbeck: Innovationswerkstatt für nachhaltige Baustoffe Augsburg

Perspektiven einer Verbindung von Lehre, Forschung und Praxis-Transfer

 
Energieeffizientes Planen und Bauen – E2D

Projektbeschreibung

Bachelorarbeit Raphael Schwanbeck, WS 2020-21
Integraler Entwurf mit Schwerpunkt nachhaltiger Materialeinsatz, Lebenszyklus, Typologie
Betreuung: Prof. Dr. Joachim Müller, Prof. Susanne Runkel
Studiengang: Energieeffizientes Planen und Bauen – E2D

Auszeichnung: Sonderpreis i.H.v. 800 Euro im Rahmen des WBG-Preises 2021

Aus der Aufgabenstellung:

„Die Hochschule Augsburg möchte ihre Funktion als Innovationsmotor der Region in wichtigen Zukunftsthemen ausbauen und die Verbindung von Lehr- und Forschungsaktivitäten mit direkten Transfer zur Praxis stärken. Hierfür soll in Nachbarschaft zu den bestehenden Lehrgebäuden eine neue „INaB-A Innovationswerkstatt nachhaltiger Baustoffe – Augsburg“ entstehen.

Unterschiedliche Nutzungsbereiche sollen synergetisch ineinandergreifen. Kernelement der Nutzung ist ein Werkstattbereiche für innovative experimentelle Materialentwicklung und Produktionsprozesse im Themenbereich nachhaltiger Baustoffe. Dieser wird ergänzt durch einen Seminarbereich mit Büroflächen als Lernlandschaft und einem Gründerzentrum, wo Innovationen auf möglichst kurzem Weg den Weg in die Praxis gefördert werden. Der Veranstaltungsbereich „Forum“ mit Ausstellungsflächen bietet eine Plattform zum Austausch von Forschung und Praxis.

"INaB-A" soll sowohl den Nutzern als auch Gästen eine besondere Erlebnis-Qualität "des Gemeinsamen" und eine Teilhabe an aktuellen Forschungsthemen der Hochschule bieten. Die Synergie aus der Konzentration unterschiedlicher Nutzungen soll voll entfaltet werden. Hierzu ist eine besonders hohe Qualität der Erschließungsbereiche, der Blickbeziehungen sowie der informellen Kommunikationsflächen unumgänglich. Ebenso zentral ist auch die Wirkung in den Stadtraum hinein, bei der das Gebäude selbst eine exemplarische Vorbildfunktion für zukunftsfähiges Bauen einnimmt. Wie kann sich die Idee des synergetischen Miteinanders, die Idee einer zukunftsgerichteten Materialentwicklung auch im pädagogischen Sinn inspirierend nach außen präsentieren?"

 
Lage der Innovationswerkstatt entlang der Baumgartnerstraße (im Nordosten angrenzend) im Kontext der Hochschulgebäude
Lage der Innovationswerkstatt entlang der Baumgartnerstraße (im Nordosten angrenzend) im Kontext der Hochschulgebäude (alle Abb.: Raphael Schwanbeck)

Erläuterung des Entwurfs (Raphael Schwanbeck):

Ziele

Zielformulierung Architektur:
Als Erweiterung des Campus soll das Gebäude repräsentativ technologische Leistungen und Forschung im Bereich des nachhaltigen Bauens demonstrieren. Ökologische und innovative Baustoffe sollen die architektonische Erscheinung prägen und nach außen ein Bild des heutigen Stands der Technik im Bereich des energieeffizienten und ressourcenschonenden Bauens vermitteln. Dabei wird der gestalterische Wille dem Prinzip „form follows function“ untergeordnet. Eine Geometrie wird hierbei auf Basis von bauphysikalischen und statischen Anforderung generiert und das Nutzungsprogramm daraufhin integriert.

Klarheit in Konzept und Programm:
Ein immer rasanterer Wandel der Gesellschaft fordert zusätzlich eine hohe Flexibilität in der Funktion über einen Lebenszyklus. Grundlage ist eine offene Grundrissgestaltung mit programmatischer Freiheit, die auch zukünftige Umnutzungen erlauben.

Ökologie:
Übergeordnete Zielsetzung der Arbeit ist das der Klimaneutralität. Hierfür wird der Entwurf im Sinne einer Kreislaufwirtschaft über einen Nutzungszeitraum von 50 Jahren betrachtet. Besonderer Fokus wird auf einen hohen Vorfertigungsgrad der Konstruktion mit sortenreiner Materialität und die damit verbunden Demontierbarkeit, sowie einer Minimierung des anlagentechnischen Aufwands durch den Einsatz passiver Energiesysteme gesetzt. Insgesamt soll das Gebäude als Referenz mindestens Standard eines KfW EFH 55 Standard erfüllen. Durch eigenständige Stromerzeugung durch Photovoltaik und den Einsatz einer Lüftungsanlage mit Wärmerückgewinnung wird der EFH 40 Plus Standard angestrebt.

Städtebauliche Einbindung (Modell) mit Lage zwischen dem C-Gebäude der Hochschule (Fakultät Architektur und Bauwesen, links im Bild) und den Wohngebäuden entlang der Baumgärtnerstraße (rechts im Bild)
Städtebauliche Einbindung (Modell M 1:500) mit Lage zwischen dem C-Gebäude der Hochschule (Fakultät Architektur und Bauwesen, links im Bild) und den Wohngebäuden entlang der Baumgärtnerstraße (rechts im Bild)

Tragwerk

Das Gerüst der übergeordneten Gebäudehülle schafft ein Zweifeldträger aus Holz mit mittig angeordneter Stützenreihe im öffentlichen Bereich und BSH Firstbinder in der Werkhalle. Aussteifende Elemente sind die V-Stützen in der Vertikalen und einer flächigen Beplankung mit Dreischichtplatten nach statischen Anforderungen in der Horizontalen. Ein Gefälle von 3% wird in der Dachebene durch den abgebildeten Momentverlauf der auskragenden Primärträger hergestellt. Ergänzend befindet sich die sekundäre Struktur in gleicher Ebene. Durch ein Konstruktionsraster von 5m x 7,5m lässt sich ein Ausbauraster von 1,25m konsequent verfolgen.

Insgesamt entsteht auf 1350m2 und knappen 8m lichter Raumhöhe nahezu frei von Unterbrechungen nutzbare Fläche.

Ansicht Nord-Ost
Ansicht Nord-Ost
Längsschnitt
Längsschnitt
Modell-Ansicht von Norden entlang der Baumgärtnerstraße
Modell-Ansicht von Norden entlang der Baumgärtnerstraße
Holztragwerk
Holztragwerk
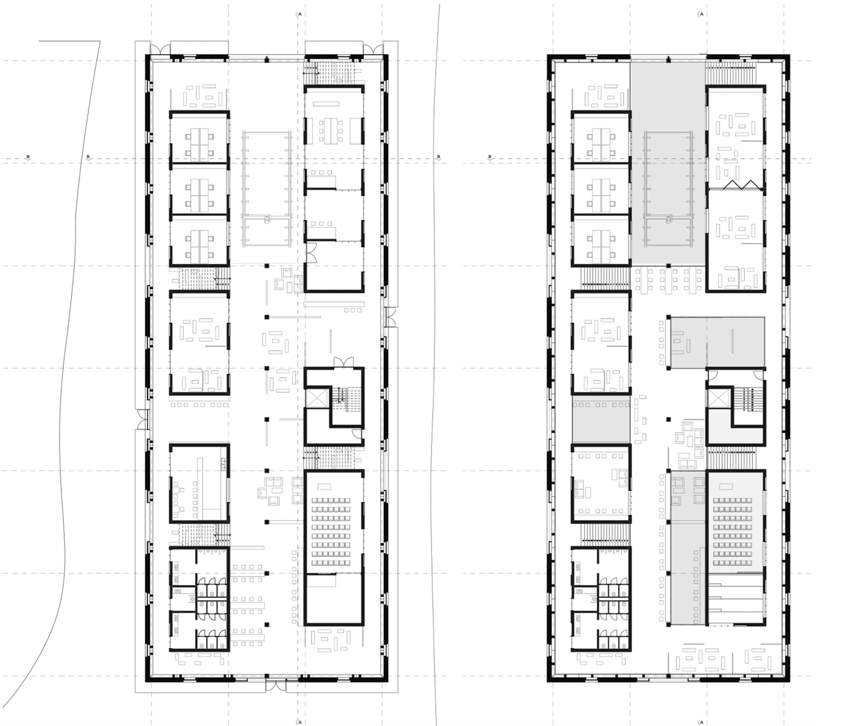
Grundriss EG (links) und OG (rechts)
Grundriss EG (links) und OG (rechts)
Modell: Dachaufsicht und Einblick bei abgenommenem Dach
Modell: Dachaufsicht und Einblick bei abgenommenem Dach

Materialität

Holz:
Das Ziel der Klimaneutralität setzt einen hohen Einsatz von Holzwerkstoffen voraus, da diese in den Herstellungsphasen (A1-A3) grundsätzlich eine Einsparung von CO2 ermöglichen. Hierbei spielt die Photosynthese eine entscheidende Rolle. Der Luft wird Kohlenstoffdioxid entnommen und mit Hilfe von Sonnenenergie in Form von Kohlenstoff im Holz gespeichert. Wieder abgegeben an die Umwelt wird das Produkt Sauerstoff. Grundsätzlich kann diese Einspeicherung solange aufrechterhalten werden, bis eine thermische Verwertung stattfindet.
Gerade in der Herstellungsphase erzielen Holzwerkstoffe große negative Umweltwirkungen. Bei der Betrachtung über einen längeren Zeitraum gewinnt vor allem die Bedeutung der Rezyklierbarkeit an Stellenwert.

Die Verbindung der einzelnen Lagen bei konventionellem Brettsperr- und Brettschichtholz wird i. d. R. über Leim hergestellt. Probleme entstehen hierbei während der Nutzungsphase durch das Aus-treten von flüchtigen organischen Verbindungen (VOC), wie beispielsweise Formaldehyd, so- wie der Entsorgung- bzw. Wiederverwertung des Materials. Grundsätzlich sind mechanische Verbindungen vorzuziehen, da diese beim Rückbau entfernt werden können, ohne das Bauteil zu beschädigen.

Lehm:
Neben Holz soll das Erscheinungsbild des Gebäudes durch Lehm dominiert werden. Dieser zählt zu einem der ältesten bekannten Baustoffe, scheint jedoch in der Architektur in Vergessenheit geraten zu sein. Durch Personen wie Martin Rauch erlebt der Lehmbau derzeit seine Renaissance. Beispielprojekte demonstrieren den richtigen Einsatz des Materials, bei dem es Grundsätze zu beachten gilt. Elementar sind „die guten Stiefel“ und „der gute Hut“ des Lehmbaus.

ETFE:
Die als Oberlicht eingesetzten, pneumatisch stabilisierten ETFE Folienkissen befinden sich 1,5 Meter über dem Dachniveau und werden von Elementen mit großzügig integrierten Lüftungsöffnungen gestützt. Ihre Form unterstützt dabei das Abführen der aufsteigenden Luft. Durch das Abreißen der Außenluftströmung nach dem Kissen entstehen Verwirbelungen und Unterdruck. Diese können den Effekt zusätzlich unterstützen.

Modell: Ansicht Süd-Ost
Modell: Ansicht Süd-Ost

Fertigung

Eine klare Struktur bietet nicht nur Übersichtlichkeit über die einzelnen Nutzungen, sondern ermöglicht einen hohen Grad an Vorkonfektionierung. Hierbei kommt die Verkürzung der Zeit auf der Baustelle Kosten und Anwohnenden zugute. Zusätzlich kann bei witterungsgeschützten und maschinengestützten Arbeiten in der Werkhalle eine höhere Präzision vorausgesetzt werden.

Sortenreines Brettsperrholz:
Das Erscheinungsbild des Innenraums wird auch neben der Tragstruktur von Holz als Sichtoberflächen geprägt. Einen Ansatz für eine sortenreine Verbindung von Brettsperrholz entwickelte die Firma Thoma. Dabei wird ein Zusammenhalt der einzelnen Lagen durch Buchendübel erreicht. Die bei der Herstellung trocken eingebrachten Verbindungen quellen bei steigendem Feuchtigkeitsgehalt und fixieren die Bretter schubfest.

Eine weitere Besonderheit findet sich in dem strukturellen Aufbau des Bauteils. Eingefräste Rillen zwischen den einzelnen Lagen genieren Lufteinschlüsse, die zur Verschlechterung der Wärmeleitfähigkeit beitragen (λ = 0,079 - 0,12 W/(m*K) (Thoma, 2017). Im Vergleich zur konventionellen Massivholzbauweise (λ = 0,13 W/(m*K)) bedeutet dies gerade im Bereich der Außenwände (H100-W30, λ = 0,079 W/(m*K)) eine erhebliche Verbesserung der Wärmedämmeigenschaften. Deckenelemente weisen aufgrund von statischen Anforderungen bessere Wärmeleitfähigkeiten auf. Mit einer maximalen Spannweite von 5 Metern bei einer Höhe von 212 Millimetern lassen sich die geplanten Module gut realisieren.

Detail Fassade (Schnitt, Ansicht, Grundriss) und Übersicht Treibhauspotential nach Bauteilen
Detail Fassade (Schnitt, Ansicht, Grundriss) und Übersicht Treibhauspotential (Global Warming Potential GWP) nach Bauteilen

Ökobilanz

Unter dem Punkt der Material- und Ressourceneffizienz ist die Berücksichtigung der Umweltwirkung der Konstruktion unverzichtbar. Bislang werden Gebäude in ihrer Ökologie vor allem über den Energieverbrauch bzw. Primärenergiebedarf bewertet. Dieser konnte sich über die letzten Jahrzehnte durch eine starke Verringerung von Wärmeverlusten durch Dämmstandards und effizienterer Anlagentechnik minimieren lassen. Dadurch gewinnt die relative Bedeutung von grauer Energie, welche sich in der Konstruktion des Gebäudes verbirgt zunehmend an Stellenwert.

GWP Global Warming Potential:
Um möglichst geringe Umweltwirkungen zu erzielen, ist eine frühzeitige Betrachtung der Gebäude-Konstruktion und Anlagentechnik im Planungsprozess notwendig. Dadurch können nähere Aussagen über die Ökologie des geplanten Objekts getroffen und gegebenenfalls Änderungen in den ersten Leistungsphasen vorgenommen werden. Im Berichtsteil zur Arbeit wird zur Einschätzung des Treibhauspotentials der GWP als CO2 Äquivalent betrachtet.

Lüftung:

Natürliche Lüftung:
Um eine Minimierung des Energieverbrauchs bei lufttechnischen Anlagen zu erzielen wird in den wärmeren Monaten auf eine freie Lüftung gesetzt. Diese erfolgt über Druckdifferenzen durch Thermik. Interne Wärmequellen wie bspw. Maschinen und Menschen, so wie solare Einstrahlung geben Wärmeenergie in den Innenraum ab. Dabei steigt die leichtere, erwärmte und verbrauchte Luft nach oben auf und wird an konstruktiven Hochpunkten abgeführt. Ein entstehender Unterdruck führt zum Einströmen von frischer Außenluft über die großflächige Fassade.

Mechanische Lüftung:
Eine Positionierung der Lüftungsanlage mit Wärmerückgewinnung ist auf der Dachfläche vorgesehen. Die Module werden über ihre Abschlussflächen im OG angeschlossen und führen die Flachkanäle auch in die untere Ebene.
Die Hallenlüftung erfolgt durch Verdrängungslüftung in einem zweiten Gerät. Hierbei wird die Luft im EG eingebracht und unterhalb der Decke abgeführt.

Lüftung natürlich (links) und mechanisch (rechts)
Lüftung natürlich (links) und mechanisch (rechts)

Wärme-/ Kälteversorgung

Um die Umweltwärme optimal nutzen zu können erfolgt die Versorgung mit Wärme bzw. Kälte über vier, südwestlich vor dem Gebäude positionieren, Wärmepumpen. Aufgrund des geringen Platzbedarfs gegenüber anderen Wärmepumpen wie bspw. Erdkörben kommen elektrisch betriebene Wärmesonden (Sole/ Wasser) mit einer Tiefe von ca. 70m zum Einsatz. Der Strombedarf hierfür kann größtenteils über die eigene Erzeugung durch Photovoltaik gedeckt werden. Gerade in den Sommermonaten kann die Energie durch Überschüsse bereitgestellt werden und gilt als passiv.

Wärme- und Kälteversorgung
Wärme- und Kälteversorgung

Die ausführlichen Bewertungen zur Energiebilanzierung, Ökobilanzierung sowie den Nachhaltigkeitskriterien hinsichtlich Mikrostandort, Verkehrsanbindung, Nähe zu nutzungsrelevanten Einrichtungen sowie zur soziokulturelle und funktionale Qualität nach BNK wurden in einem umfangreichen Berichtsheft erläutert.

Auszug aus der Sonneneintrags-Simulation auf das Gebäude unter Berücksichtigung der baulichen und natürlichen Verschattung (oben) bzw. unter Berücksichtigung der baulichen Verschattung (unten) in den Monaten Mai bis September
Auszug aus der Sonneneintrags-Simulation auf das Gebäude unter Berücksichtigung der baulichen und natürlichen Verschattung (oben) bzw. unter Berücksichtigung der baulichen Verschattung (unten) in den Monaten Mai bis September
 

Abgabeleistungen

  • Lageplan (M 1: 500), Grundrisse, Ansichten, Schnitte (M 1: 100)
  • Materialkonzept incl. Detaildarstellungen M 1:10 der Fassade. Ein besonderer Fokus liegt auf einem nachhaltigen Materialeinsatz incl. der Demontage- und Recycling-Fähigkeit
  • Energie- und Ökobilanzierung:
    _ Konzeptphase: Drei strategische Varianten mit qualitativer Beschreibung der Konzeption, Konstruktion und Technik sowie Kenndaten (U-Werte, Ökodaten, erneuerbare Energien …)
    _ Entwurfsphase Energiebilanzierung: mit Auswertung End- und Primärenergiebedarf Ist und Referenz, Einsatz erneuerbare Energien sowie passive Maßnahmen
    _ Entwurfsphase Ökobilanzierung (eLCA): mit Randbedingungen der Zertifizierung DGNB und mit folgender Auswertung (Zahlenwerte und grafisch): 
    - GWP Global Warming Potential (in kg CO2äquivalent pro m2NGF) Gesamt sowie differenziert nach Konstruktion und Nutzung
    - GWP Global Warming Potential (in kg CO2äquivalent pro m2NGF) der Konstruktion: Differenziert nach AW, DE+TR, DA, BP, FE, IW und TGA und differenziert nach den jeweiligen Modulen A bis D
  • Standort iund soziale Nachhaltigkeitskriterien:
    Individuelle Bewertung des Standortes gem. SITE 1.1, 1.3 und 1.4, Nachweis des sommerlichen Wärmeschutzes, Nachweis der Tageslichtversorgung, barrierearmer Zugang und Nutzungsmöglichkeiten.
  • Modelle M 1:500 / 1:100

Die Abgabeleistungen insbes. der Energie- und Ökobilanzierung sind in einem gesonderten umfangreichen Berichtsheft nachgewiesen.

 
 

Verwandte Projekte