Sanierung der Fassade der evangelischen Diakonissenanstalt

Projektbeschreibung
Im Zuge des Viertsemester-Projekts der Bauingenieurstudenten im Sommersemester 2019 sollte das Mutterhaus von zwei Projektgruppen anhand moderner Aufnahmemethoden vermessen werden, um eine geeignete Planungsgrundlage für eine grundlegende Sanierung bereit zu stellen.
Gruppe I erhielt den Auftrag, die Nordostfassade mittels Laserscanning einzumessen, die Fassade planerisch darzustellen und Schäden zu kartieren. Gruppe II wurde damit beauftragt, den Kopfbau mit den Fassadenseiten West, Nord und Ost über die Auswertung photogrammetrischer Luftbilder nach einer Drohnenbefliegung einzumessen.
Beteiligte Personen
Prof. Dr.-Ing. Reinhold Weber (Betreuung)
Projektleiter Annika Braun und Alexander Weng (Autor)
Projektgruppenmitglieder (siehe Abb. 9)
Jörn Schattschneider (Architekturbüro Endres und Tiefenbacher)
Allgemeines zum DIAKO
Das Mutterhaus der evangelischen diakonischen Anstalt in Augsburg (DIAKO) ist ein im 19. Jh. erbautes Backsteingebäude mit einer aufwendig verzierten neogotischen Fassade (siehe Abb. 1).

Es diente lange Zeit als Krankenhaus, Lazarett und Wohngebäude für die Diakonissenschwestern und ist auch heute noch Teil der Stadtklinik im Herzen Augsburgs (siehe Abb. 2).

Die Klinkerfassade des denkmalgeschützten Gebäudes hat über die Jahre hinweg sichtlich unter der Witterung gelitten, was vor allem an den Westmauern auffällt, und muss saniert werden.
Polygonierung
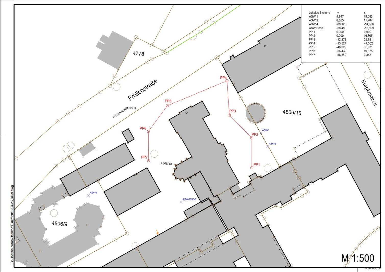
Zur Ermittlung der Orientierung des Gebäudes nach der digitalen Datenerhebung wurde zunächst von beiden Gruppen ein offener Polygonzug um das Gebäude angelegt, gemessen und berechnet (siehe Abb. 3).

Laserscanning (Gruppe I)
Das Laserscanning stellt eine Automatisierung der tachymetrischen
Vermessung dar. Von insgesamt fünf Scannerstandorten aus wurden Fassadenbereiche des Mutterhauses mehrfach abgescannt, und dabei 25 Millionen Punkte auf den Außenmauern sowie weitere 125 Millionen Punkte auf dem Diako-Gelände für die Berechnung eines 3D-Modells aufgenommen (siehe Abb. 4).

Luftbildphotogrammetrie (Gruppe II)
Bei der Luftbild-Photogrammetrie werden Fotos mit einer drohnengetragenen Mess-Kamera aufgenommen. Die Fassaden des Diakonissenhauses sowie das Dach wurden mit dem Octocopter HT-8 des Vermessungslabors der Fakultät für Architektur und Bauwesen abgeflogen und vielfach fotografiert (siehe Abb. 5).

Anschließend wurden die photogrammetrischen Aufnahmen (ca. 300 Fotos) am Computer per Einzelbildauswertung sortiert, entzerrt und zu einem Gesamtbild der Fassade zusammengesetzt. Der Computer schließlich errechnet aus den Bildverbänden ein 3D-Modell, welches das Gebäude realitätsnah abbildet (siehe Abb. 6).

Mit sogenannten 'Orthofotos' können nunmehr zentimetergenaue CAD-Planzeichnungen erstellt werden (siehe Abb. 7).

Auswertung, Dokumentation und Kostenermittlung
Die an den untersuchten Fassadenabschnitten aus hochauflösenden Fotos und Beobachtungen mit Fernglas und Teleobjektiv erkannten Schäden konnten jetzt in einem Schadenskatalog dokumentiert werden.
Auf den CAD-Plänen wurden beschädigte Steine, Frostrisse, Setzungen der Fensterstürze und fehlende Ausfugungen mit unterschiedlichen Farben zur schnelleren Erkennbarkeit eingezeichnet und daraufhin eine überschlägige Kostenermittlung für die Sanierung durchgeführt (siehe Abb. 8).

Präsentation der Ergebnisse
Bei der Präsentation der Ergebnisse der Projektarbeit im DIAKO vor den Vertreterinnen der Schwesternschaft, dem Vorstand und dem Architekturbüro Endres und Tiefenbacher dankten die Projektgruppen Herrn Rektor Götz, Frau Oberin Ludwig, dem Kaufmännischen Vorstand Herrn Boldt sowie den Architekten Herrn Tiefenbacher und Herrn Schattschneider für die unkomplizierte und professionelle Unterstützung der Arbeiten vor Ort.

Gruppe 1:
- Liepert Robin
- Ronecker Patrick
- Lang Bibiana
- Heier Matthias
- Kunz Tim
- Xenos Florian
- Weng Alexander
Gruppe 2:
- Braun Annika
- Brunnett Joris
- Schwab Samuel
- Zimmermann Luca
- Wagner Franziska
- Kraus Nikolai
- Hunger Lukas
