- Architektur und Bauwesen
- Projekte
- E2D
- Sustainability Valley – HSA Gründerzentrum Nachhaltigkeit in Augsburg
Sustainability Valley – HSA Gründerzentrum Nachhaltigkeit in Augsburg
E2D-Studierende planen Start-Up Gründerzentrum „work and meet“ für die Hochschule Augsburg

Studiengang
Energieeffizientes Planen und Bauen – E2D (B.Eng.)Projektbeschreibung
Im zweiten Studienjahr „Energieeffizientes Planen und Bauen - E2D“ kommt alles zusammen. Was in den ersten beiden Semestern noch in kleinen Schritten anhand von seminaristischem Unterricht und begleitenden Übungsfächern vorbereitet wird, mündet nun in integralen Entwurfsprojekten, die eine Vielzahl unterschiedlicher Themen in großer Komplexität zusammenführen.
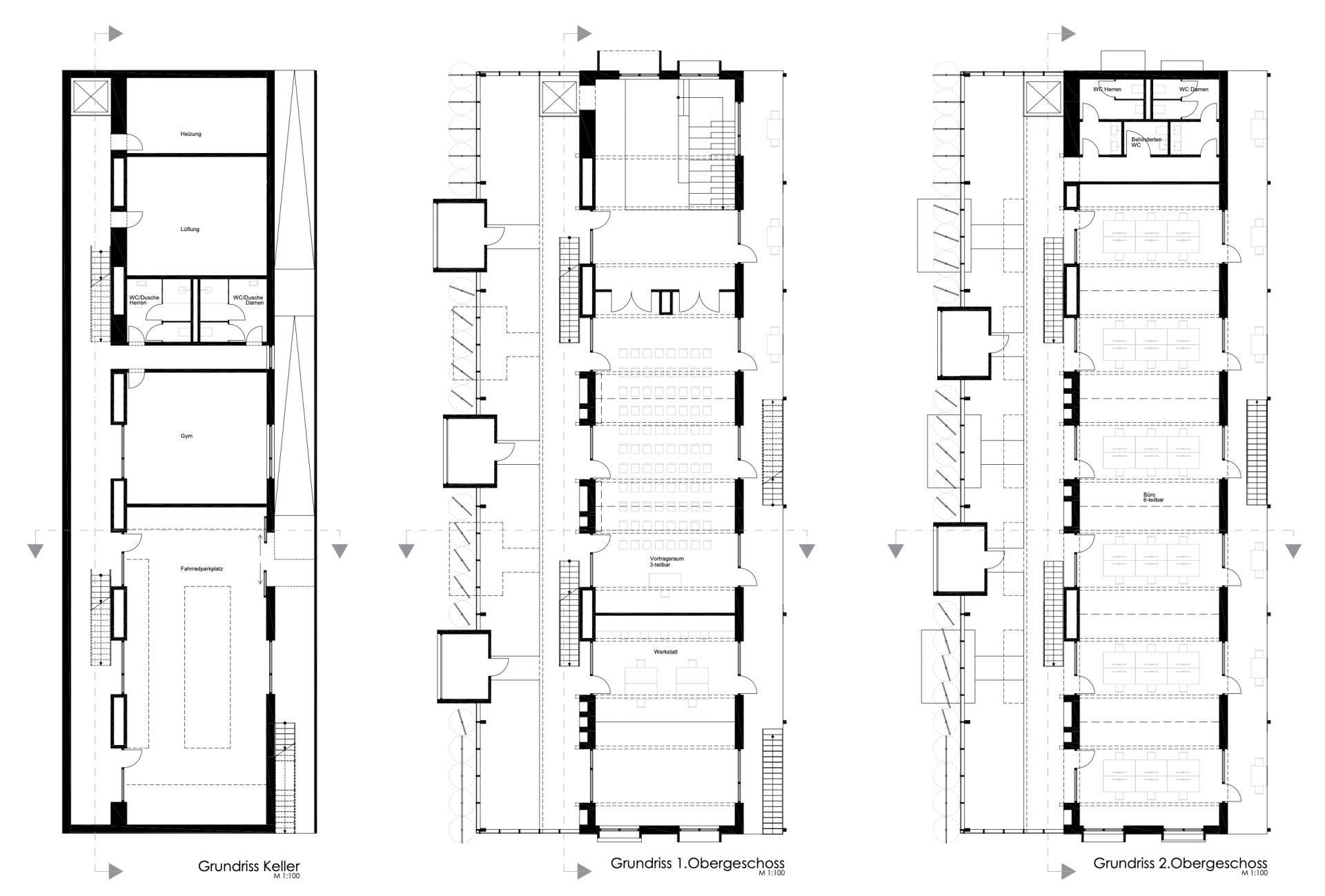
Kernbaustein ist dabei der architektonische Entwurf, in diesem Fall im Bereich eines Nicht-Wohngsgebäudes, einschließlich der Einbindung in den städtebaulichen Kontext, der Berücksichtigung der besonderen Gebäudetypologie sowie funktionaler und nutzerbezogener Ansprüche.
Das Besondere: Technische, energetische, ressouceneffiziente und ökologische Aspekte werden direkt in den frühen Entwurfsphasen mit begleitenden Quantifizierungen direkt in den Entwurfsprozess immer wieder rückgekoppelt – im Sinne eines kybernetischen Kreislaufs. Materialeinsatz und Konstruktion werden auf den gesamten Lebenszyklus hin gewählt einschließlich einer späteren Trennbarkeit und ggf. Wiederverwendbarkeit der Elemente. Das verändert den Entwurf und führt zu Lösungen, die im klassischen linaren „Nacheinander“ von Entwerfen, Bauphysik und Gebäudtechnik nicht möglich sind. Durch die komplexe nicht-lineare Entwurfsmethodik können so bereits in den frühen Phasen der Planung wesentliche Weichen für die Nachhaltigkeit gestellt werden, die später nicht mehr zu korrigieren wären.
Es entsteht ein kreisförmiger Optimierungsprozess hinsichtlich Suffizienz, Effizienz und Konsistenz mit dem Ziel einer Minimierung des Technikeinsatzes, der Maximierung passiver Strategien und der Planung einfacher und robuster Konzepte, um den Menschen und seine Bedürfnisse in den Mittelpunkt zu stellen.
Aufgabe:
Die Entwurfsaufgabe dieses Sommersemesters: Die Planung eines Zentrums für Start-Up-Unternehmen in direktem Anschluss an die Hochschule Augsburg. Absolvent:innen und Jungunternehmer:innen sollen hier einen Ort für die Entwicklung und Realisierung innovativer, nachhaltiger Ideen verschiedener Branchen erhalten. Der Ort soll Nährboden für Kreativität, für ein Experimentieren und Ausprobieren sein sowie den Austausch mit Studierenden, Wirtschaftsunternehmen, der Stadt und allen Interessierten fördern. Gleichzeitig soll das Gebäude selbst Vorbild und Inspiration werden als Zeichen nachhaltigen Bauens und die Innovationskraft der Hochschule nach außen darstellen.
Das Programm umfasst Büroflächen incl. Räume für Besprechung, Videokonferenzen, Konzentration, Ausstellung mit hoher Flexibilität/ Zuschaltbarkeit/ Erweiterbarkeit, Experimentierwerkstätten/ Ateliers, Bereiche für sportliche Aktivitäten, ein Cafe/ Restaurant incl. Nebenräume und Außengastronomie sowie die erforderlichen Sanitärflächen, Technik- und Lagerräume.
Entwurf: Tom Schlaich und Roman Schuster
Leistungen zur Abgabe:
- Architektonischer Entwurf incl. städtebaulicher Einbindung auf Grundlage einer Standortanalyse sowie Analysen und Umsetzung zur Entwicklung einer eigenen Interpretation der Nutzungstypologie mit Darstellungen und Modell im Maßstab 1:100.
- Dies in kybernetischer Rückkoppelung mit:
- Primärkonstruktion: Entwicklung eines schlüssigen materialgerechten Tragwerk-Konzeptes
- Gebäudehülle und Anschlüsse: Entwicklung eines plausiblen Gebäudehüllen- und Konstruktionskonzeptes inklusive einer Materialwahl, bei der Innovationen und ein Kreislaufwirtschaften (circular economy) ausdrücklich erwünscht sind. Fassadenschnitt mit Grundrissausschnitt und Fassadenausschnitt in M 1:20 mit umfänglicher Beschriftung sämtlicher integraler Aspekte.
- Räumliche Darstellung zur Qualität des Innenraums
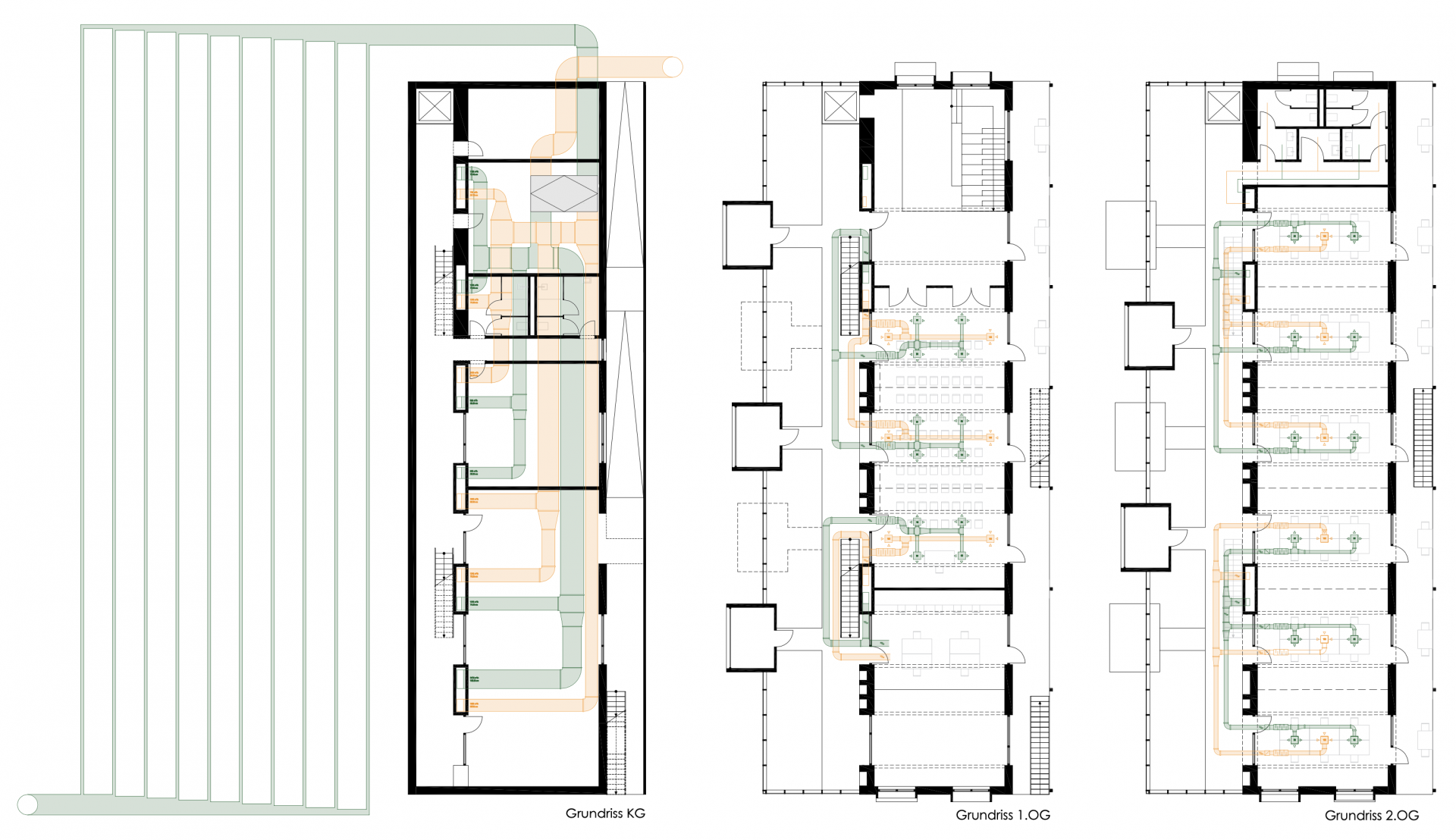
- Tageslicht und sommerlicher Wärmeschutz: Entwicklung eines plausiblen Konzeptes zur Tageslichtversorgung und des sommerlichen Wärmeschutzes sowie Berechnung und Nachweis des sommerlichen Wärmeschutzes gem. DIN 4108-2 für einen Aufenthaltsraum.
- Energie-/Technikkonzept und Bilanz: Entwicklung eines plausiblen Energie- und Technikkonzeptes (mind. KfW-Standard 55) sowie Durchführung der normativen Energiebilanzierung für Nichtwohngebäude einschließlich Optimierungszyklen. Darüber hinaus ist die Lüftung für einen Veranstaltungsraum sowie für ein Büros zu planen. Bauteilaufbauten mit U-Wert und Tauwassernachweis, Darstellung der Zonierung gem. DIN V 18599. Softwaregestützte Energiebilanzierung Nichtwohngebäude. Bilanzierung je Zone für: Heizung, Warmwasser, Beleuchtung, Lüftung – jeweils End- und Primärenergiebedarf sowie CO2-Emissionen. Separate Ausweisung des PV-Stroms und dessen Deckungsanteil am Bedarf. Ausweisung und Darstellung der CO2- Emissionen des Gebäudebetriebs pro m2 und gesamt pro Jahr, sowie mit und ohne PV-Strom. Lüftungsplanung Veranstaltungsraum und ein Büro.
Betreuung:
Entwurf: Prof. Susanne Runkel (Modulleitung), Prof. Dr. Joachim Müller, Prof. Dipl. Des. Martin Endhardt
Bauphysik: Prof. Dr. Dirk Jacob
Gebäudetechnik: Prof. Dr. Wolfgang Nowak
Ansprechpartnerin
Telefon: | +49 821 5586-3177 |






















