Tom Meyer: AUF.BRUCH
Bachelorarbeit zur multifunktionalen Umnutzung des Ernst Reuter Parkhauses als Impuls für das gesamte Quartier.

Projektbeschreibung
Bachelorarbeit WS 2024-25 von Tom Meyer
Integraler Entwurf mit Schwerpunkt Bauen im Bestand, klima- und ressourcengerechte Sanierung und Erweiterung.
Betreuung: Prof. Dr. Joachim Müller, Prof. Dr. Dirk Jacob
Studiengang: Energieeffizientes Planen und Bauen – E2D
Die Arbeit wurde mit dem mit 1000 Euro dotierten WBG-Preis 2025 ausgezeichnet.
(> mehr Info zum WBG-Preis 2025)
Aus der Aufgabenstellung:
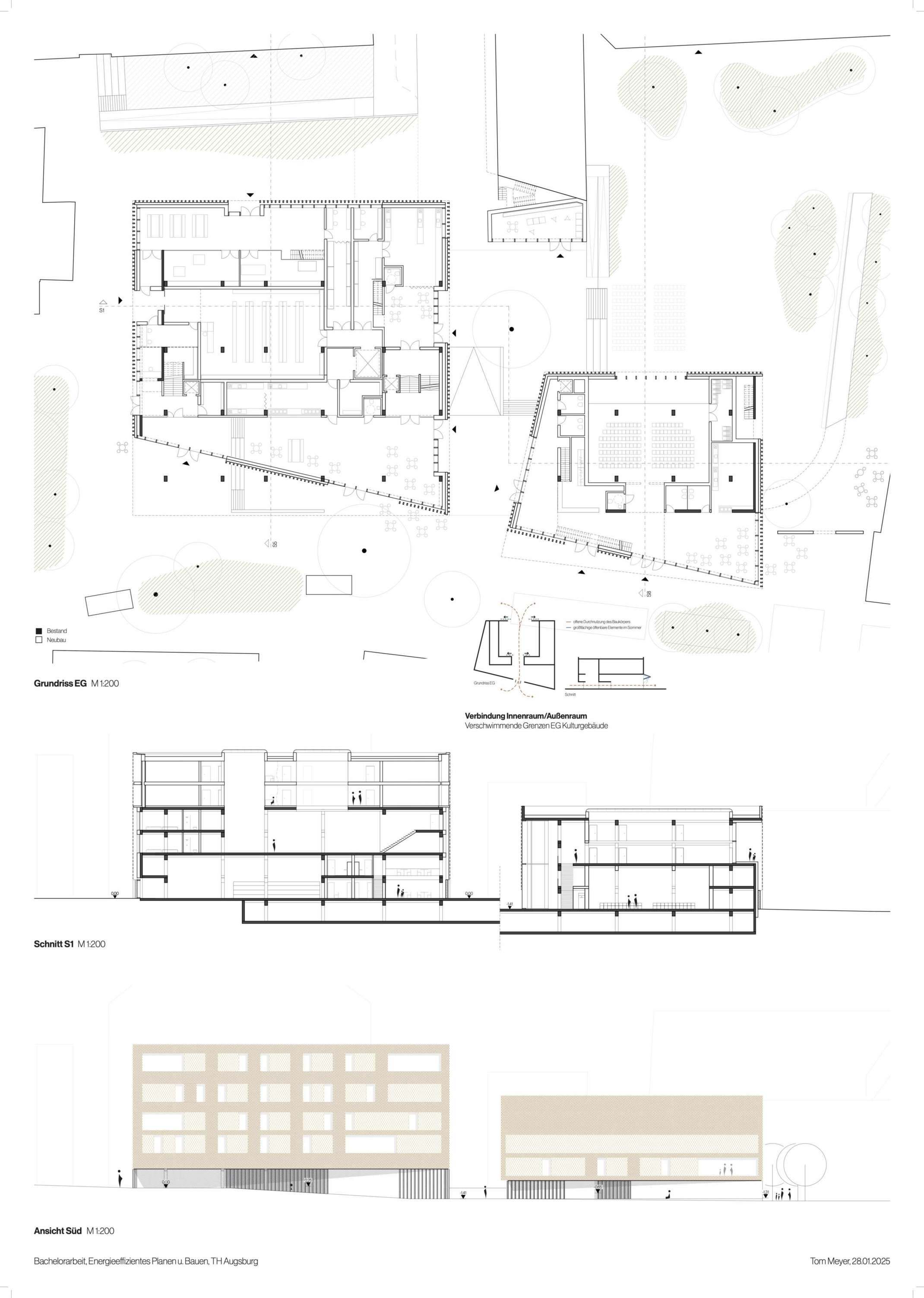
Das „Ernst Reuter Parkhaus“ liegt in zentraler Lage der Augsburger Innenstadt. Direkt südlich grenzt der Stadtmarkt an, im Norden befinden sich kulturelle Einrichtungen wie die Stadtbücherei, das Leopold Mozart College of Music, etwas weiter das Staatstheater und die Staatsbibliothek. Fußläufig erreichbar ist die Fußgängerzone der Annastraße, der Rathausplatz oder der zentrale Verkehrsknoten am Königsplatz.
Vor diesem Hintergrund scheint dieser Ort prädestiniert, zentrale Funktionen für die Stadtgesellschaft zu übernehmen, statt Parkplätze für Automobile bereitzustellen. Die Vision: Das Parkhaus verliert vollständig seine Bedeutung als Abstellort für PKW. Welche Chancen würden sich hieraus ergeben? Wie sieht eine zukünftige Entwicklung aus, die den Bestand und die hierin gespeicherte graue Energie mit einbezieht?
Bestandsanalyse und Konzeptfindung
Entwurf: Tom Meyer
Berichts- und Berechnungsteil
In einem umfangreichen Berichtsheft als Anlage wurden die Themen Bauteilkatalog, Anlagentechnik, Tragwerkskonzept, Energiebilanzierung, Ökobilanzierung etc. nachgewiesen. Diese Inhalte des integralen Entwerfens bilden einen zentralen Teil der Arbeit und wurden iterativ im Entwurf berücksichtigt.
Ansprechpartner | |
Telefon: | +49 821 5586-2114 |
Ansprechpartner | |
Telefon: | +49 821 5586-3611 |
- Studiengang: Energieeffizientes Planen und Bauen - E2D
- Das Projekt ist Teil der 20. E2D Werkschau 2025












