Seitenpfad:

Anja Epple: DESIGN_UP - Schloss Blumenthal

Integrale Sanierung und Umnutzung eines Ökonomiegebäudes im Ensembleschutz

 
Energieeffizientes Planen und Bauen – E2D

Projektbeschreibung

Bachelorarbeit Anja Epple, WS 2020-21
Integraler Entwurf mit Schwerpunkt Bauen im Bestand, Bauphysik, Gebäudetechnik
Betreuung: Prof. Dr. Martin Bauer, Prof. Dr. Dirk Jacob, Prof. Michael Schmidt
Studiengang: Energieeffizientes Planen und Bauen – E2D

Aus der Aufgabenstellung:

„Das Schloss Blumenthal liegt nördlich von Augsburg. Es war ursprünglich ein vierflügeliges Wasserschloss und wurde 1296 erstmals urkundlich erwähnt. Über mehrere Jahrhunderte wurde es durch den Deutschen Orden genutzt. Ab 1806 war das Schloss im Besitz der Fuggerschen Stiftungsverwaltung. Im Jahr 2007 übernahmen acht Familien das Anwesen und gründeten die Schloss Blumenthal GmbH & Co KG. Mittlerweile ist die Gemeinschaft inklusive Kinder auf 61 Personen angewachsen. Neben einem Hotel, einem Seminarbetrieb und einem Gasthaus betreibt die GmbH eine Solidarische Landwirtschaft. Die gesamte Schlossanlage ist öffentlich zugänglich. Die Betreiber versuchen, in enger Abstimmung mit dem Denkmalschutz Umbauten und Renovierungen möglichst wenig invasiv durchzuführen. Wichtig ist die Erhaltung des Ensembles.

Für das Schloss Blumenthal bei Aichach in der Nähe von Augsburg besteht Denkmalschutz (Ensembleschutz). Eingriffe in die Bausubstanz sollen sich bei ggf. nötigen Umbauten an den vorhandenen Konturen orientieren. Das zu beplanende Gebäude schließt den Innenhof der Gesamtanlage nach Süden ab. Ohne die Kubatur des Gebäudes grundlegend zu verändern, soll das gesamte Obergeschoss ertüchtigt werden, um dann einer flexiblen Nutzung zur Verfügung zu stehen.

Der Planungsbereich umfasst den gesamten Raum unter dem Satteldach und darf - soweit nötig - vollständig entkernt werden. Die Erschließung und die Treppenhäuser könnten bei Bedarf versetzt und/oder neu geplant werden. Entsprechende Fluchtweglängen sind einzuhalten. Die Nutzfläche von ca. 1.000 m2 wird bisher als Lagerfläche genutzt. Der Bauherr wünscht sich eine flexible Nutzung zu jeweils einem Drittel durch:
- Hotelzimmer / Apartments / Wohnen
- Veranstaltungsfläche / Multifunktionsfläche
- Büroräume

Benötigte haustechnischen Anlagen können im EG oder im Dachbereich angeordnet werden. Das Gebäude ist an eine bestehende Ringleitung angeschlossen, welche Blumenthal mit Heizenergie versorgt. Das Dach soll in der jetzigen Form erhalten bleiben. Südseitig sollen möglichst große Flächen des Daches für eine photovoltaische Stromerzeugung und soweit nötig für Solarthermie genutzt werden. Die planerische und gestalterische Integration aller haustechnischen Anlagen, sowie die sinnvolle Verortung der benötigten Anlagen ist Bestandteil der Aufgabe. Alle öffentlichen Räume müssen barrierefrei erreichbar sein.“

 

Erläuterung des Entwurfs (Anja Epple):

Entwurfsgedanke

Da die bestehende Stahldachkonstruktion keine zusätzlichen Lasten aushält, wird sie zum Großteil abgetragen, damit der Dachraum umfassend erneuert werden kann. Dieser lässt sich nun in drei Hauptnutzungen unterteilen. Jeder Nutzung ist ein Hauptmaterial zugeordnet, die Materialien sind so ausgewählt, dass sie recycelt werden können und möglichst wenig graue Energie enthalten. Büro: Lehm _ Veranstaltung: Stahl, Bestand _ Hotel/Wohnen: Vollholz

 

Lageplan mit Grundriss Erdgeschoss – Der südwestlich vorgelagerte Platz bleibt nun als freie Fläche flexibel bespielbar
Lageplan mit Grundriss Erdgeschoss – Der südwestlich vorgelagerte Platz bleibt nun als freie Fläche flexibel bespielbar
Umgebungsmodell M 1:500, genordet
Umgebungsmodell M 1:500, genordet
Kreislaufprodukte Holz und Lehm
Kreislaufprodukte Holz und Lehm

Der Grundriss ermöglicht gemeinsames Arbeiten im Büro, Erleben von Kultur im Bereich der Veranstaltung und Zusammenkommen auf den sogenannten Marktplätzen im Hotel- und Wohnbereich. Der Dachraum soll eine Begegnung der verschiedenen Menschen, die sich dort aufhalten werden, ermöglichen.

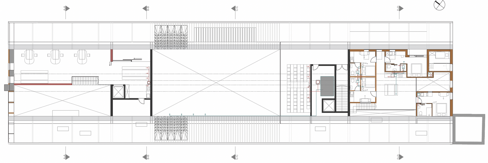
Grundriss 2. Obergeschoss
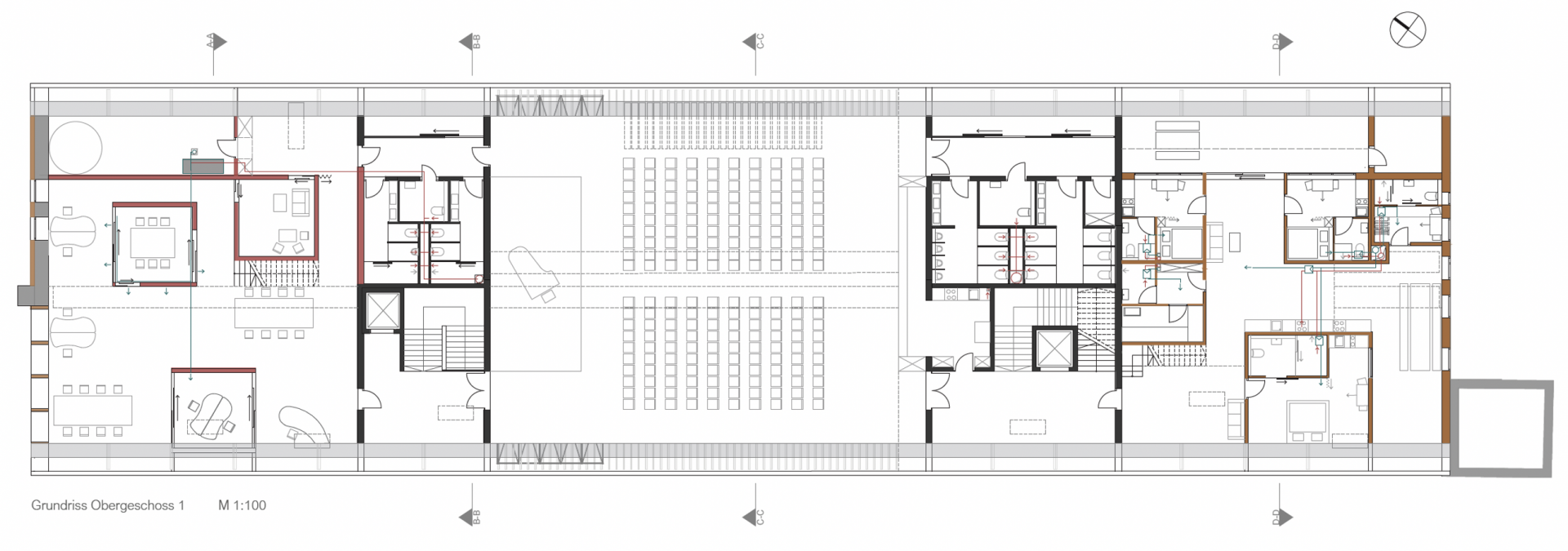
Grundriss 1. Obergeschoss
Grundrisse 2. OG (oben) und 1. OG (unten)
Grundrisse 2. OG (oben) und 1. OG (unten)

Lüftungskonzept

Jede Hauptnutzungszone erhält eine separate Lüftungsanlage mit Wärmetauscher mit automatisch geregelter Anpassung der Wärmerückgewinnung. Im Sommer und in der Übergangszeit kann der Luftaustausch durch natürliche Lüftung stattfinden. Dies ist in den Schnitten mit Frischluft in grün und Fortluft in rot dargestellt.
Nennluftmenge Büro: 1.200 m³/h
Nennluftmenge Veranstaltung: 5.000 m³/h + Fensterlüftung
Nennluftmenge Wohnen/Hotel: 1.300 m³/h

Schnitt A-A Büro und Schnitt B-B Treppe mit Darstellung der Natürlichen Lüftung
Schnitt A-A Büro (links) und Schnitt B-B Treppe (rechts) mit Darstellung der Natürlichen Lüftung
Innenraum Büro – Lehm
Perspektive Innenraum Büro – Lehm als prägendes Material
Perspektive Innenraum Veranstaltung - Bestehende Stahlkonstruktion als prägendes Element
Perspektive Innenraum Veranstaltung - Bestehende Stahlkonstruktion als prägendes Element
Perspektive Innenraum Hotel/Wohnen – Vollholz als prägendes Material
Perspektive Innenraum Hotel/Wohnen – Vollholz als prägendes Material
Detailschnitt M 1:10 durch den Veranstaltungsbereich
Detailschnitt M 1:10 durch den Veranstaltungsbereich
Energiekonzept
Energiekonzept

Durch die behutsame Integration von Technik im Bestand wird ein möglichst hoher Deckungsgrad an erneuerbaren Energien für Heizung, Warmwasser, Beleuchtung und Lüftung erreicht und dennoch bleibt der Charakter des Ökonomiegebäudes erhalten. Das bestehende – mit Gas betriebene – BHKW wird abgebaut. Die Bestandspumpen sollten geprüft und gegebenenfalls die Pumpentechnik optimiert werden, um den Stromverbrauch zu minimieren. Die restlichen Bestandteile der bestehenden Heizungsanlage bleiben erhalten und werden mit folgenden Komponenten erweitert: Photovoltaik, Solarthermie, Pufferspeicher, Wasserstoffspeicherung

Der jährliche Regenwasserertrag der großen Dachfläche beträgt 1.000.000 Liter. Dieses Wasser kann für die Sanitäranlagen, Wäsche oder zur Gartenbewässerung genutzt werden.

Zusammenfassung der bauphysikalischen Berechnungen
Zusammenfassung der bauphysikalischen Berechnungen

Dadurch, dass die bestehende Tragkonstruktion keine zusätzlichen Lasten aushält, wurde in den betreffenden Teilbereichen ein neues Tragwerk entworfen, welches genügend Wärmedämmung zu lässt. Der Dachraum erreicht durch intensiver Auseinandersetzung mit dem Bestand und energetischer sowie architektonischer Neudefinition den KFW 40 Standard.

 

Abgabeleistungen

  • Grundrisse OG ggf. 2.OG, EG mit Erschließung und Außenanlagen, Ansichten, Schnitte, M 1: 100
  • Lageplan M 1: 500
  • Räumliche Darstellungen
  • Lüftungskonzept
  • Heizung/Wärmeversorgungskonzept
  • Energiekonzept und bauphysikalisches Konzept
  • Nachweis des im 1. Kolloquium festzulegenden KfW Standards für ausgesuchte Raumbereiche
  • Übergeordnete Konzepterläuterungen von Tageslicht, Nachhaltigkeit und TGA-Konzepten
  • Modell M 1: 100
 
 

Verwandte Projekte

merkle
Energieeffizientes Planen und Bauen – E2D

Diana Merkle: DESIGN_UP - Schloss Blumenthal

Update für ein maximales Ergebnis mit minimalem Aufwand - Eine „Haus in Haus“- Lösung für Hotelräume, Gästezimmer, Co-Working-Arbeitsplätze und einem multifunktionellen Veranstaltungsraum für das womöglich älteste Gebäude des Schlosses Blumenthal in Aichach.

merkle
Energieeffizientes Planen und Bauen – E2D

Sabrina Eckert: DESIGN_UP - Schloss Blumenthal

Update für ein maximales Ergebnis mit minimalem Aufwand - Eine „Haus in Haus“- Lösung für Hotelräume, Gästezimmer, Co-Working-Arbeitsplätze und einem multifunktionellen Veranstaltungsraum für das womöglich älteste Gebäude des Schlosses Blumenthal in Aichach.