Seitenpfad:

Diana Merkle: DESIGN_UP - Schloss Blumenthal

Integrale Sanierung und Umnutzung eines Ökonomiegebäudes im Ensembleschutz

 
Energieeffizientes Planen und Bauen – E2D

Projektbeschreibung

Bachelorarbeit Diana Merkle, WS 2020-21
Integraler Entwurf mit Schwerpunkt Bauen im Bestand, Bauphysik, Gebäudetechnik
Betreuung: Prof. Dr. Martin Bauer, Prof. Dr. Dirk Jacob, Prof. Michael Schmidt
Studiengang: Energieeffizientes Planen und Bauen – E2D

Aus der Aufgabenstellung:

„Das Schloss Blumenthal liegt nördlich von Augsburg. Es war ursprünglich ein vierflügeliges Wasserschloss und wurde 1296 erstmals urkundlich erwähnt. Über mehrere Jahrhunderte wurde es durch den Deutschen Orden genutzt. Ab 1806 war das Schloss im Besitz der Fuggerschen Stiftungsverwaltung. Im Jahr 2007 übernahmen acht Familien das Anwesen und gründeten die Schloss Blumenthal GmbH & Co KG. Mittlerweile ist die Gemeinschaft inklusive Kinder auf 61 Personen angewachsen. Neben einem Hotel, einem Seminarbetrieb und einem Gasthaus betreibt die GmbH eine Solidarische Landwirtschaft. Die gesamte Schlossanlage ist öffentlich zugänglich. Die Betreiber versuchen, in enger Abstimmung mit dem Denkmalschutz Umbauten und Renovierungen möglichst wenig invasiv durchzuführen. Wichtig ist die Erhaltung des Ensembles.

Für das Schloss Blumenthal bei Aichach in der Nähe von Augsburg besteht Denkmalschutz (Ensembleschutz). Eingriffe in die Bausubstanz sollen sich bei ggf. nötigen Umbauten an den vorhandenen Konturen orientieren. Das zu beplanende Gebäude schließt den Innenhof der Gesamtanlage nach Süden ab. Ohne die Kubatur des Gebäudes grundlegend zu verändern, soll das gesamte Obergeschoss ertüchtigt werden, um dann einer flexiblen Nutzung zur Verfügung zu stehen.

Der Planungsbereich umfasst den gesamten Raum unter dem Satteldach und darf - soweit nötig - vollständig entkernt werden. Die Erschließung und die Treppenhäuser könnten bei Bedarf versetzt und/oder neu geplant werden. Entsprechende Fluchtweglängen sind einzuhalten. Die Nutzfläche von ca. 1.000 m2 wird bisher als Lagerfläche genutzt. Der Bauherr wünscht sich eine flexible Nutzung zu jeweils einem Drittel durch:
- Hotelzimmer / Apartments / Wohnen
- Veranstaltungsfläche / Multifunktionsfläche
- Büroräume

Benötigte haustechnischen Anlagen können im EG oder im Dachbereich angeordnet werden. Das Gebäude ist an eine bestehende Ringleitung angeschlossen, welche Blumenthal mit Heizenergie versorgt. Das Dach soll in der jetzigen Form erhalten bleiben. Südseitig sollen möglichst große Flächen des Daches für eine photovoltaische Stromerzeugung und soweit nötig für Solarthermie genutzt werden. Die planerische und gestalterische Integration aller haustechnischen Anlagen, sowie die sinnvolle Verortung der benötigten Anlagen ist Bestandteil der Aufgabe. Alle öffentlichen Räume müssen barrierefrei erreichbar sein.“

 

 
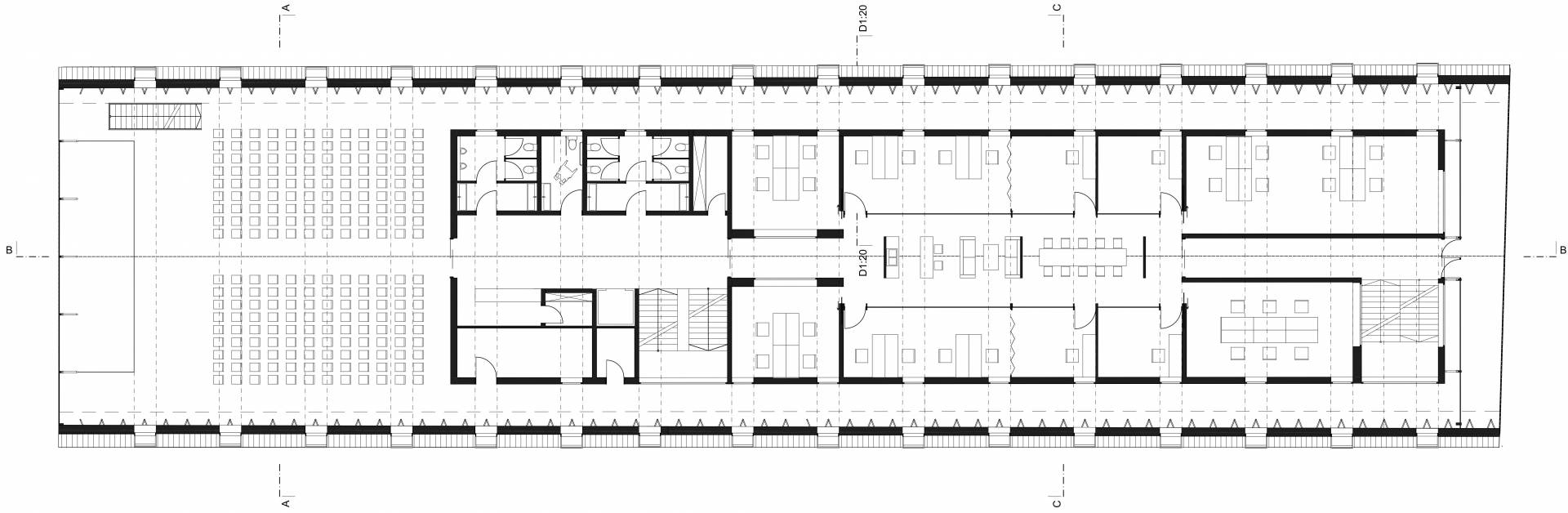
Grundriss EG mit Umgebung
Grundriss EG mit Umgebung

Erläuterung des Entwurfs (Diana Merkle):

Entwurfsgedanke

Was wird wirklich benötigt? Eine Frage, die sich durch das gesamte neu gestaltete Gebäude zieht. "Was nicht verbaut ist, kann auch nicht belasten - nicht die Umwelt - nicht Person selbst."

So wird der Veranstaltungsraum als niedrig beheizter kirchenartiger Saal angedacht. Die Räume, welche eine konstante normale Raumtemperatur benötigen, wurden in einer „Haus in Haus“-Lösung untergebracht. Die prägenden Stahlfachwerkträger bleiben erhalten und bilden mitunter das Herzstück des Gebäudes. Es lässt daran erinnern, wie der ungenutzte Abstellraum unter dem Satteldach vorher aussah. Außerdem ergibt sich durch das filigrane Tragwerk und die durchgehenden Lichtbänder ein interessantes Lichtspiel.

 

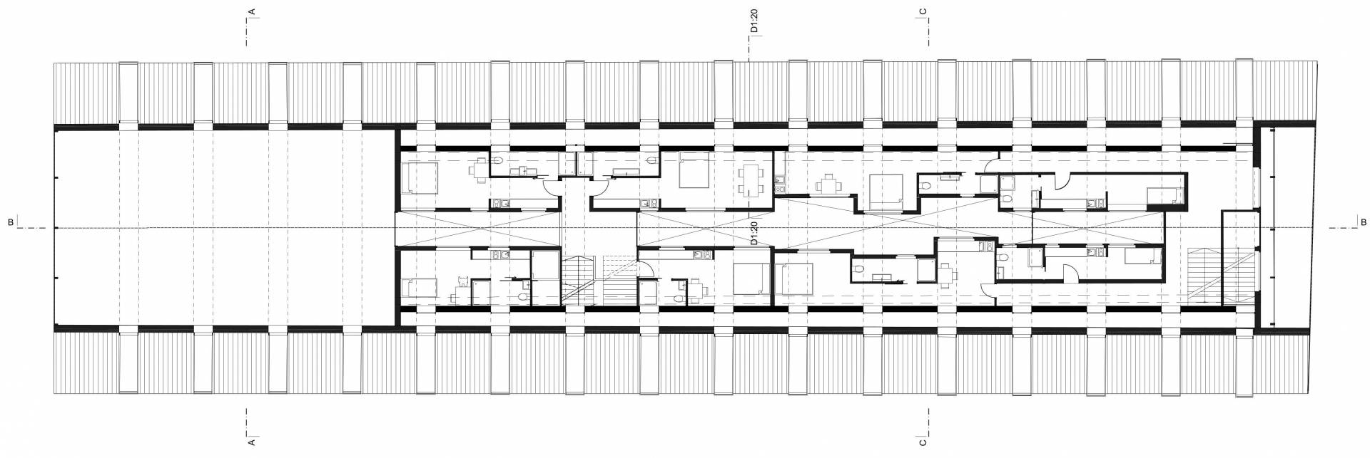
Grundriss 1. Obergeschoss
Grundriss 1. Obergeschoss
Grundriss 2. Obergeschoss
Grundriss 2. Obergeschoss

Innenraum

Kubische Verschiebungen sorgen für eine schluchtartige Öffnung des Innenraums. Durch die die unterschiedlichen Oberflächen der Geschosse wird die Zurückstellung nochmals verdeutlicht. Die Glaselemente im Flachdach des "Haus in Haus" bewegen sich mit den verschobenen Kuben des Obergeschosses. So wird der Besucher mit dem Licht geführt und regelrecht durch das Gebäude geleitet.

Der Mensch verbringt seinen Tag mit drei übergeordneten Dingen: Dem Schlafen, dem Arbeiten und dem Erleben. Diese Bestandteile sind fast genau gedrittelt. Somit ergab sich das Ziel, welches auch erfüllt wurde, auch die Flächen dieser übergeordneten Kategorien zu dritteln. Beim Entwurf wurde nicht nur zwischen den Bereichen Schlafen, Erleben und Arbeiten differenziert, sondern auch zwischen den öffentlichen Nutzungen. Es wurden Zonen geschaffen, um mehr Privatsphäre zu ermöglichen. Man gelangt als erstes in die "öffentliche", danach in die "halbprivate" und über zwei Treppenhäuser in einem extra Geschoss in die "private" Zone.

Individuell und flexibel, so sind die geplanten Bürobereiche. Dieser Teil besteht aus Einzelbüros, Gruppenbüros, offenen individuellen Arbeitsplätzen und Kommunikationsflächen. Diese sollen flexibel an- und abgemietet werden können. Die Appartements dienen als "Unterschlupf" für längere Aufenthalte. Einzelbüros sollen hier ein hohes Maß an Konzentration bieten. Hier erarbeitet sich jeder individuell seine Arbeit.

In den Gruppenbüros bestimmt Teamarbeit die Nutzung. Die Spezialisierung einzelner Gruppen ist hier möglich. Diese führen zu offenen und individuellen Arbeitsplätzen. Vor allem die Prozessarbeit und der Fortschritt sind hier das Zentrum des Vorankommens.

In der Mitte befindet sich der Kern - die Zusammenarbeit. Durch Erholung und Offenheit soll Kreativität und Austausch gefördert werden. So ergibt sich ein Miteinander und ein gelungener Teaming-Prozess.

Ansicht Nord-Ost
Perspektiven Innenräume: Blick vom „Haus in Haus“ in den Veranstaltungsraum (links) und durch das Co-Working-Space (rechts)
Ansicht von Nord-West
Ansicht von Nord-West
Ansicht von Süd-West
Ansicht von Süd-West

Tragwerk

Das Herzstück des Gebäudes bildet das Tragwerk aus zusammengesetzten Stahlfachwerke, welches dringend statisch ertüchtigt werden sollte.

Um das Gewicht des Satteldaches auf ein Minimum zu reduzieren, wurde im „Kaltraum“ lediglich der Mindestwärmeschutz eingehalten. Im Veranstaltungsraum unterstützen Zugbänder im Fußbodenaufbau und Polonceau-Träger die Konstruktion. Im „Haus in Haus“-Bereich dagegen liegt der obere Gurt auf dem Holzmodulbau auf. Außerdem wurde, um das Tragwerk auszusteifen, jeweils fünf Fachwerkträger ausgekreuzt.

Um die Stahlfachwerkträger aufzubereiten, werden diese jeweils in einzelnen Bereichen abgenommen, sandgestrahlt, beschichtet und dann wieder montiert.

Querschnitt
Querschnitt
Längsschnitt
Längsschnitt

Fassade

Als Konstruktion des "Haus in Haus" wurde der Holzmodulbau mit tragenden Brettsperrholzelementen gewählt. Der geschliffene Estrich und das Holz sind hierbei maßgebend. Es wird keine Versiegelung oder ähnliches benötigt, da durch den Schutz der Dachhaut diese keiner direkten Witterung ausgesetzt sind. So wird darauf geachtet, dass zu späteren Zeiten alles wieder fast restlos auseinander gebaut werden kann und so gut recycelbar ist.

Außerdem bietet die Holzmodulbauweise einen hohen Vorfertigungsgrad. In externen Hallen werden diese erbaut und danach über die geöffneten Giebelfassaden in das bestehende Satteldach geladen. Hierbei werden sie auf Betonsockel gestellt und befestigt, um diese u.a. schalltechnisch zu entkoppeln.

Detailschnitt Fassade M 1:10
Detailschnitt Fassade M 1:10

Materialität

Als Oberflächen des Gebäudes wurden hauptsächlich rohe und unbearbeitete Materialien gewählt, die nicht künstlich hergestellt oder aufgearbeitet werden. Außerdem wird auf Bodenbelag und Putz verzichtet. Geschliffener Estrich und sichtbare Brettsperrholzbauteile bieten im Zusammenspiel eine harmonische Einheit. So wird nicht nur der CO 2- und Ressourcenverbrauch gesenkt, sondern auch Nachhaltigkeit gefördert - "alles wieder trennbar".

Materialkonzept (von links nach rechts): sichtbares Brettsperrholz als Wand und Decke, flügelgeglätteter Estrich als Bodenbelag, Lehmputz als Fassade, Holzlattung „natur“ als Fassade
Materialkonzept (von links nach rechts): sichtbares Brettsperrholz als Wand und Decke, flügelgeglätteter Estrich als Bodenbelag, Lehmputz als Fassade, Holzlattung „natur“ als Fassade

Tageslicht

Um genügend Tageslicht in das "Haus in Haus" zu bekommen, bestehen die beiden Giebelseiten aus einer transparenten Pfosten-Riegel-Fassade. Außerdem befindet sich im Flachdach des Innengebäudes ein großes Lichtband. Die Lichtbänder in der Dachhaut sind ebenfalls großzügig ausgeführt und es befinden sich immer nach drei Metern opaken Bauteilen ein Meter breites Fensterband. Die Fenster des "Haus in Haus" liegen direkt hinter den Lichtbändern um genügend Tageslicht ins Innere führen zu können. Außerdem haben die Fenster des Kaltraums und des Innengebäudes einen höheren Lichtdurchgangskoeffizienten, da aufgrund der Umstände keine hochdämmenden Bauteile benötigt werden.

Modell (von links nach rechts): Gesamtansicht aus Westen, Detailansicht aus Westen, Detail Ansicht 1.OG aus Westen
Modell M 1:100 Gesamtansicht aus Westen, Detailansicht aus Westen, Detail Ansicht 1.OG aus Westen

Lüftung

Für das EG, den Veranstaltungsraum, Büros im 1.OG und Appartements im 2.OG sind je ein Lüftungsgerät geplant, da jeweils verschiedene Nutzungen und Gebrauchszeiten herrschen.

Die Lüftungsanlage im Eventraum sorgt nicht nur für den notwendigen Luftwechsel, sondern unterstützt zusätzlich die Aufheizung des Raumes. Durch die Zuluft aus dem Boden im Südwesten und die Abluft im Boden im Nordost ergibt sich eine Querlüftung.

Im 1.OG und im 2.OG handelt es sich um eine Quelllüftung.

Die natürliche Lüftung und Nachtlüftung im EG findet durch die Fenster in der Außenwand statt. Im OG geschieht dies über den oberen Teil der beiden Giebelwände. Um dies zu unterstützen sind zwei Ventilatoren auf dem Flachdach der "Haus in Haus"- Konstruktion angedacht. So kann im Innenraum des Neubaus die Luft nach "außen" gelüftet werden.

Prinzipskizze Lüftung
Prinzipskizze Lüftung

Energetik und Versorgungskonzept

Der Strom des Gebäudes wird über Photovoltaik und KWK Pellets erzeugt. Das Brauchwasser wird durch Speicherung des Regenwassers in einer Zisterne abgedeckt. Das Warmwasser wird über Solarthermie und durch den Pelletskessel erzeugt, welche auch als Heizung fungiert. Diese wird durch eine Fußbodenheizung übergeben.

Das Gebäude wurde zur Vereinfachung in drei Teile geteilt:

01 Schloss Blumentahl Ökonomie "Kaltraum/Veranstaltung":
- GEG Mindestwärmeschutz
- Nutzung nach Bedarf -> Aufheizen nach Bedarf (Nachweis nicht notwendig)
- Raumtemperatur ca. 12 °C im Winter

02 Schloss Blumenthal Ökonomie "Erdgeschoss"
- KfW Effizienzhaus Neubau 40
- Nutzung ca. 7 - 17 Uhr
- Raumtemperatur 21°C

03 Schloss Blumenthal Ökonomie "Haus in Haus"
- KfW Effizienzhaus Sanierung 70
- Nutzung ca. 17 - 7 Uhr
- Raumtemperatur ca. 22°C

Versorgungskonzept
Versorgungskonzept
 

Abgabeleistungen

  • Grundrisse OG ggf. 2.OG, EG mit Erschließung und Außenanlagen, Ansichten, Schnitte, M 1: 100
  • Lageplan M 1: 500
  • Räumliche Darstellungen
  • Lüftungskonzept
  • Heizung/Wärmeversorgungskonzept
  • Energiekonzept und bauphysikalisches Konzept
  • Nachweis des im 1. Kolloquium festzulegenden KfW Standards für ausgesuchte Raumbereiche
  • Übergeordnete Konzepterläuterungen von Tageslicht, Nachhaltigkeit und TGA-Konzepten
  • Modell M 1: 100
 
 

Verwandte Projekte

epple
Energieeffizientes Planen und Bauen – E2D

Anja Epple: DESIGN_UP - Schloss Blumenthal

Update für ein maximales Ergebnis mit minimalem Aufwand - Eine „Haus in Haus“- Lösung für Hotelräume, Gästezimmer, Co-Working-Arbeitsplätze und einem multifunktionellen Veranstaltungsraum für das womöglich älteste Gebäude des Schlosses Blumenthal in Aichach.

merkle
Energieeffizientes Planen und Bauen – E2D

Sabrina Eckert: DESIGN_UP - Schloss Blumenthal

Update für ein maximales Ergebnis mit minimalem Aufwand - Eine „Haus in Haus“- Lösung für Hotelräume, Gästezimmer, Co-Working-Arbeitsplätze und einem multifunktionellen Veranstaltungsraum für das womöglich älteste Gebäude des Schlosses Blumenthal in Aichach.