Seitenpfad:

12. E2D-Werkschau 2021 mit Gastvorträgen

Projekte des integralen Planen und Bauens und Beiträge zur Diskussion um die Ressourceneffizienz und Nachhaltigkeit

 
23.03.2021 – 13.04.2021
Online statt abgesagt

Integrale Entwurfsprojekte und Themen sind erneut Inhalt mehrerer öffentlicher Veranstaltungen der beiden Studiengänge Energieeffizientes Planen und Bauen - E2D (Bachelor) und Energie Effizienz Design - E2D (Master). Neben der 12. E2D-Werkschau beleuchten aktuelle Fachvorträge die aktuellen Diskussionen zur Ressourceneffizienz und Nachhaltigkeit.

Willkommen zur 12. E2D-Werkschau

 

Wie können Quartiers- und Gebäudeplanungen sowohl architektonisch, als auch mit Blick auf ihren Ressourcenverbrauch überzeugen? Wie lassen sich Neu- und Bestandsbauten realisieren in Hinblick auf maximalen Komfort bei minimalem Umwelteinfluss, etwa einem geringen Energieverbrauch und einem nachhaltigen Materialeinsatz?

Die nunmehr 12. E2D-Werkschau zeigt Antworten und ermöglicht einen Gesamtüberblick über das E2D-Studium in seiner kontinuierlich wachsenden Komplexität der Aufgaben - vom ersten Semester mit Übungen zur Gestaltung des architektonischen Raums und konstruktiven Grundlagen bis hin zur schrittweisen Integration der Einflussfaktoren des Klimas, der energetischen Potenziale des Ortes, der Interaktion mit den Konzepten der Gebäudehülle, der Tageslichtnutzung, innen- und außenräumlichen Qualitäten, sozialen und nutzungsbezogenen Optionen, Fragen der Ökobilanzierung, konstruktiven, bauklimatischen, bauphysikalischen, gebäudetechnischen Parametern ... und der entscheidenden Frage: Wie sieht ein Entwurfsprozess aus, der die Interaktion dieser Vielfalt von Anforderungen berücksichtigt und quantifizierend belegt?

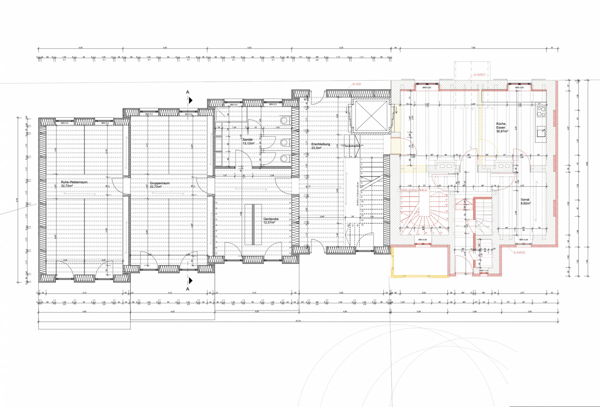
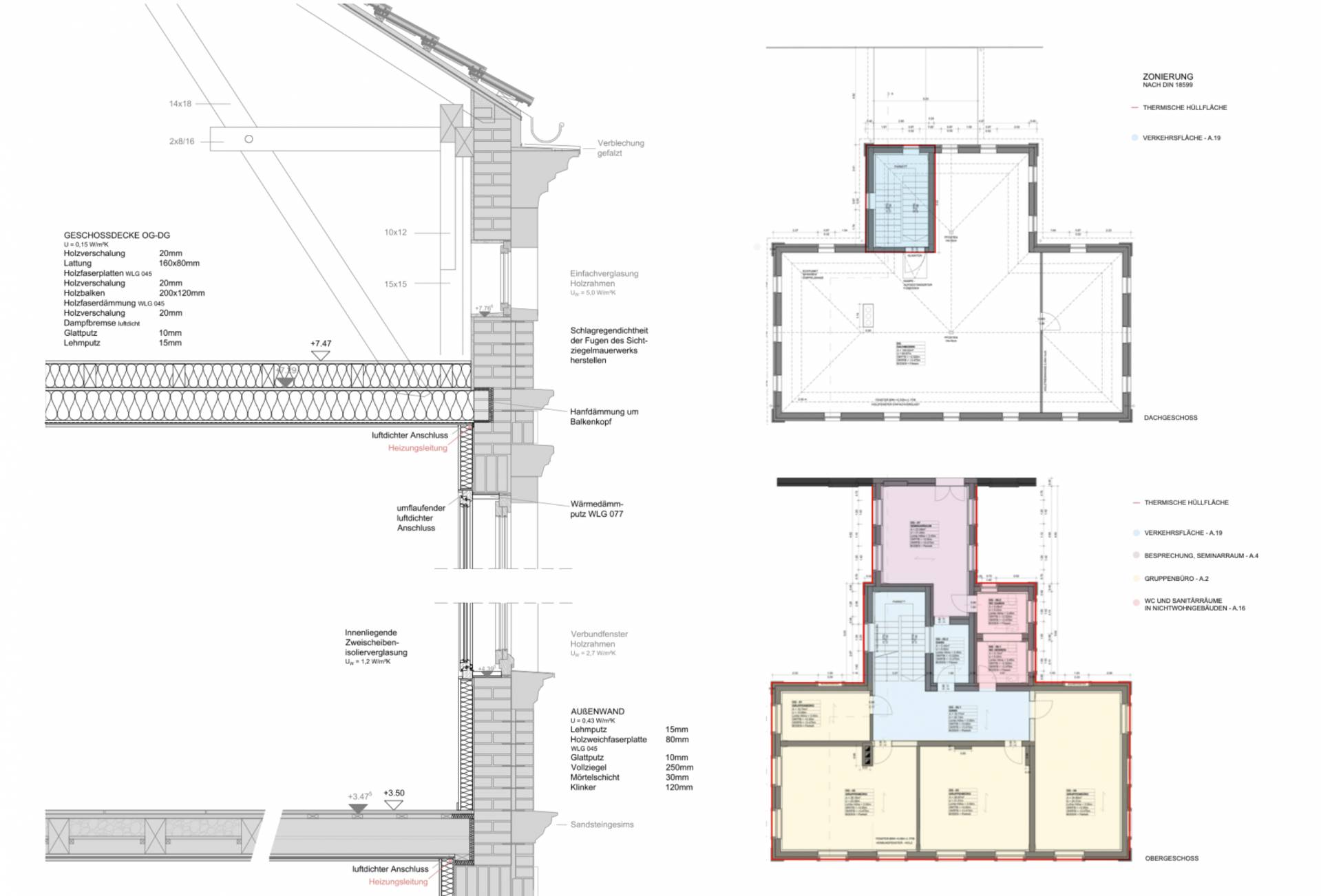
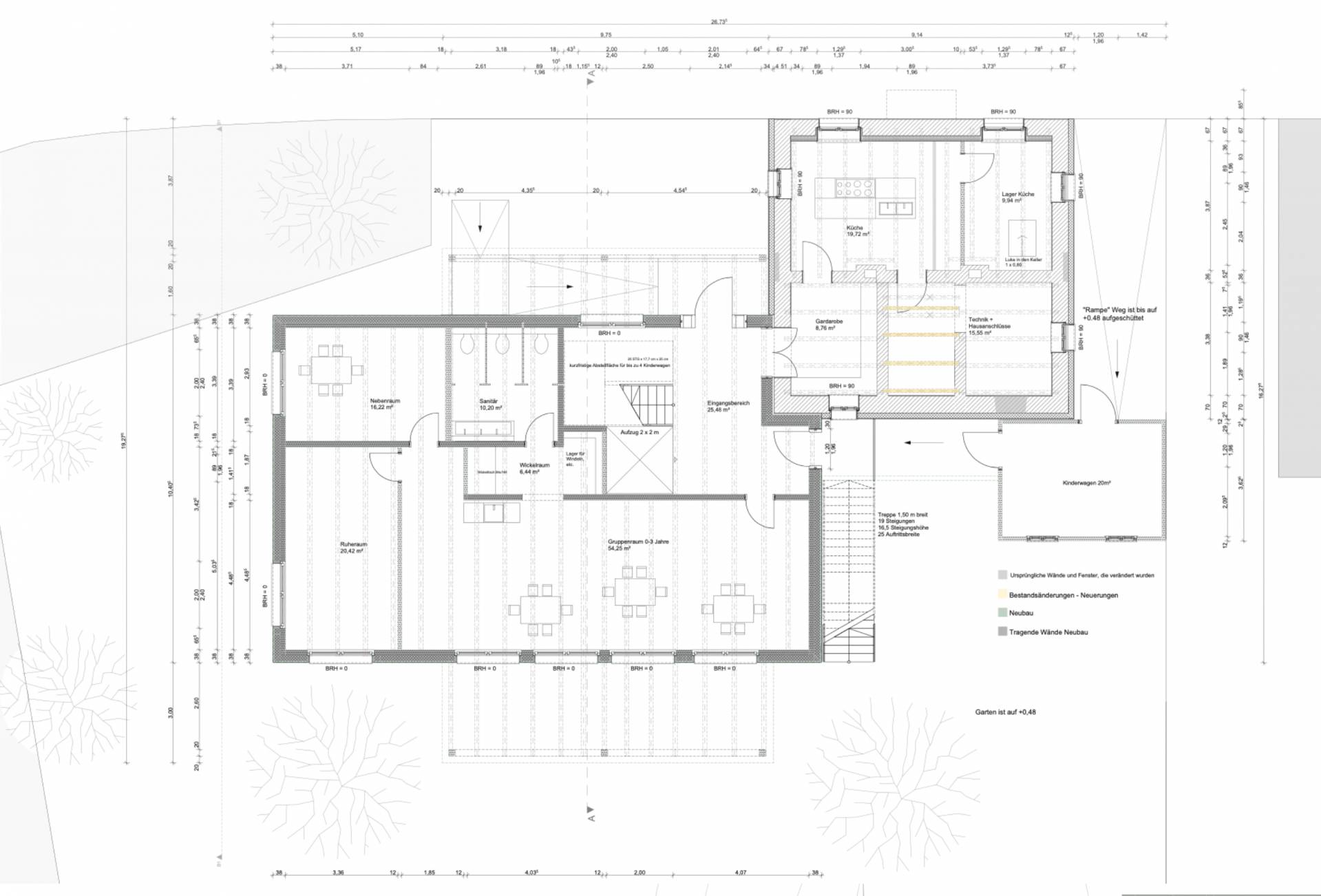
Der Focus liegt in dieser Werkschau auf Projektmodulen des Sommersemesters 2020, also genau den Entwurfsfächern, die nun aktuell wieder zur Bearbeitung anstehen. Ein Klick auf die Abbildungen öffnet jeweils weitere Informationen zum Projekt.

Aufgrund der Corona-bedingten Einschränkungen findet die 12. Werkschau mit Rahmenprogramm (wie bereits die > 11. E2D Werkschau 2020) komplett online statt. Wir starten am 23.03. mit einer Vernissage und schließen mit der Finissage am 13.04.2021, jeweils begleitet von öffentlichen Gastvorträgen:

Zeige 1-1 von 1 Eintrag.
 

Partizipatorisches Bauen mit limitierten Ressourcen

23.03.2021, 17:30 Uhr

Öffentlicher Gastvortrag als Videokonferenz

Wir laden herzlich ein zum internationalen Gastvortrag von Jan Glasmeier (London) als Vernissage der 12. E2D Werkschau 2021 der beiden Studiengänge "Energieeffizientes Planen und Bauen – E2D" (Bachelor) und "Energie Effizienz Design – E2D" (Master).

mehr ...
Zeige 1-1 von 1 Eintrag.
 

Road to zero – klimaneutrale Gebäude bis 2050?

13.04.2021, 17:30 Uhr

Öffentlicher Gastvortrag als Videokonferenz

Wir laden herzlich ein zum Gastvortrag von Jens Glöggler (ATP sustain) als Finissage der 12. E2D Werkschau 2021 der beiden Studiengänge "Energieeffizientes Planen und Bauen – E2D" (Bachelor) und "Energie Effizienz Design – E2D" (Master).

mehr ...
 

Rückblick:

 

Gerne können Sie auch in den E2D Werkschauen der vergangenen Jahre stöbern:

11.E2D Werkschau 2020(Projekte Wintersemester, online) mit Alumni- und Gastvorträgen
10.E2D Werkschau 2019mit Alumni- und Gastvorträgen
09.E2D Werkschau 2019mit Gastvorträgen
08.E2D Werkschau 2018mit Alumni- und Gastvorträgen
07.E2D Werkschau 2018mit Alumni- und Gastvorträgen
06.E2D Werkschau 2017mit Gast- und Mastervorträgen