Neue Mitte Oberottmarshausen
Die Zukunft als Chance: Studierende entwerfen multifunktionale Orte der Begegnung

Projektbeschreibung
Bachelorarbeit WS 2025-26
Integraler Entwurf mit Schwerpunkt Bauen im Kontext einer Ortsmitte, klima- und ressourcengerechte Erweiterung.
Betreuung: Prof. Dr. Joachim Müller, Prof. Dr. Dirk Jacob
Studiengang: Energieeffizientes Planen und Bauen – E2D
Aus der Aufgabenstellung:
Durch den Erwerb und Abriss eines ehemaligen Hofes in zentraler Lage bietet sich für die Gemeinde Oberottmarshausen eine einmalige Chance: die Vision einer neuen Ortsmitte mit vielfältigem Nutzungsmix, der die bestehenden Einrichtungen ergänzt, Wohnraum schafft und die Begegnung aller Bürger:innen unterstützt.
Wie könnte dies konkret aussehen? Eine "Kreativwerkstatt" mit Veranstaltungsbereichen für Vereine und andere Gruppen, eine kleine Bibliothek, ein Dorfladen, Zusatzräume für angrenzende Kita und Schule mit Mittagsbetreuung sowie ein breites Angebot für generationenübergreifendes Wohnen. Das Ganze mit einer hohen Qualität der Außenräume auch für gemeinsame Feste: Die Entwicklung einer vitalen Mitte, bei der sich Menschen mit ihren eigenen Ideen einbringen, verhindert den „Donut-Effekt“ mit Ausdünnung des Ortskerns. Die Einbindung in die vorhandenen ortstypischen Strukturen stellt dabei eine wichtige Herausforderung dar, um alte und neue Identität des Ortes miteinander zu verweben.
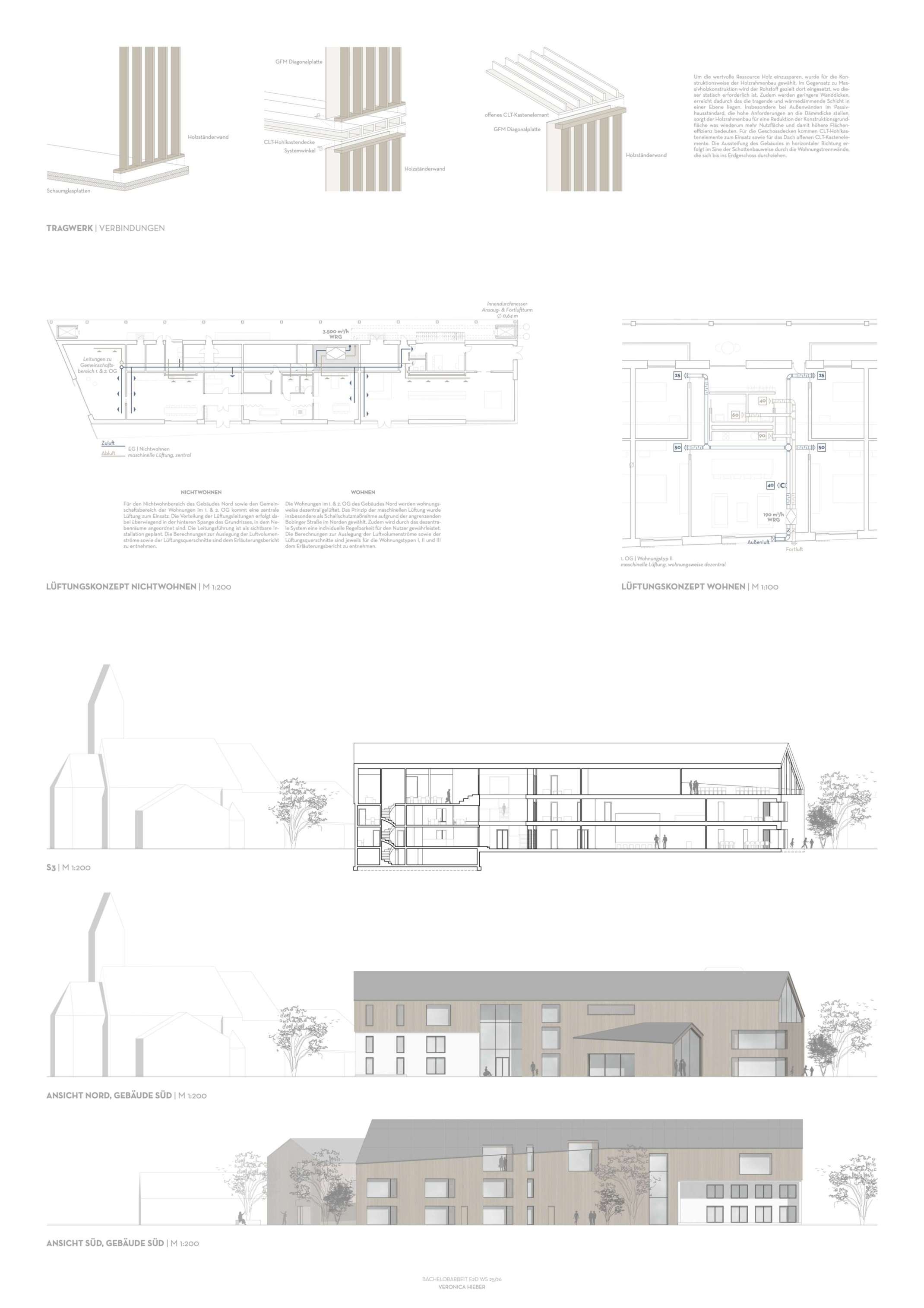
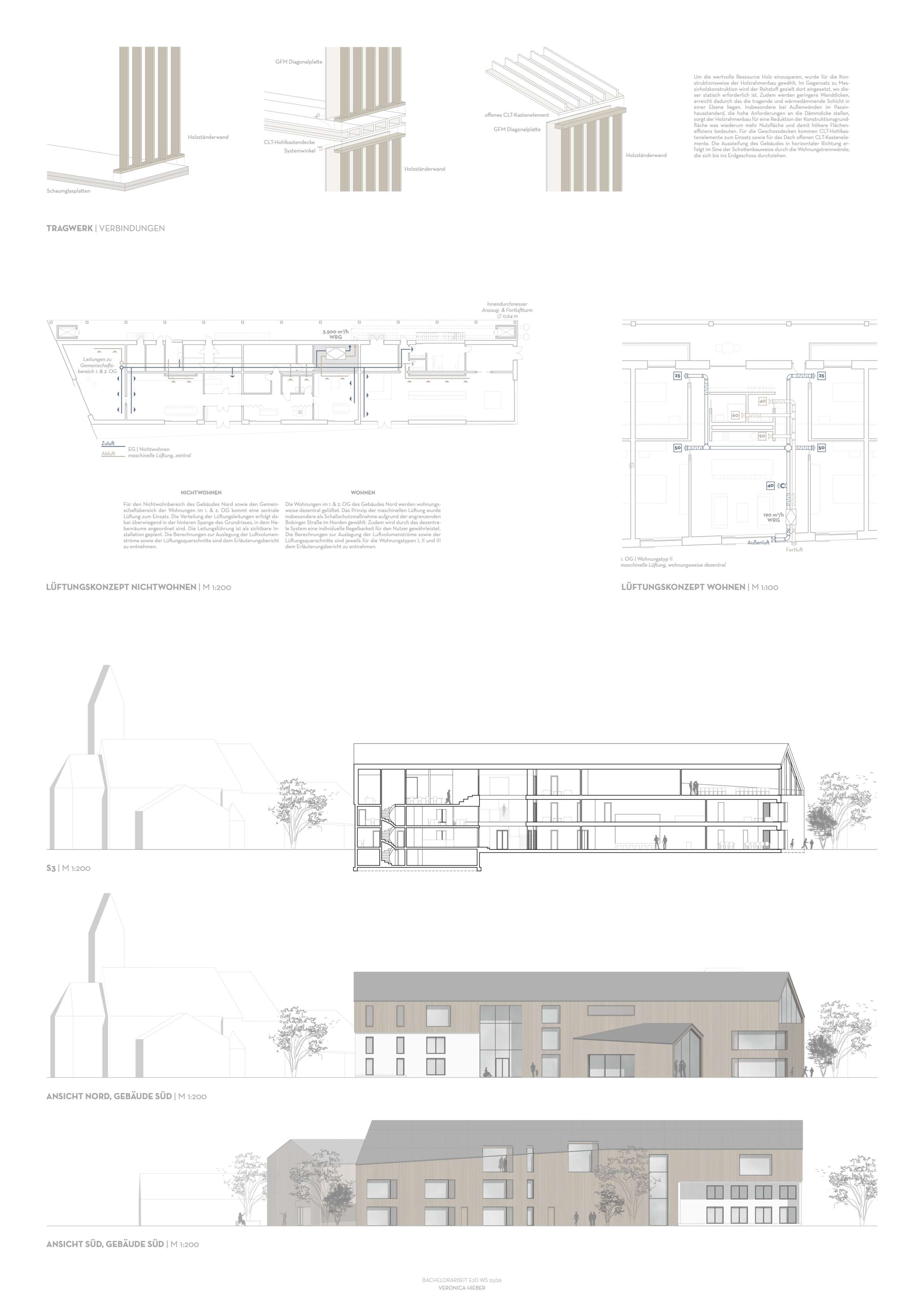
Der Fokus liegt auf zukunftsweisenden, klima- und ressourcengerechten Konzepten vom Städtebau bis zum Gebäudedetail. Daher sind neben dem Entwurf auch nachhaltige Bauweisen und Konstruktionen im Lebenszyklus, eine Ökobilanz (Global warming potential in CO2-Äquivalenten), ein maximaler Anteil erneuerbarer Energien, Berechnungen zur Energiebilanzierung (nach DIN V 18599 mit dem Mindestziel EH40 oder EH40+), Nachweise des sommerlichen Wärmeschutzes sowie die Konzeption einer minimierten Gebäudetechnik planungsbegleitend zu berechnen und zu optimieren.
Projektbasiert, praxisnah - Entwerfen im Studiengang E2D
Das Thema der Bachelorarbeit ist ein typischer Beitrag des projektbasierten und praxisnahen Entwerfens im Studiengang "Energieeffizientes Planen und Bauen - E2D", anknüpfend an einen realen langfristigen Planungsprozesses um die Zukunft des Ortskerns. Von der Grundlagenermittlung über die Ortsbegehungen und die Definition der Bedarfe bis hin zur Schlusspräsentation waren die Studierenden im Austausch mit der Gemeinde und Bürgermeister Andreas Reiter sowie dem Planungsbüro OPLA in Augsburg. Allen Beteiligten gilt unser herzlicher Dank für den Austausch und die Unterstützung: Ein Impuls für den Ort, eine Win-win-Situation für Oberottmarshausen und die Studierenden.
Ansprechpartner | |
Telefon: | +49 821 5586-2114 |
Ansprechpartner | |
Telefon: | +49 821 5586-3611 |



































