22. E2D Werkschau 2026
Klima- und ressourcengerecht Bauen: Integrale Projekte, Gast-, Master- und Alumnivorträge
Wie können Gebäude sowohl architektonisch, als auch hinsichtlich einer größtmöglichen Klimaneutralität überzeugen? Wie lassen sich Neu- und Bestandsbauten realisieren in Hinblick auf maximalen Komfort bei minimalem Umwelteinfluss, etwa einem geringen Energieverbrauch und einem ressourcengerechten Materialeinsatz und Wiederverwendbarkeit im Sinne einer Circular Economy?
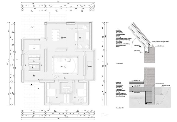
Die nunmehr 22. E2D-Werkschau zeigt Antworten und ermöglicht einen Gesamtüberblick über das E2D-Studium in seiner kontinuierlich wachsenden Komplexität der Aufgaben - vom ersten Studienjahr mit Übungen zur Gestaltung des architektonischen Raums und konstruktiven Grundlagen bis hin zur schrittweisen Integration der Einflussfaktoren des Klimas, der Potenziale des Ortes und der Umfeldgestaltung, der Interaktion mit den Konzepten der Gebäudehülle, der Tageslichtnutzung, innen- und außenräumlichen Qualitäten, sozialen und nutzungsbezogenen Optionen, Fragen der Ökobilanzierung, Kreislauffähigkeit und den Auswirkungen auf das Klima, konstruktiven, bauklimatischen, bauphysikalischen, gebäudetechnischen Parametern ... und der entscheidenden Frage: Wie sieht ein Entwurfsprozess aus, der die Interaktion dieser Vielfalt von Anforderungen berücksichtigt und quantifizierend optimiert?
Der Focus liegt in dieser Werkschau auf Projektmodulen des Sommersemesters 2025, also genau den Entwurfsfächern, die nun aktuell wieder für die Studierenden zur Bearbeitung anstehen.
Die Werkschau ist vom 24.03. bis zum 14.04.26 auf dem Flur des 2. OG im C-Gebäude der THA zu sehen, darüber hinaus ab dem 24.03. hier online. Werkschau und Vorträge sind öffentlich und richten sich an alle am klima- und ressourcengerechten Bauen Interessierte. Wir freuen uns auf den Austausch.
Herzlich Willkommen!
Begleitprogramm
Der Landkreis Augsburg auf dem Weg zu einem energieeffizienten Gebäudebestand. Wie wird aus einem Schulgebäude ein energieeffizientes Vorzeigeprojekt? In seinem Vortrag gibt Frank Schwindling, Kreisbaumeister und Leitender Baudirektor des Landkreises Augsburg, spannende Einblicke in über 20 Jahre nachhaltige Architektur- und Baupraxis.
Dienstag 24.03.26, 17:30 Uhr, C 1.11 > mehr
Mastervorträge Energie Effizienz Design
Absolvent:innen des E2D-Masterstudiengangs laden herzlich ein zur öffentlichen Präsentation ihrer Masterarbeiten. Die Spannweite der Themen spiegelt das breite Feld der Ausrichtungen innerhalb des Studiums.
Dienstag 31.03.26, ab 14:00 Uhr, C 1.11 > mehr
Bachelorpräsentationen und E2D Alumni-Vorträge 2026
Präsentationen der Bachelorarbeiten "Erstellung einer Produktökobilanz im Rahmen einer Umweltproduktdeklaration“
Dienstag 14.04.2026, 14:00 Uhr, C 3.20 > mehr
E2D Absolvent:innen berichten von Ihren Erfahrungen im Berufseinstieg und den verschiedenen Arbeitsfeldern, in denen Sie tätig geworden sind.
Dienstag 14.04.2026, 17:30 Uhr, C 1.11 > mehr
Beteiligte Studiengänge:
Die Bachelor- und Masterstudiengänge E2D
- Bachelorstudiengang "Energieeffizientes Planen und Bauen - E2D"
- Masterstudiengang "Energie Effizienz Design - E2D"
Gesamtkoordination Werkschau: Prof. Dr. Joachim Müller
Rückblick:
Gerne können Sie auch in den E2D Werkschauen der vergangenen Jahre stöbern:
| 21. | E2D Werkschau 2025 | Projekte Sommersemester mit Gast-, Master- und Alumnivorträgen |
| 20. | E2D Werkschau 2025 | Projekte Sommersemester mit Gast-, Master- und Alumnivorträgen |
| 19. | E2D Werkschau 2024 | Projekte Wintersemester mit Gast- und Mastervorträgen |
| 18. | E2D Werkschau 2024 | Projekte Sommersemester mit Gast-, Master- und Alumnivorträgen |
| 17. | E2D Werkschau 2023 | Projekte Wintersemester mit Gast- und Mastervorträgen |
| 16. | E2D Werkschau 2023 | Projekte Sommersemester mit Gastvorträgen |
| 15. | E2D Werkschau 2022 | Projekte Wintersemester mit Master- und Gastvorträgen |
| 14. | E2D Werkschau 2022 | Projekte Sommersemester mit Gastvorträgen |
| 13. | E2D Werkschau 2021 | Projekte Wintersemester mit Alumni- und Gastvorträgen |
| 12. | E2D Werkschau 2021 | Projekte Sommersemester mit Gastvortrag |
| 11. | E2D Werkschau 2020 | Projekte Wintersemester mit Alumni- und Gastvorträgen |
| 10. | E2D Werkschau 2019 | mit Alumni- und Gastvorträgen |
| 09. | E2D Werkschau 2019 | mit Gastvorträgen |
| 08. | E2D Werkschau 2018 | mit Alumni- und Gastvorträgen |
| 07. | E2D Werkschau 2018 | mit Alumni- und Gastvorträgen |
| 06. | E2D Werkschau 2017 | mit Gast- und Mastervorträgen |
































